**Standout Features:**
- One-bedroom flat in a stunning Victorian Grade II listed building
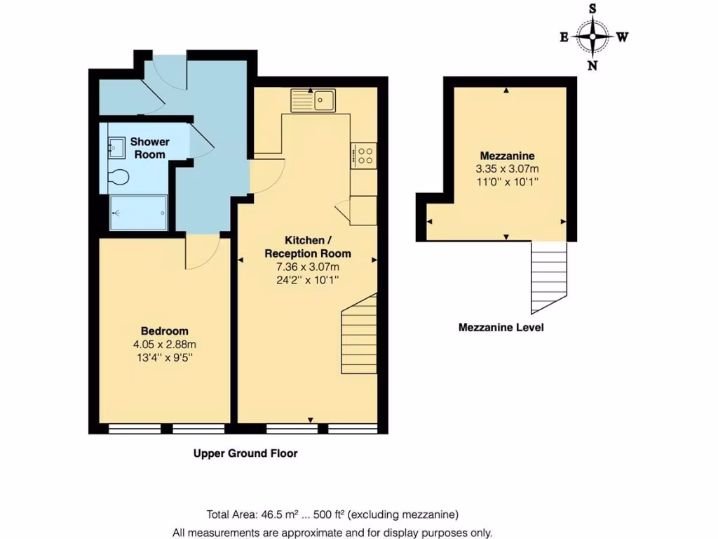
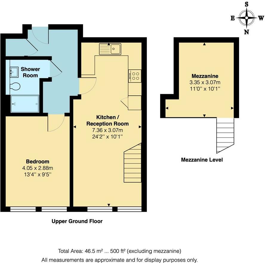
- Spacious open plan living area with mezzanine
- Upper ground floor with large windows for natural light
- Chain-free and long lease for easy ownership transition
- Excellent transport links just a five-minute walk to Leyton Tube Station
This charming, one-bedroom flat beautifully combines Victorian elegance with contemporary living. Nestled within a grand Grade II listed building, it features an airy open-plan kitchen and reception area, drenched in natural light thanks to large sash windows. The distinctive mezzanine level enhances the space, perfect for a home office or additional sleeping area. The sizable bedroom promises comfort, while the modern shower room showcases stylish finishes.
Convenience is paramount with Leyton Tube Station just five minutes away, offering swift access to central London. This area boasts vibrant local amenities such as boutique shops, cafes, and excellent dining options, making it an ideal choice for first-time buyers or young professionals seeking dynamic urban living. However, it’s important to note that maintenance of the period property may come with unique challenges due to its listed status.
With an attractive price of £425,000 and a chain-free sale, this property invites you to invest in a cosmopolitan lifestyle in Leyton before it slips away!
2 bedroom flat for sale in Adelaide Road, Leyton, E10 — £645,000 • 2 bed • 2 bath • 1018 ft²
1 bedroom apartment for sale in Adelaide Road, Leyton, E10 — £425,000 • 1 bed • 1 bath • 480 ft²
2 bedroom apartment for sale in Malta Road, Leyton, E10 — £350,000 • 2 bed • 1 bath • 474 ft²
1 bedroom flat for sale in High Road Leyton, Tara House, E10 — £300,000 • 1 bed • 1 bath • 358 ft²
1 bedroom flat for sale in Grange Park Road, Leyton, E10 — £325,000 • 1 bed • 1 bath • 467 ft²
1 bedroom flat for sale in Buckland Road, Leyton, E10 — £425,000 • 1 bed • 1 bath • 511 ft²


























































































