**Standout Features:**
- Stunning Poole Harbour and Brownsea Island views
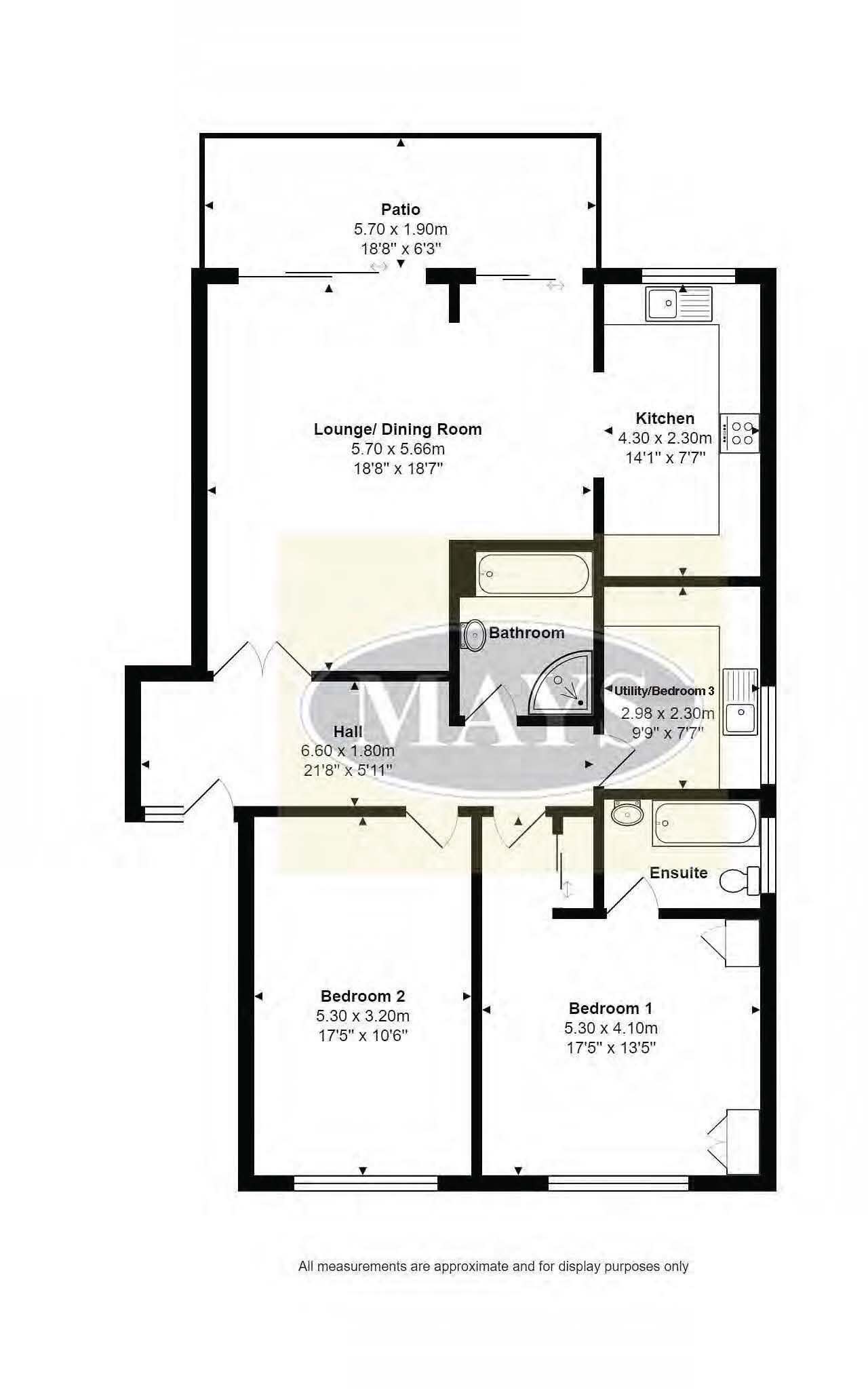
- Spacious and bright open plan kitchen/living/dining room
- Three bedrooms, main with ensuite
- Southwest-facing patio terrace ideal for entertaining
- Private garage and ample resident/guest parking
- Share of Freehold tenure
**Concerns:**
- Average broadband speeds
- Expensive council tax (Band F)
- Service charge is above average at £4,430 annually
- Holiday lets and pets not allowed
Nestled in the prestigious Evening Hill area, this bright ground floor apartment offers extraordinary views over Poole Harbour, perfect for those seeking a tranquil coastal lifestyle. Boasting an impressive open-plan kitchen, living, and dining area, the space seamlessly flows to a large southwest-facing patio terrace, ideal for enjoying stunning sunsets or entertaining guests. The apartment features three bedrooms, including a master with a modern ensuite, providing ample flexibility for families or those seeking extra guest space.
This property also includes a private garage, abundant resident parking, and beautifully landscaped communal gardens, enhancing the overall appeal. While the service charge and council tax may be on the higher side, the exclusive location between Lilliput and Sandbanks, with nearby amenities and nature, offers significant long-term value. Internal viewing is strongly recommended to fully appreciate the allure of this unique property, which is sure to attract discerning buyers looking for comfort, security, and future potential in a sought-after coastal community. Act quickly—properties like this don't last long!
3 bedroom apartment for sale in Sandbanks Road, Evening Hill, Poole, Dorset, BH14 — £1,295,000 • 3 bed • 2 bath • 1772 ft²
3 bedroom apartment for sale in Sandbanks Road, Poole, Dorset, BH14 — £1,250,000 • 3 bed • 2 bath • 1483 ft²
3 bedroom apartment for sale in Sandbanks Road, Evening Hill, Poole, Dorset, BH14 — £1,250,000 • 3 bed • 2 bath • 1929 ft²
3 bedroom apartment for sale in Wentworth, 2 Crichel Mount Road, Evening Hill, BH14 — £375,000 • 3 bed • 2 bath • 992 ft²
2 bedroom apartment for sale in Crichel Mount Road, Evening Hill, BH14 — £375,000 • 2 bed • 2 bath • 840 ft²
3 bedroom apartment for sale in Sandbanks Road, Poole, Dorset, BH14 — £1,375,000 • 3 bed • 2 bath • 1833 ft²










































































































