Move-in ready three-bedroom home near direct rail links and village amenities.
Gated off-street parking and a garage for multiple vehicles
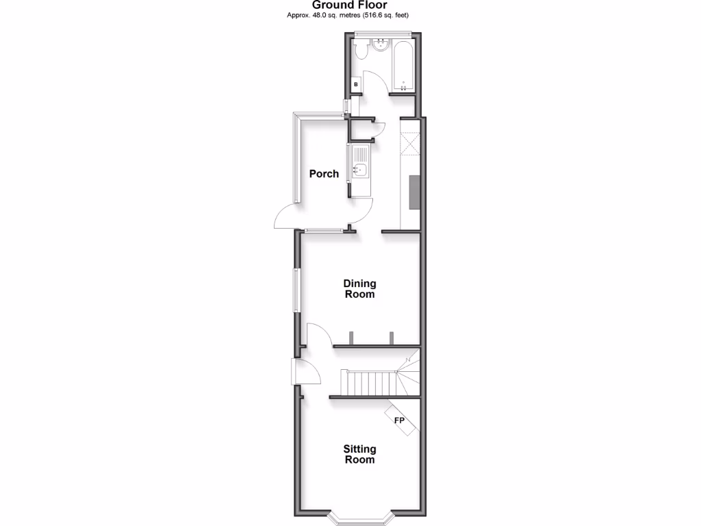
Set on Station Approach in Pulborough, this three-bedroom semi-detached house offers practical family living with immediate availability — there is no onward chain. The property is ready to move into and benefits from light, airy rooms, a private rear garden and gated off-street parking plus a garage, all convenient for daily life and commuting.
The location is a strong selling point: direct rail links to London, nearby bus stops, local shops, doctors and village amenities are within easy reach. Gas central heating, cavity walls (assumed insulated) and double glazing installed before 2002 provide basic thermal comfort; council tax is described as affordable and the area has low crime and an affluent, self-sufficient-retirement/well-established countryside character.
Practical limitations are plain: the home is modest in overall size (approximately 732 sq ft) so rooms are compact, and there is a single family bathroom. Broadband speeds are slow, which may affect home working. Buyers should verify details such as tenure, fixtures and any planning consents; some elements (glazing date, construction era) suggest older fittings may benefit from updating in time.
For families who prioritise location and straightforward, move-in-ready accommodation with parking and garden space, this property represents a convenient village base with scope to personalise and modernise over time.
3 bedroom detached house for sale in Glebelands, Pulborough, RH20 — £500,000 • 3 bed • 1 bath • 1203 ft²
3 bedroom terraced house for sale in London Road, Pulborough, West Sussex, RH20 — £429,995 • 3 bed • 1 bath • 1118 ft²
4 bedroom detached house for sale in Chestnut Walk, Pulborough, West Sussex, RH20 — £525,000 • 4 bed • 1 bath • 1281 ft²
3 bedroom detached house for sale in Rectory Lane, Pulborough, RH20 — £575,000 • 3 bed • 2 bath • 1420 ft²
3 bedroom detached house for sale in Oddstones, Pulborough, RH20 — £475,000 • 3 bed • 2 bath • 1454 ft²
4 bedroom house for sale in Cobbetts Mews, Pulborough, RH20 — £600,000 • 4 bed • 2 bath • 1610 ft²






























































