Turnkey planning and high-street exposure for an investor-ready redevelopment.
- Freehold corner plot with planning granted for retail + 2 flats
- Auction sale: live online, buyer’s premium applies on exchange
- EPC B; busy high-street location with strong footfall
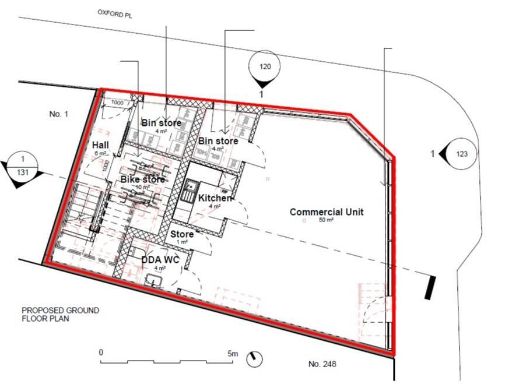
- Residential access separate; includes bike and bin stores
- Area shows very high crime and very high deprivation indices
- Solid brick construction assumed uninsulated; retrofit costs likely
- Electric storage heating currently specified; consider heating upgrade
- Small plot, limited/no private garden or external amenity
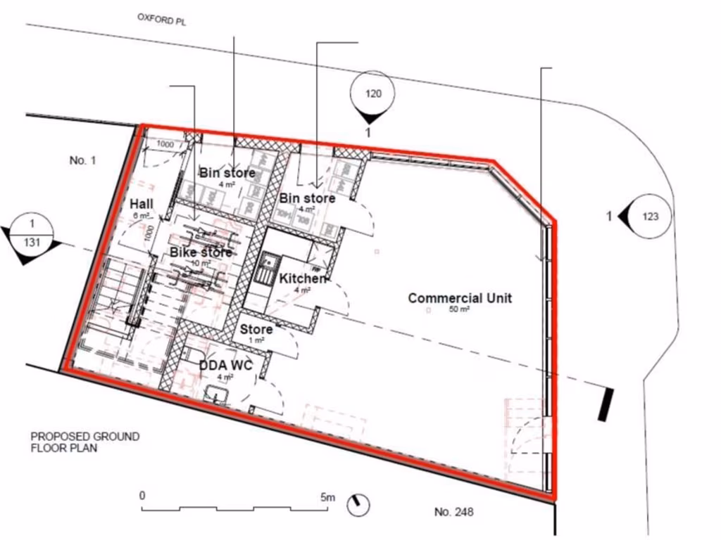
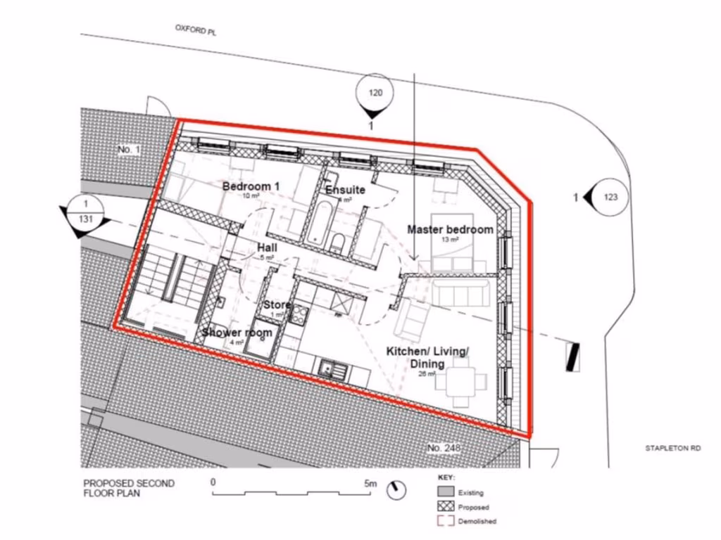
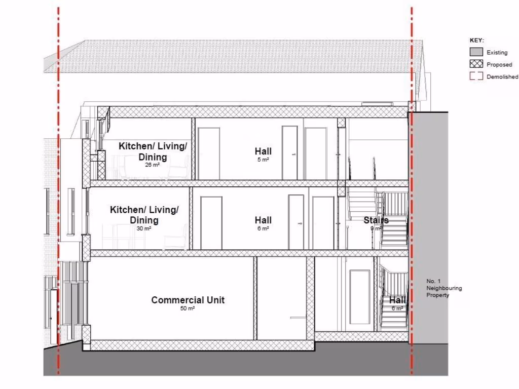
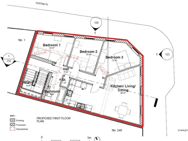
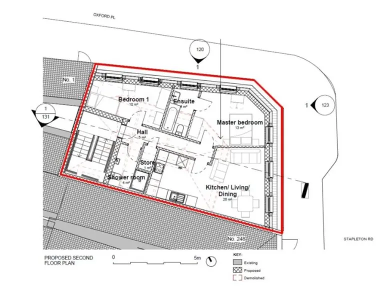
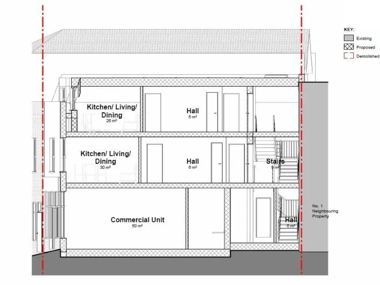
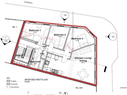
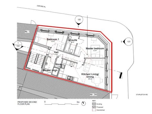
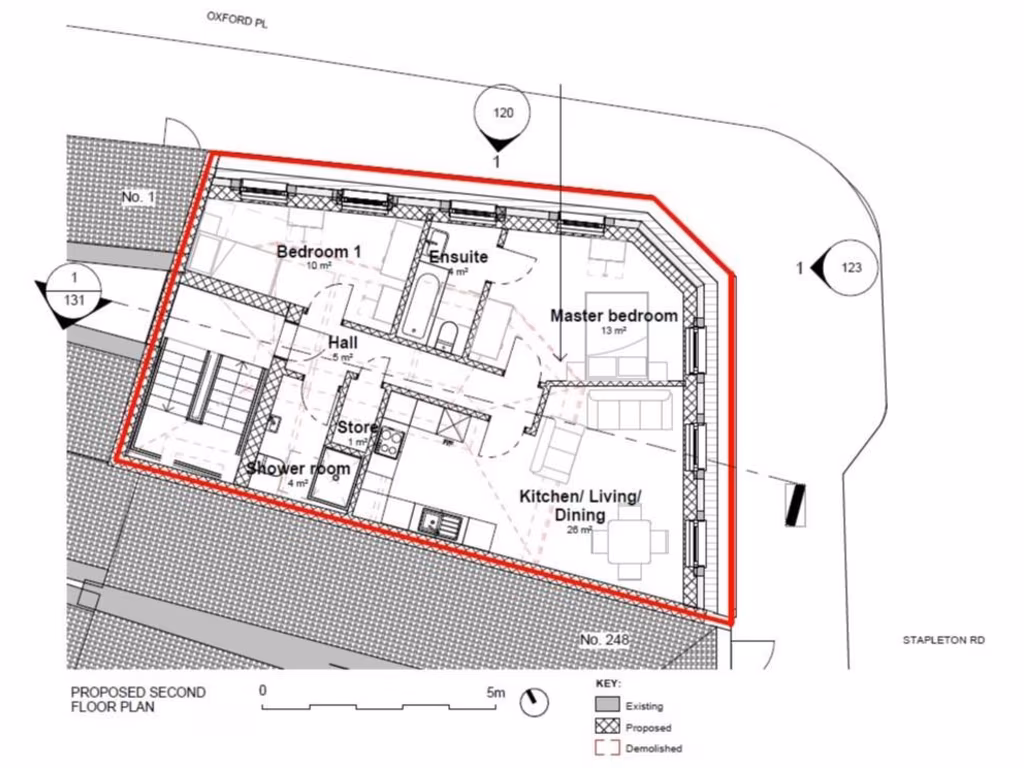
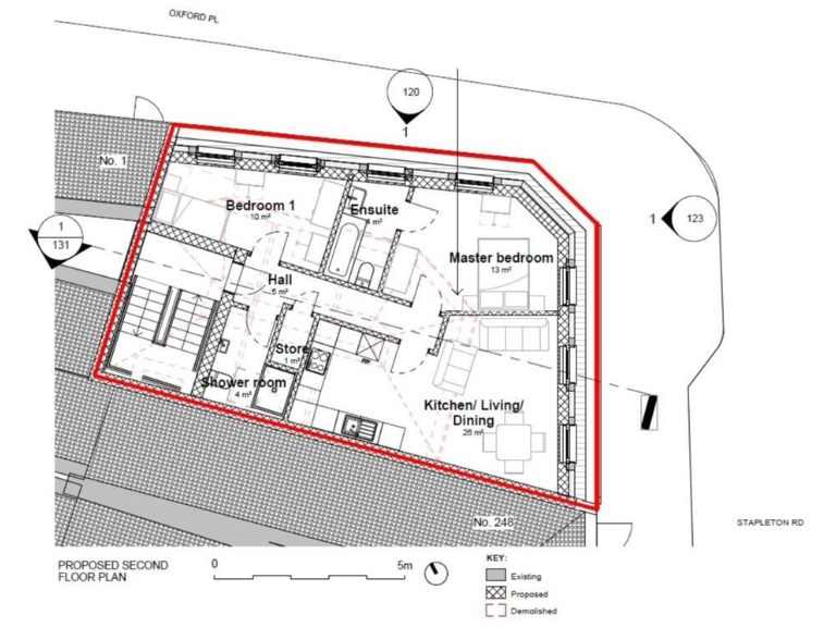
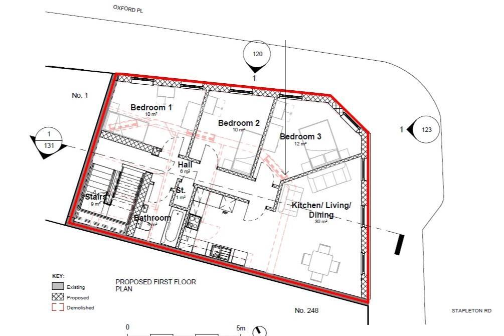
A freehold corner plot on Stapleton Road with planning granted (23/02560/F) for a mixed-use redevelopment: ground-floor retail plus two self-contained flats above. The sale is by live online auction (15 Oct 2025) with an extended eight-week completion window and a buyer’s premium payable on exchange. The site benefits from strong footfall on a busy high street, an EPC B, excellent mobile signal and fast broadband — practical positives for both rental and commercial occupiers.
The scheme has clear income potential. Independent appraisals in the legal pack estimate a market sale value for the proposed flats (first-floor 3-bed and second-floor 2-bed) and a commercial rent of around £10,000–£12,000 pa; residential rent appraisals are also provided. The building’s traditional Victorian fabric and corner trading position help visibility and tenant appeal, while planned bike/bin stores and independent residential access support mixed-use operation.
Buyers should note material challenges: the area records very high crime and very high deprivation indices, which can affect rental demand, insurance and management overheads. The existing fabric is solid brick with assumed no cavity insulation, heating is by electric storage heaters and the property will require completion of the consented works and fit-out to achieve the advertised GDV or rental figures. The lot is small with limited or no private external amenity space.
This lot suits an investor or developer who is comfortable buying at auction, who will factor refurbishment and management into costs, and who can act to capitalise on high-street trading exposure. Full legal, planning and rental information is in the online legal pack and should be reviewed prior to bidding.
Commercial property for sale in Development With Planning | Easton, BS5 — £275,000 • 5 bed • 4 bath • 833 ft²
House for sale in Broad Street, Staple Hill, Bristol, BS16 — £185,000 • 1 bed • 1 bath • 574 ft²
Commercial property for sale in Mixed Use | Easton, BS5 — £200,000 • 3 bed • 1 bath • 1128 ft²
Commercial property for sale in Development | Kingswood, BS15 — £250,000 • 1 bed • 1 bath • 2648 ft²
Commercial property for sale in 14 BED + 8 BATH HMO | £126k pa | BS5 — £435,000 • 14 bed • 8 bath • 3218 ft²
14 bedroom house for sale in 14 BED + 8 BATH HMO | £126k pa | BS5 — £435,000 • 14 bed • 8 bath • 3218 ft²










































































































































