A private, renovated rural home with pool and flexible outbuildings for country living.
Long gated private drive with ample parking and triple cart lodge
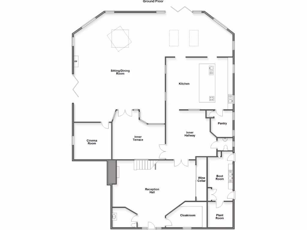
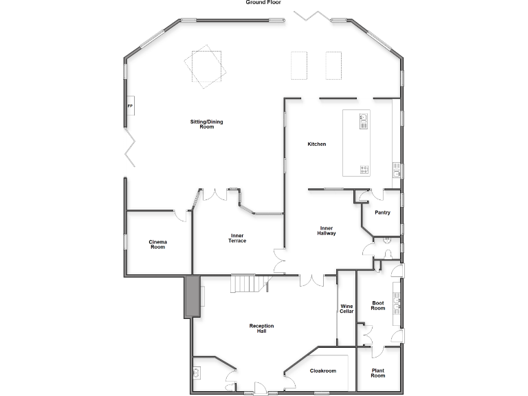
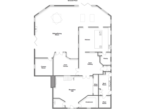
Extensive living: 30ft hall, 53ft sitting/dining room, cinema room
Principal suite with dressing room, luxury bathroom and 40' roof terrace
Detached annexe with 3 beds, studio above outbuildings and double garage
Heated outdoor pool, formal lawns, small lake and mature trees
Working vineyard available separately — not automatically included in sale
Very large grounds (9.45 acres); significant maintenance and running costs
Council tax described as quite expensive; verify consents for conversions
Set within about 9.45 acres in the High Weald AONB, this refurbished country home combines traditional character with contemporary living. The principal house, converted from former barns, offers expansive reception spaces including a dramatic double-height entrance hall, a 53ft garden-style sitting/dining room and a cinema room. The principal suite opens onto a 40' roof terrace with sweeping countryside views. A detached annexe, outbuildings, heated swimming pool, double garage and triple cart lodge add flexible accommodation and substantial parking.
The owners have fully modernised and extended the property while retaining exposed beams, inglenook fireplaces and oak fittings. The kitchen/breakfast room features a walk-in pantry, island and high-end stainless steel appliances; there is also a wine cellar and extensive storage. Grounds include formal lawns, a decked pool terrace, a small lake, mature trees and two large adjoining fields.
A working vineyard borders the site and is available by separate negotiation; this presents an income or lifestyle opportunity but is not included in the sale unless agreed. The estate is approached via automated gates and a long private drive offering seclusion, yet Eridge village and Tunbridge Wells are within an easy drive with regular rail links to London.
Practical points to note: the house sits on a very large plot which carries ongoing maintenance and groundskeeping responsibilities. Council tax is described as quite expensive. Interested parties should verify planning and building regulation consents for the barn conversions and extensions, and confirm which fixtures, fittings and acreage (including the vineyard) are included in the sale.
4 bedroom detached house for sale in Blackdon Hill, Eridge Green, Tunbridge Wells, Kent, TN3 — £4,250,000 • 4 bed • 4 bath • 7235 ft²
6 bedroom detached house for sale in Meres Lane, Cross In Hand, Heathfield, East Sussex, TN21 — £1,650,000 • 6 bed • 4 bath • 5000 ft²
5 bedroom detached house for sale in Danegate, Eridge Green, Tunbridge Wells, East Sussex, TN3 — £4,250,000 • 5 bed • 4 bath • 7235 ft²
6 bedroom detached house for sale in Eridge Park, Eridge Green, Tunbridge Wells, Kent, TN3 — £3,000,000 • 6 bed • 5 bath • 8240 ft²
5 bedroom semi-detached house for sale in Corseley Road, Groombridge, Tunbridge Wells, East Sussex, TN3 — £1,200,000 • 5 bed • 3 bath • 3905 ft²
8 bedroom house for sale in Cansiron Lane, Cowden, Edenbridge, Kent, TN8 — £3,250,000 • 8 bed • 6 bath • 14500 ft²






























































































































