Comfortable, move-in-ready family home near Godstone station and local schools.
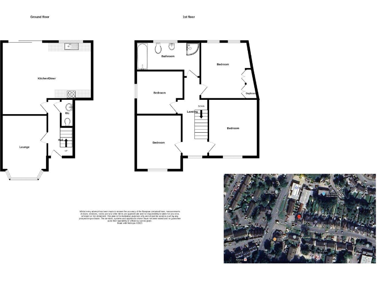
- Four double bedrooms across two floors
- Generous open-plan kitchen/diner with sliding doors
- Bay-fronted lounge providing good natural light
- Rear garden mostly lawn with paved patio
- Off-street parking and small forecourt garden
- Single family bathroom (bath and separate shower)
- Council tax band above average
- Built 1930–1949; double glazing install date unknown
This well-presented four-bedroom semi-detached house offers flexible family accommodation over two floors and is offered chain free. The ground floor features a bay-fronted lounge and a generous open-plan kitchen/diner/sitting room with sliding doors to the rear garden, creating a bright family hub. Off-street parking and a small forecourt add everyday convenience.
Upstairs are four double bedrooms and a family bathroom with both a bath and separate shower cubicle. The property is neutrally decorated and move-in ready, but there is clear scope to modernise the kitchen and bathrooms to increase value. Built between 1930–1949 with cavity walls and double glazing (installation date unknown), the house sits in an affluent, low-crime area with good local schools and walking distance to Godstone station.
Practical points to note: the home has a single family bathroom, council tax is above average, and the front garden is small. The plot is a decent size for the area, and the property would suit a family seeking a low-maintenance home or an investor wanting straightforward rental potential. Broadband speeds are average and mobile signal is excellent.
3 bedroom semi-detached house for sale in Lagham Road, South Godstone, Godstone, RH9 — £425,000 • 3 bed • 1 bath • 893 ft²
3 bedroom semi-detached house for sale in Lagham Road, South Godstone, RH9 — £375,000 • 3 bed • 1 bath • 1109 ft²
3 bedroom end of terrace house for sale in Oaklands, South Godstone, Godstone, RH9 — £415,000 • 3 bed • 1 bath • 990 ft²
3 bedroom terraced house for sale in Oaklands, South Godstone, Godstone, RH9 — £400,000 • 3 bed • 1 bath • 1001 ft²
5 bedroom semi-detached house for sale in Easter Way, South Godstone, Surrey, RH9 — £595,000 • 5 bed • 2 bath • 1318 ft²
4 bedroom semi-detached house for sale in Hunters Chase, South Godstone, RH9 — £650,000 • 4 bed • 2 bath • 1716 ft²










































































