Two-bedroom ground-floor flat with private garden and no onward chain.
Under 200 yards to seafront promenade
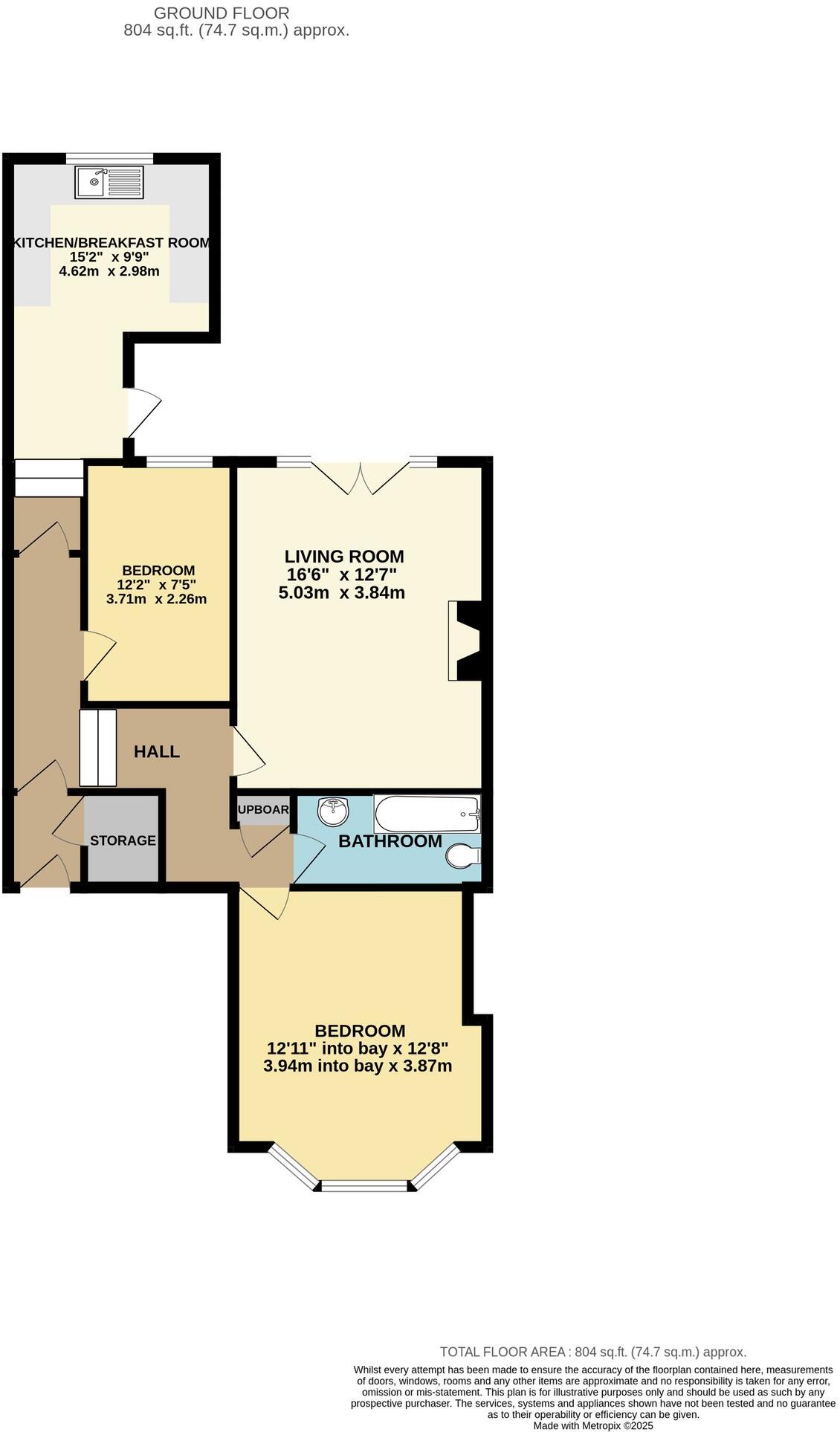
Light-filled ground-floor flat a short stroll from Bexhill’s seafront, offered with no onward chain and a 50% share of freehold. The adaptable two-bedroom layout (approx. 804 sq ft) has period character, a private entrance and French doors from the living room onto a west-facing deck and enclosed rear garden — a rare benefit for a ground-floor flat.
Practical points: the kitchen/breakfast room includes a wall-mounted boiler installed about five years ago and space for appliances; loft access provides useful storage. Double glazing was installed after 2002. The property presents a straightforward canvas for cosmetic updating or modest improvement to add value.
Important considerations: the building is solid brick construction (likely original walls without added cavity insulation), so energy efficiency may be lower than modern builds. There is no visible off-street parking. The immediate area scores as very deprived with higher local crime levels, so buyers should weigh location factors. Council tax is very low, and broadband/mobile signals are good.
This home will suit a first-time buyer or couple seeking seaside proximity, low-entry ownership with share of freehold, and outside space. Early viewing is recommended to appreciate the garden, light and layout in person.
2 bedroom ground floor flat for sale in Linden Road, Bexhill-on-Sea, TN40 — £200,000 • 2 bed • 1 bath • 853 ft²
2 bedroom ground floor flat for sale in Sea Road, Bexhill-on-Sea, TN40 — £275,000 • 2 bed • 1 bath • 821 ft²
2 bedroom flat for sale in Wickham Avenue, Bexhill on Sea, TN39 — £229,950 • 2 bed • 1 bath • 655 ft²
2 bedroom ground floor flat for sale in Wickham Avenue, Bexhill-on-Sea, TN39 — £280,000 • 2 bed • 2 bath • 864 ft²
2 bedroom flat for sale in Clifford Road, Bexhill-On-Sea, TN40 — £199,995 • 2 bed • 1 bath • 826 ft²
2 bedroom ground floor flat for sale in Wickham Avenue, Bexhill-on-Sea, TN39 — £300,000 • 2 bed • 2 bath • 1088 ft²


















































































