Flexible four-bed home with self-contained annexe and large south-facing garden.
No upper chain — immediate completion possible
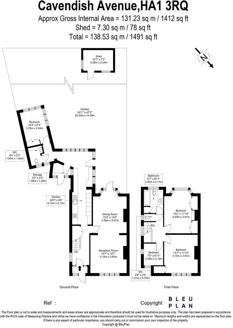
Spacious and versatile, this extended four-bedroom semi-detached home offers over 1,400 sq ft of family living and comes to market chain free. A newly fitted kitchen/diner and a through lounge provide comfortable communal space, while a self-contained ground-floor annexe gives flexible options for guests, extended family or a home office.
Three good-sized bedrooms sit on the first floor with an additional fourth bedroom on the ground floor, alongside two bathrooms. The rear garden faces south, offering a private outdoor space for children and summer entertaining. Off-street parking and a sizable front driveway add practical convenience for households with cars.
Constructed in the 1930s with a Tudor Revival façade, the house retains attractive period character but has some practical maintenance considerations. Walls are solid brick (insulation likely absent), double glazing appears to pre-date 2002, and the property may benefit from energy-efficiency upgrades. Council tax is high locally and reported crime levels are above average; buyers should factor these points into their budgeting and security plans.
Situated on a quiet residential avenue with good transport links to the Piccadilly Line and within reach of a mix of well-regarded independent and state schools, the home suits growing families or multi-generational households seeking space and flexibility in Harrow. Early viewing is recommended to appreciate the layout and potential firsthand.
4 bedroom semi-detached house for sale in Cavendish Avenue, Harrow, HA1 — £725,000 • 4 bed • 2 bath • 1358 ft²
4 bedroom semi-detached house for sale in Woodberry Avenue, North Harrow, HA2 — £750,000 • 4 bed • 2 bath • 1530 ft²
4 bedroom end of terrace house for sale in Allendale Road, Greenford, UB6 — £700,000 • 4 bed • 4 bath • 1657 ft²
4 bedroom semi-detached house for sale in Alexandra Avenue, Harrow, HA2 — £750,000 • 4 bed • 2 bath • 1408 ft²
6 bedroom semi-detached house for sale in South Vale, Harrow, Middlesex, HA1 — £900,000 • 6 bed • 5 bath • 2604 ft²
5 bedroom semi-detached house for sale in Nibthwaite Road, Harrow, HA1 — £800,000 • 5 bed • 2 bath • 1874 ft²






























































