Chain-free four-bedroom semi with garage, garden and scope to modernise..
No onward chain — ready for quick sale
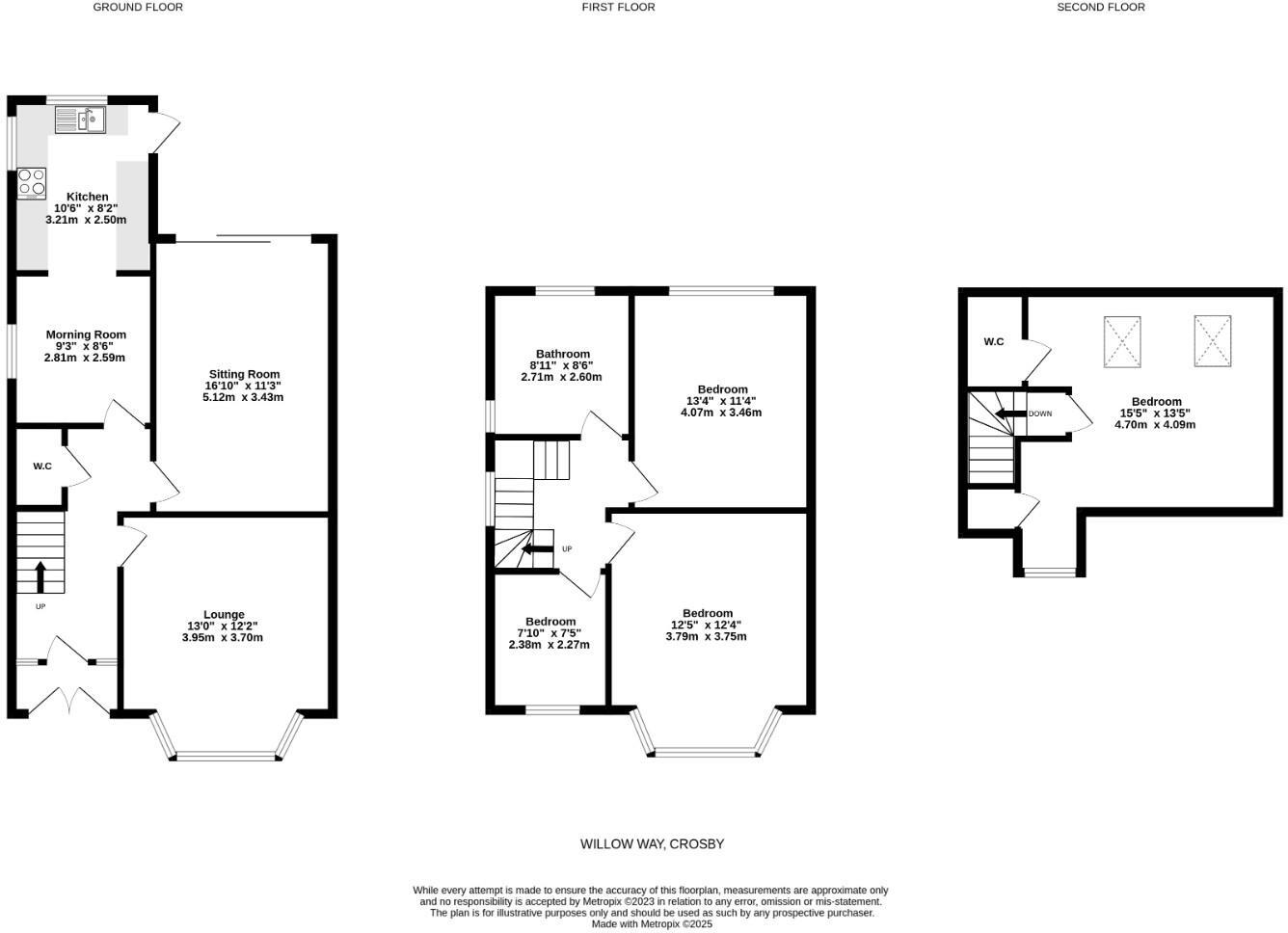
This four-bedroom semi‑detached house on Willow Way is a practical family home offered with no onward chain. The layout spans three levels with two reception rooms, a breakfast area and a fitted kitchen that opens to an enclosed rear garden — good everyday spaces for family life and entertaining.
The property includes an ensuite top-floor bedroom plus three further bedrooms and a large family bathroom, making it flexible for children, a home office or guests. Off‑street parking, an attached single garage and a private rear garden add useful storage and outside space. Double glazing and mains gas central heating provide basic comfort and efficiency.
Built in the 1930s, the house retains period bay windows and traditional character but would benefit from modernisation to realise its full potential; there is scope to extend (subject to planning). Note the cavity walls are assumed to have no added insulation and the property sits in a wider area showing pockets of deprivation — buyers should factor potential upgrade costs into their plans.
Overall this is a family‑sized home in a comfortable Crosby neighbourhood, suitable for buyers seeking a ready-to-move-in property with scope to improve and add value. Chain‑free status and good local amenities make it straightforward to progress to purchase.
4 bedroom semi-detached house for sale in Manor Road, Crosby, Liverpool, L23 — £400,000 • 4 bed • 1 bath • 1560 ft²
3 bedroom detached house for sale in Moor Lane, Crosby, Liverpool, L23 — £360,000 • 3 bed • 1 bath • 1374 ft²
3 bedroom semi-detached house for sale in Sharples Crescent, Liverpool, L23 — £210,000 • 3 bed • 1 bath • 743 ft²
4 bedroom house for sale in Ascot Park, Crosby, Liverpool, L23 — £420,000 • 4 bed • 2 bath • 1544 ft²
3 bedroom semi-detached house for sale in Edgemoor Drive, LIVERPOOL, Merseyside, L23 — £330,000 • 3 bed • 2 bath • 1356 ft²
4 bedroom detached house for sale in Moor Coppice, Liverpool, L23 — £460,000 • 4 bed • 1 bath • 1667 ft²


































































































































