Light-filled four-bedroom Victorian home with south garden and powered studio, near Elizabeth line.
Freehold Victorian mid-terrace, architecturally reimagined across three floors
Extended open-plan kitchen/diner with sliding pocket doors and island
Four bedrooms including loft master with en‑suite and walk-through wardrobe
Landscaped south-facing garden plus fully powered and plumbed studio
Newly renovated interior retaining period features and timber flooring
Solid brick walls; no confirmed wall insulation — consider upgrade works
Small plot size; practical outdoor space but modest footprint
Located near Forest Gate stations, good schools, low local crime
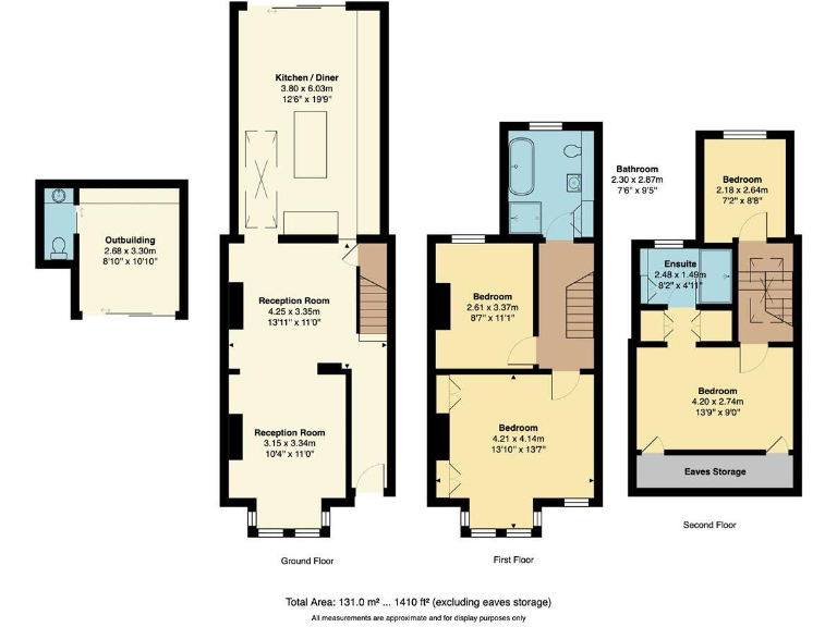
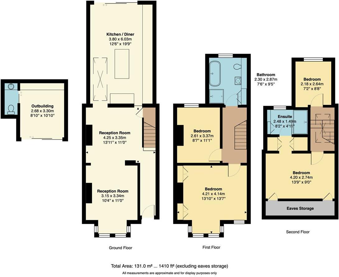
This reimagined Victorian mid-terrace combines period character with contemporary living across three floors — ideal for a growing family. The house has been carefully renovated, retaining original features such as timber flooring, bay windows and decorative cornices, while delivering a generous extended kitchen/diner that welcomes abundant natural light through sliding pocket doors.
The layout includes four bedrooms (master suite in the loft with en-suite), a family bathroom, and two reception rooms that work well as living and play spaces. A landscaped south-facing garden and a fully powered and plumbed studio provide flexible space for a home office, gym or hobby room. The property is freehold and presented in move-in condition.
Practical considerations are flagged honestly: the terrace is of solid brick construction and there is no confirmed internal wall insulation, so buyers should consider potential insulation works to improve energy efficiency. The plot is modest in size. The property sits in a deprived area statistically, though local crime levels are low and community amenities are strong. Transport links are excellent, including Forest Gate on the Elizabeth line, making Stratford and central London easily reachable.
Families will appreciate nearby schools (including outstanding-rated options) and green spaces such as Wanstead Flats and Plashet Park. Overall, this home offers a ready-made, tasteful family environment with scope to personalise energy performance and landscaping to your taste.
4 bedroom terraced house for sale in South Esk Road, Forest Gate, E7 — £685,000 • 4 bed • 2 bath • 1494 ft²
3 bedroom terraced house for sale in Strone Road, Forest Gate, E7 — £600,000 • 3 bed • 1 bath • 1143 ft²
4 bedroom terraced house for sale in Lorne Road, Forest Gate, E7 — £975,000 • 4 bed • 2 bath • 1455 ft²
3 bedroom terraced house for sale in Tylney Road, Forest Gate, E7 — £775,000 • 3 bed • 1 bath • 1057 ft²
4 bedroom terraced house for sale in Godwin Road, Forest Gate, London, E7 0LP, E7 — £850,000 • 4 bed • 2 bath • 1500 ft²
3 bedroom terraced house for sale in Halley Road, Forest Gate, London, E7 — £600,000 • 3 bed • 1 bath • 1027 ft²






















































































































































































































































































