Detached four‑bed family house with garage, large garden and orangery in peaceful Knockin cul‑de‑sac.
Four well‑proportioned bedrooms with principal en‑suite
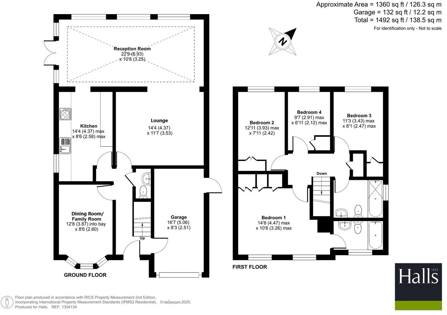
Set on a generous plot in a quiet Knockin cul-de-sac, this well‑proportioned four-bedroom detached house suits family life and flexible layouts. The ground floor flows from a modern kitchen and dining room into a bright reception with bi-folds to an orangery, providing substantial natural light and easy indoor–outdoor living.
Built in the early 2000s and cavity‑filled with double glazing installed, the home is efficiently constructed and ready to occupy. Practical features include an integral garage, private driveway, three garden sheds and a neatly maintained lawn with paved patio – good for family play and entertaining. The loft is insulated and there is an en‑suite to the principal bedroom.
Buyers should note the property uses LPG heating (private underground tank) rather than mains gas, and broadband and mobile signals are average in the area. Council Tax is band D. The village location offers basic amenities and good schooling options nearby, while Oswestry and road links to Chester and Shrewsbury are within reasonable driving distance.
4 bedroom detached house for sale in Knights Grove, Knockin, SY10 — £410,000 • 4 bed • 2 bath • 1318 ft²
4 bedroom detached house for sale in Kinnerley Road, Knockin, SY10 — £595,000 • 4 bed • 2 bath • 1990 ft²
5 bedroom detached house for sale in Knights Grove, Knockin, Oswestry, SY10 8PU., SY10 — £580,000 • 5 bed • 3 bath • 2478 ft²
4 bedroom detached house for sale in Coedway, Shrewsbury, SY5 — £485,000 • 4 bed • 1 bath • 1338 ft²
3 bedroom detached bungalow for sale in Knockin Heath, SY10 — £391,000 • 3 bed • 1 bath • 921 ft²
3 bedroom detached house for sale in Knockin, Oswestry, Shropshire, SY10 — £625,000 • 3 bed • 3 bath • 2869 ft²


















































































