Low‑maintenance two-bedroom flat with garden, parking and strong transport links.
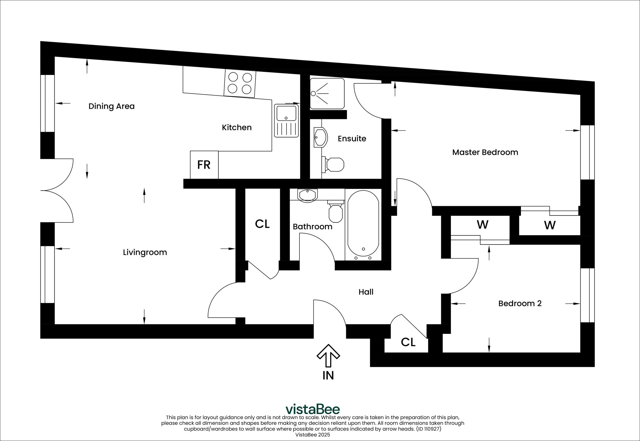
Freehold two-bedroom flat with en suite and separate bathroom
Direct access to a small private front garden
Residents off-street parking included
Open-plan living/dining with strong natural light
Double glazing and gas central heating throughout
Small communal grounds and modest overall site footprint
Located in an area classified as very deprived — consider implications
Good condition but minor cosmetic upgrades could add value
Tidy, low‑maintenance living is on offer in this ground/first-floor two-bedroom flat with its own small private garden and residents' parking. The open-plan living/dining room receives strong natural light through full-height glazing and flows to a modest outdoor space — a real advantage for first-time buyers who value outdoor access without garden upkeep. The accommodation includes a master bedroom with en suite, a further double bedroom and a separate bathroom; the flat is double glazed with gas central heating and presented in good, modern condition.
The property is freehold and sits in a well-maintained red-brick development close to Anniesland’s shops, cafés and transport links, with the West End easily reachable by road or rail. Practical features such as walk-in storage off the reception hall, integrated kitchen appliances and off-street parking add convenience for daily life and rental appeal for investors.
Buyers should note the wider location is classified as very deprived, which can affect local services and long‑term capital growth; factor this into budgeting and resale expectations. The communal grounds are small and the development footprint is modest, so outdoor space is limited compared with larger suburban houses. Minor kitchen or bathroom upgrades could add value but the flat is habitable with limited immediate expenditure.
Overall this is a sensible choice for a first-time buyer or buyer downsizing who wants contemporary, low‑maintenance accommodation with garden access and parking, plus good transport links into Glasgow.
2 bedroom flat for sale in 0/1 76 Strathblane Gardens, Glasgow, G13 1BX, G13 — £135,000 • 2 bed • 2 bath • 807 ft²
2 bedroom flat for sale in Ochiltree Avenue, Anniesland, G13 — £134,000 • 2 bed • 1 bath • 624 ft²
2 bedroom flat for sale in 290 Knightswood Road, Glasgow, G13 2BS, G13 — £119,000 • 2 bed • 1 bath
2 bedroom flat for sale in Penrith Drive, Kelvindale G12 — £135,000 • 2 bed • 1 bath • 764 ft²
2 bedroom apartment for sale in Netherton Gardens, Anniesland, Glasgow, G13 — £149,000 • 2 bed • 1 bath • 663 ft²
2 bedroom flat for sale in Preston Place, Glasgow, G42 — £105,000 • 2 bed • 1 bath • 476 ft²






























































