Energy-efficient three-bedroom close to Maidenhead town centre and Elizabeth Line.
- 23 solar panels for significantly reduced energy costs
- Professionally landscaped, low-maintenance rear garden
- Driveway off-street parking with convenient side access
- Newly renovated throughout with contemporary fittings
- Compact overall size (~745 sq ft); smaller rooms
- Single bathroom only; may not suit larger families
- Freehold in very affluent area, close to transport links
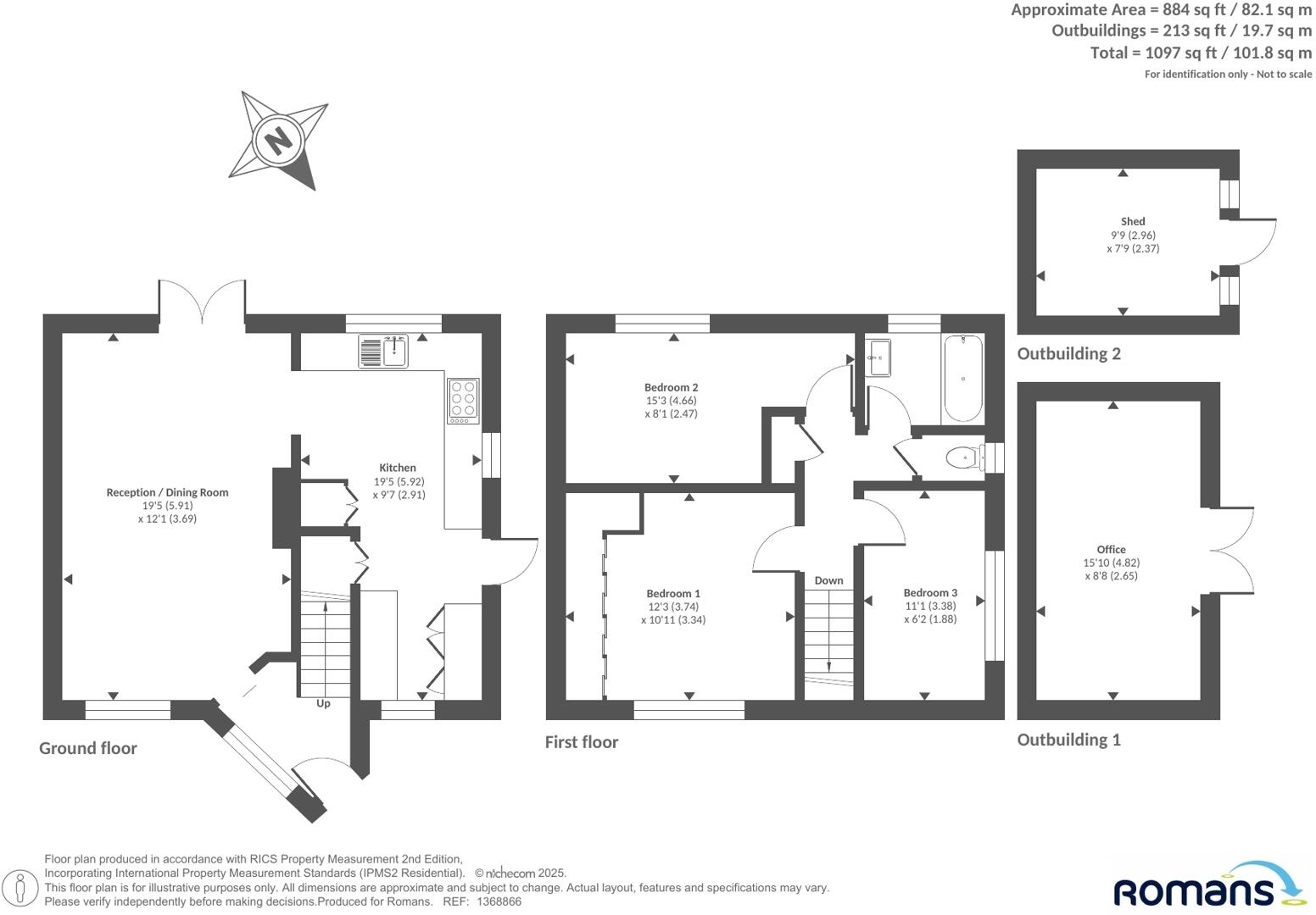
This newly renovated three-bedroom semi-detached house on Queensway offers efficient, low-running-cost living thanks to 23 roof-mounted solar panels. The interior is presented in contemporary décor with an open-plan living/dining area, modern fitted kitchen and hardwood floors, creating a bright, comfortable home for everyday family life.
The landscaped rear garden is private and low-maintenance, suited to entertaining or relaxing, while driveway parking and side access add practical convenience. The property measures about 745 sq ft, so rooms are well-proportioned but the overall footprint is compact; buyers should be comfortable with a smaller home and single bathroom.
Located a short distance from Maidenhead town centre and the Elizabeth Line, the house benefits from fast broadband, excellent mobile signal and low local crime. Nearby state and independent schools, including Furze Platt (Outstanding) and local amenities, make this a convenient choice for families.
Tenure is freehold and the area is very affluent, which supports long-term value. The house is ready to move into following recent refurbishment, but its smaller size and one-bathroom layout may limit suitability for larger families or those needing extra living space.
4 bedroom house for sale in St. Francis Road, Maidenhead, SL6 — £900,000 • 4 bed • 2 bath • 1699 ft²
5 bedroom semi-detached house for sale in Courthouse Road, Maidenhead, SL6 — £950,000 • 5 bed • 4 bath • 1967 ft²
4 bedroom detached house for sale in Courthouse Road, Maidenhead, SL6 — £1,000,000 • 4 bed • 3 bath • 1402 ft²
3 bedroom semi-detached house for sale in Prestwick Green, Binfield, Bracknell, Berkshire, RG42 — £480,000 • 3 bed • 2 bath • 879 ft²
3 bedroom semi-detached house for sale in Queensway, Maidenhead, SL6 — £525,000 • 3 bed • 1 bath • 848 ft²
3 bedroom end of terrace house for sale in Wood Close, Windsor, SL4 — £530,000 • 3 bed • 2 bath • 1070 ft²


















































































