**Standout Features:**
- Modern ground floor apartment, built in 2009
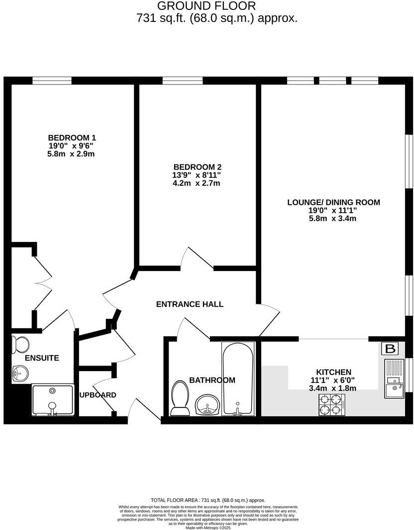
- 2 bedrooms and 2 bathrooms, including an en-suite
- Spacious open-plan living/dining room
- Allocated parking and access to communal grounds
- Chain-free sale with 119 years remaining on lease
**Potential Concerns:**
- Positioned in an area with above-average crime rate
- Average sized rooms may feel compact for larger families
- Service charge of £2,160 per annum and small ground rent
Nestled on the picturesque Anstey Road, this contemporary two-bedroom apartment offers a perfect combination of modern comfort and convenience. With a well-designed layout encompassing 731 square feet, it features a bright open-plan living/dining area, making it ideal for both relaxation and entertaining. Enjoy the luxury of two bathrooms, including an en-suite for the main bedroom, ensuring privacy and convenience for families or professionals. The property boasts allocated parking in this sought-after locale, directly adjacent to Farnham Hospital and within a short walk to the vibrant town center, bustling with shops and restaurants.
This home presents a fantastic opportunity for first-time buyers or those looking to invest in a rental property, particularly given its desirable location in a well-connected area with excellent broadband and mobile signal. However, it’s essential to be mindful of the higher crime rates in the vicinity and the ongoing service costs. Positioned as a chain-free sale, with a manageable lease remaining, this apartment invites you to envision your future here—capturing modern living at its finest. Don't miss out on this attractive offering; secure your viewing today!
2 bedroom apartment for sale in Warren Close, Farnham, Surrey, GU9 — £295,000 • 2 bed • 2 bath • 813 ft²
2 bedroom apartment for sale in West Mead, The Hart, Farnham, Surrey, GU9 — £285,000 • 2 bed • 1 bath • 602 ft²
2 bedroom apartment for sale in Guildford Road, Farnham, Surrey, GU9 — £259,950 • 2 bed • 1 bath • 526 ft²
2 bedroom apartment for sale in Upper Weybourne Lane, Farnham, Surrey, GU9 — £210,000 • 2 bed • 1 bath • 637 ft²
2 bedroom flat for sale in Overton Court, Tongham, Farnham, Surrey, GU10 — £260,000 • 2 bed • 2 bath • 917 ft²
2 bedroom apartment for sale in Anstey Road, Farnham, Surrey, GU9 — £285,000 • 2 bed • 1 bath • 699 ft²






























































