Compact modern flat with balcony, ideal for rental income or city living.
Top-floor one-bedroom with balcony and city views
Open-plan living and kitchen with large windows
Approx 431 sq ft — compact city apartment
Currently let at £980 pcm; vacant possession possible
125-year lease remaining; below-average service charge
Heating via electric room heaters, no gas central heating
Service charge £783.32pa; ground rent £121.58pa
Built 2003–2006; double glazing already installed
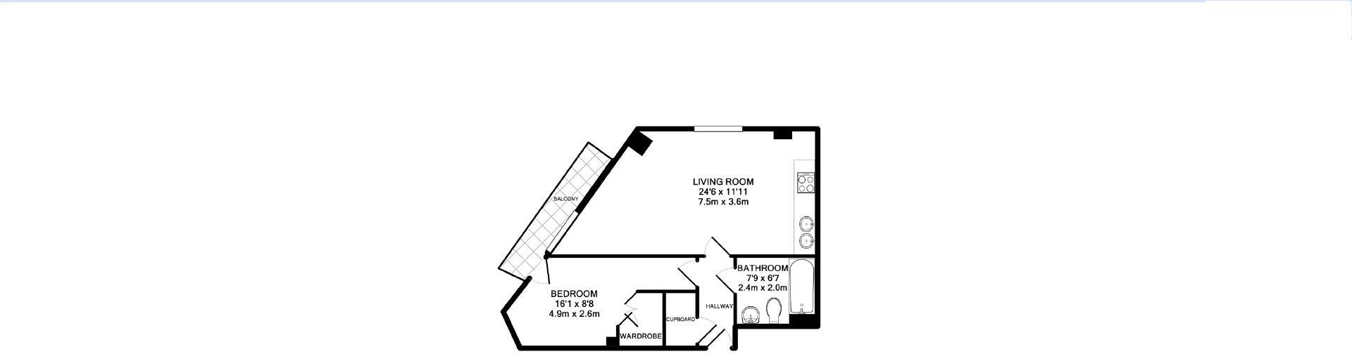
Set on the top floor of the City Gate development in Castlefield, this one-bedroom apartment offers compact, low-maintenance city living with a private balcony and clear city views. The open-plan living/kitchen maximises natural light from large windows and the double bedroom includes built-in wardrobes for efficient storage.
The property is attractive to investors and city professionals: it currently achieves £980 pcm, producing an immediate rental income, and can be sold with vacant possession on request. The 125-year lease provides long-term security, and the below-average service charge helps running costs remain reasonable.
Important practical points: the home is small at around 431 sq ft so suits single buyers or couples, and heating is by electric room heaters rather than a central gas system. Buyers should check the working condition of appliances and services themselves. Overall, this is a well-located modern apartment with rental appeal and easy city access.
2 bedroom apartment for sale in Blantyre Street, Manchester, Greater Manchester, M15 — £145,000 • 2 bed • 1 bath • 514 ft²
2 bedroom apartment for sale in Blantyre Street, Manchester, Greater Manchester, M15 — £130,000 • 2 bed • 1 bath • 564 ft²
2 bedroom apartment for sale in Blantyre Street, Manchester, M15 — £220,000 • 2 bed • 2 bath • 569 ft²
2 bedroom apartment for sale in Blantyre Street, Manchester, M15 — £133,000 • 2 bed • 1 bath • 657 ft²
1 bedroom apartment for sale in Castlegate, Manchester, M15 — £219,975 • 1 bed • 1 bath • 514 ft²
1 bedroom apartment for sale in City Gardens, Spinners Way, M15 — £155,000 • 1 bed • 1 bath • 424 ft²


































