Light-filled Georgian character with modern comfort near beaches and village amenities.
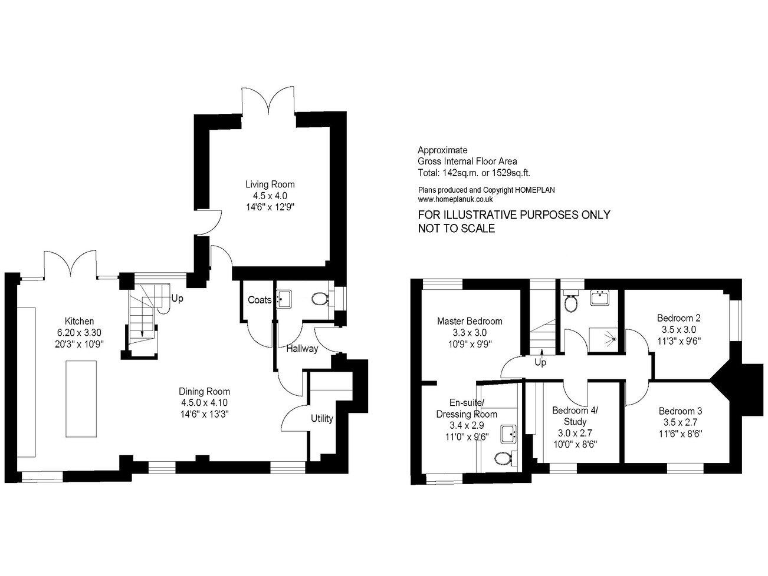
Four double bedrooms and two bathrooms, circa 1,550 sq ft
Grade II listed — statutory consent likely needed for changes
Completely refurbished: rewired, replumbed, new heating and insulation
Underfloor heating, excellent EPC (C:75), solar pre-wired
EV charging point and off-street parking for two cars
South-facing landscaped garden with two patios, low maintenance
Chain free and six-year professional consultants warranty
Small annual private-road fee c. £60 (insurance/maintenance)
Set in the heart of Milford on Sea, this Grade II listed former coaching inn blends Georgian character with fully modernised living. The house offers four double bedrooms, two bathrooms and about 1,550 sq ft of light-filled accommodation arranged over two floors, with high ceilings, exposed beams and contemporary finishes throughout.
The ground floor centres on a generous open-plan kitchen and dining area plus a separate vaulted living room, both opening to a south-facing, low-maintenance garden with two patio areas. Practical features include underfloor heating throughout, a new gas boiler, EV charging point, solar pre-wiring, two off-street parking spaces and ultra-fast fibre broadband.
The property has been comprehensively refurbished to current building regulations, with upgraded insulation, new electrics and plumbing, breathable lime-plaster wall system and a six-year professional consultants warranty. It is offered with no forward chain and sits a short stroll from the village green, beaches, cliff-top walks and Keyhaven nature reserve — ideal for active family life or a coastal pied-à-terre.
Buyers should note the Grade II listed status and location in a conservation area, which can restrict alterations and require listed-building consents. The plot is modest in size and there is a small annual fee (approximately £60) for the managed private roadway insurance and maintenance.
3 bedroom semi-detached house for sale in Keyhaven Road, Milford on Sea, SO41 — £750,000 • 3 bed • 3 bath • 1227 ft²
3 bedroom semi-detached house for sale in Keyhaven Road, Milford on Sea, Lymington, Hampshire, SO41 — £750,000 • 3 bed • 3 bath • 1292 ft²
4 bedroom semi-detached house for sale in White Horse Lane, Milford-On-Sea, Hampshire, SO41 — £835,000 • 4 bed • 2 bath • 1550 ft²
Garage for sale in Church Hill, Milford on Sea, Lymington, Hampshire, SO41 — £795,000 • 3 bed • 2 bath • 2240 ft²
4 bedroom detached house for sale in Keyhaven Road, Milford on Sea, Lymington, SO41 — £825,000 • 4 bed • 2 bath • 1729 ft²
3 bedroom house for sale in Church Hill, Milford on Sea, Lymington, Hampshire, SO41 — £795,000 • 3 bed • 2 bath • 2169 ft²


























































