Spacious three-bedroom with original character and rear parking potential for growing families.
Extended three-bedroom layout with generous natural light
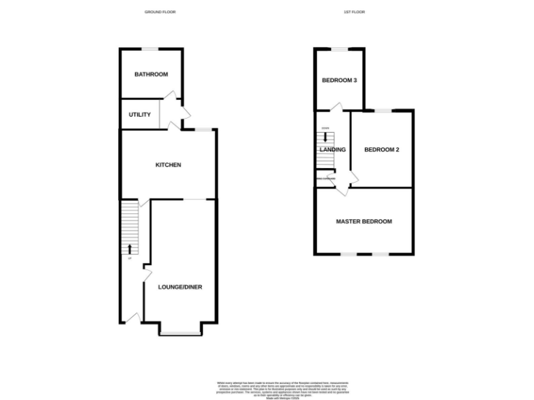
This larger-than-average three-bedroom end-of-terrace offers a blend of original Victorian character and a modern extended layout. The entrance hallway, bay windows and some original features create welcome kerb appeal and plenty of natural light across the principal rooms.
A recent extension adds flexible living space and a modern kitchen with wood countertops and patio doors to the garden. There is potential to create off-street parking at the rear — a useful advantage in this area — though this would require works and planning checks.
Practical details suit family buyers: freehold tenure, fast broadband, and a low Council Tax band B. The property has a single bathroom and a small rear plot, so buyers seeking larger outside space or multiple bathrooms should note those limits.
The location is convenient for local shops, transport and a range of primary and secondary schools. Be aware the neighbourhood records higher crime and local deprivation indicators; two nearby schools are rated “Requires improvement” and one is “Inadequate.” The sale is part of a closed chain, which may speed a purchase for buyers ready to move quickly.
3 bedroom terraced house for sale in Raybrook Crescent, Rodbourne, Swindon, Wiltshire, SN2 — £270,000 • 3 bed • 1 bath • 667 ft²
3 bedroom terraced house for sale in Montagu Street, Rodbourne, Swindon, SN2 — £265,000 • 3 bed • 2 bath • 967 ft²
3 bedroom terraced house for sale in Corfe Road, Toothill, Swindon, Wiltshire, SN5 — £250,000 • 3 bed • 1 bath • 985 ft²
3 bedroom semi-detached house for sale in Church Walk North, Swindon, SN25 3, SN25 — £300,000 • 3 bed • 1 bath
3 bedroom terraced house for sale in Montagu Street, SWINDON, Wiltshire, SN2 — £240,000 • 3 bed • 1 bath • 870 ft²
3 bedroom terraced house for sale in Linslade Street, Swindon, SN2 2BL, SN2 — £250,000 • 3 bed • 1 bath • 905 ft²


















































