Freehold home with large garden and strong extension potential for first-time buyers.
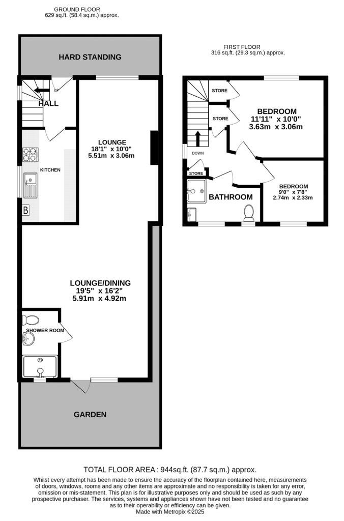
Two bedrooms and two bathrooms across approx. 1,034 sq ft
Large rear garden (circa 100ft) with extension potential (subject to planning)
Through lounge and fitted kitchen with modern ceramic floor finishes
Garage, outbuilding and off-street parking included
Freehold tenure in major conurbation with fast broadband and excellent mobile signal
Solid brick walls as built — likely no cavity insulation
Exterior paint and render show wear; some maintenance required
Double glazing install date unknown; energy upgrades may be needed
This spacious two-bedroom semi-detached house in TW5 offers generous living space across about 1,034 sq ft and sits on a decent plot with a long rear garden (circa 100ft) and off-street parking. The layout includes a through lounge, fitted kitchen, and two bathrooms, plus an outbuilding and garage that could serve as a home office, gym, or storage. The property is freehold and tucked into a well-connected area with good broadband and excellent mobile signal.
Built in the 1930s with Tudor Revival styling, the house has period character externally and some modern interior finishes such as contemporary floor tiles in one room. The long garden and scope to extend (subject to planning) present clear potential to add value for first-time buyers or investors. Local schools include several well-regarded primaries and secondaries within easy reach, and bus links provide straightforward local travel.
There are tangible maintenance and improvement needs to be aware of: some exterior paint and render show wear, the walls are original solid brick with no assumed cavity insulation, and the double glazing install date is unknown. Heating is mains gas via boiler and radiators; buyers should budget for potential insulation, window upgrades, and cosmetic work to modernise and improve energy efficiency.
Overall, this freehold semi-detached house suits a buyer seeking space and future development potential in a convenient, multicultural area. It offers immediate liveability with scope for refurbishment or extension to increase comfort and long-term value.
6 bedroom semi-detached house for sale in Blossom Waye, Heston, TW5 — £859,950 • 6 bed • 2 bath • 1944 ft²
3 bedroom semi-detached house for sale in Victoria Gardens, Hounslow, TW5 — £575,000 • 3 bed • 1 bath • 893 ft²
2 bedroom semi-detached house for sale in The Crossways, Hounslow, Greater London, TW5 — £599,950 • 2 bed • 2 bath
5 bedroom semi-detached house for sale in Great West Road, Hounslow, TW5 — £720,000 • 5 bed • 1 bath • 1494 ft²
3 bedroom semi-detached house for sale in Spring Grove Road, Hounslow, Greater London, TW3 — £600,000 • 3 bed • 1 bath
3 bedroom semi-detached house for sale in Heath Road, HOUNSLOW, TW3 — £625,000 • 3 bed • 2 bath • 1251 ft²






































