Modern, efficient living with large garden and excellent school catchment.
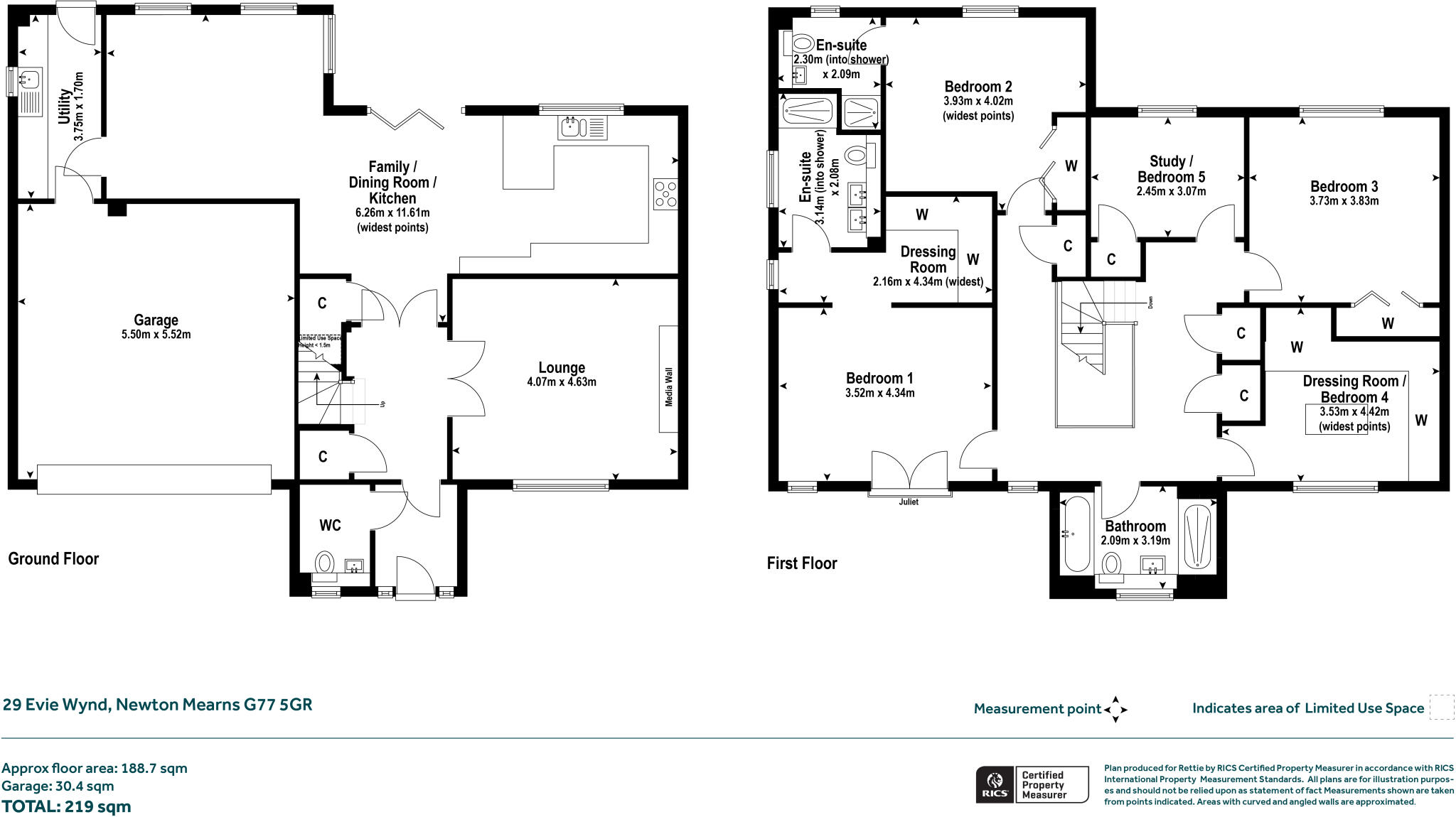
Five-bedroom detached home with integral garage and driveway parking
A substantial five-bedroom detached family home set in the Maidenhill area of Newton Mearns, offering generous living space across two levels and an integral garage with off-street parking. The house benefits from solar panels, fast broadband and the reassurance of the remainder of a 10-year NHBC warranty, making it efficient and low-maintenance to run.
Internally the property provides flexible accommodation for a growing family, with an open-plan kitchen/family area and a formal lounge. The sizeable rear garden has paved terraces and a lawn, creating an attractive outdoor entertaining space that connects directly to ground-floor living areas via wide doors. The property is freehold and sits within easy reach of high-performing local schools and nearby leisure amenities.
Buyers should note some material considerations: the listing data records a single bathroom despite five bedrooms, which may require adaptation or extension for larger families. Council tax is described as quite expensive and the local area metrics indicate pockets of deprivation, factors to weigh alongside the home’s countryside setting and strong school catchment. Overall this is a modern, well-specified detached house offering scope to personalise for long-term family use.
5 bedroom detached house for sale in Sollas Gardens, Newton Mearns, Glasgow, East Renfrewshire, G77 — £685,000 • 5 bed • 4 bath • 2116 ft²
5 bedroom detached house for sale in Maidenhill Grove, Newton Mearns, Glasgow, G77 — £515,000 • 5 bed • 4 bath • 1548 ft²
5 bedroom detached house for sale in Sollas Gardens, Newton Mearns, G77 — £650,000 • 5 bed • 3 bath • 2713 ft²
5 bedroom detached house for sale in Calico Road, Newton Mearns, Glasgow, G77 — £880,000 • 5 bed • 4 bath • 2906 ft²
4 bedroom detached house for sale in Maidenhill Grove, Newton Mearns, G77 — £575,000 • 4 bed • 3 bath • 1855 ft²
5 bedroom detached house for sale in Sandwick Crescent, Newton Mearns, Glasgow, East Renfrewshire, G77 — £695,000 • 5 bed • 4 bath • 2136 ft²






























































































































































