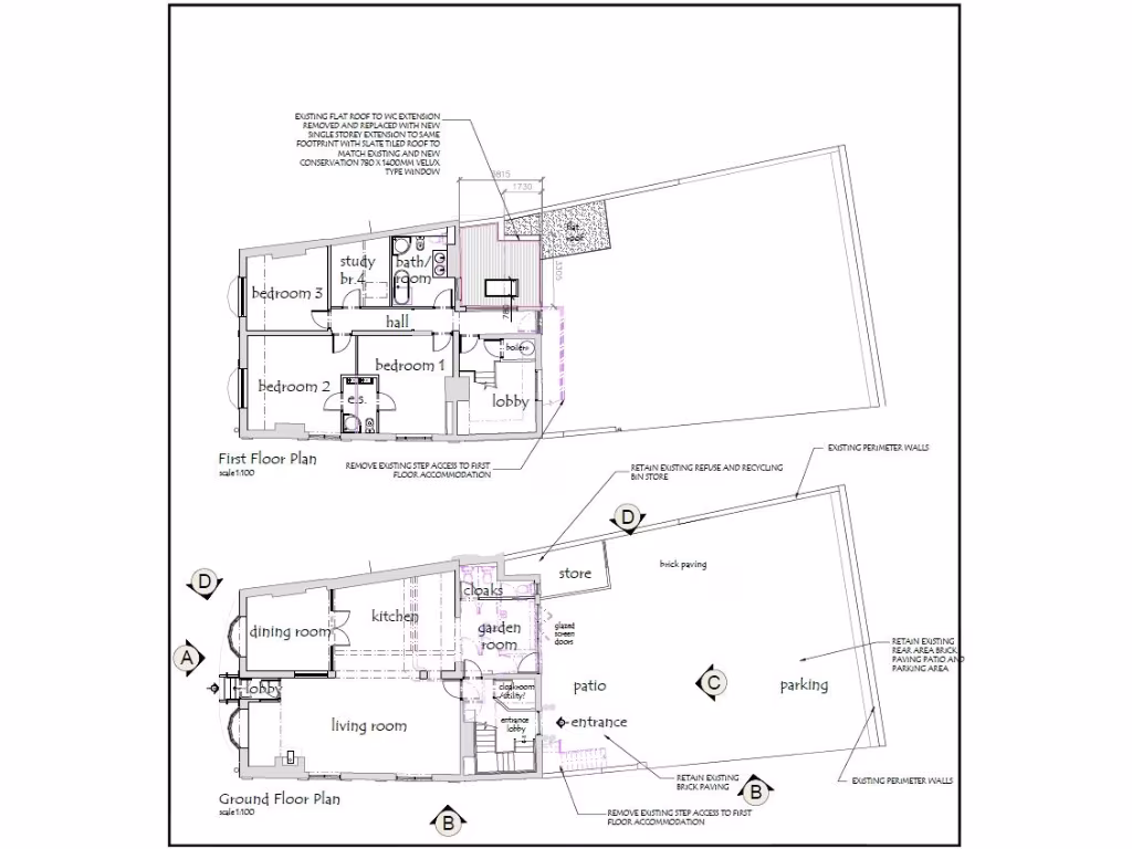
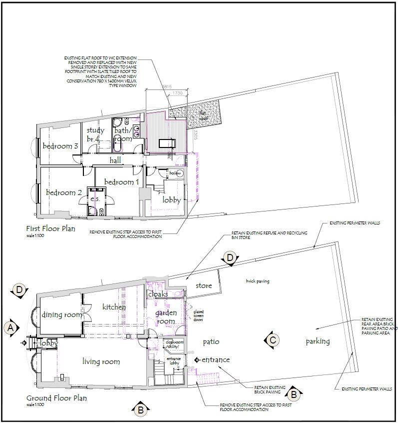
**Standout Features:**
- Former historic pub with conversion potential into a 4-bedroom residence
- Planning consent granted for renovation in October 2024
- Spacious upstairs apartment for comfortable living during renovations
- Generous main bar area, bar and cellar facilities on ground floor
- Welcoming kitchen-diner and cozy lounge perfect for family gatherings
- Low-maintenance rear garden and sizable courtyard-style parking area
- EPC Grade E, Council Tax Band A
**Summary Description:**
Discover a rare opportunity with this charming former Eagle Inn, poised for transformation into a delightful 4-bedroom family residence. Located in the vibrant heart of Eccleshall Town Centre, this property combines historic charm with modern living potential. Enjoy the spacious, bright upstairs apartment while you bring your design aspirations to life downstairs, featuring ample flexible spaces ready for customization.
The main bar area and cellar present unique opportunities for creative use, while the fully-equipped kitchen-diner invites family gatherings in a homely setting. A sizeable rear garden completes the package, offering a tranquil space for outdoor relaxation. With planning permission in hand, this is your chance to craft a unique home in a beloved local landmark. Don’t miss out; envision the possibilities and seize this exceptional chance today!
4 bedroom terraced house for sale in High Street, Eccleshall, Stafford, Staffordshire, ST21 — £375,000 • 4 bed • 2 bath • 1272 ft²
3 bedroom terraced house for sale in Southwell Estate, Eccleshall, Stafford, Staffordshire, ST21 — £280,000 • 3 bed • 1 bath • 1107 ft²
3 bedroom bungalow for sale in Eagle Crescent, Eccleshall, Stafford, Staffordshire, ST21 — £220,000 • 3 bed • 1 bath • 828 ft²
4 bedroom detached house for sale in Eagle's View, Newport Road, ST21 — £525,000 • 4 bed • 4 bath • 1966 ft²
Commercial development for sale in Labour In Vain, Yarnfield, Stone, Staffordshire, ST15 — £299,950 • 1 bed • 1 bath • 3797 ft²
4 bedroom detached house for sale in Badgers Croft, Eccleshall, ST21 — £490,000 • 4 bed • 2 bath • 1837 ft²


















































































