Spacious garden and off-street parking potential for first-time buyers or investors.
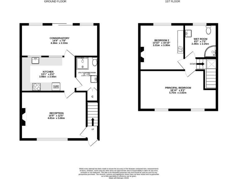
Chain free freehold 2-bed, 2-bath terraced house
This chain-free mid-terraced home offers a practical move-in option with clear scope to add value. The property is freehold, about 786 sq ft, and built in the 1930s–40s, with modern double glazing and mains gas heating. Two double bedrooms and two bathrooms suit first-time buyers wanting space or investors seeking a lettable layout.
The ground floor has a bright lounge, a modern fitted kitchen with lowered sink (access adaptation), and a conservatory that opens onto an established 15-metre rear garden with pond, greenhouse and shed. An additional shower room/utility on the ground floor increases flexibility; upstairs the recently upgraded wet room may suit current needs or be remodelled into a larger bathroom.
Practical positives include potential to reinstate the front drive for better off-street parking, excellent mobile signal and fast broadband for home working, plus low council tax and no flooding risk. The property does need renovation in places and the cavity walls are assumed uninsulated, so budget for insulation and likely decorative updates.
Located a short walk from local shops, schools and transport links, this house suits first-time buyers wanting room to grow, or buy-to-let and developer purchasers seeking modest renovation upside in a well-connected coastal town.
2 bedroom semi-detached house for sale in Swift Crescent, Deal, Kent, CT14 — £250,000 • 2 bed • 2 bath • 665 ft²
2 bedroom terraced house for sale in Deal, CT14 — £225,000 • 2 bed • 1 bath • 928 ft²
3 bedroom terraced house for sale in Matthews Close, Deal, Kent, CT14 — £280,000 • 3 bed • 1 bath • 915 ft²
3 bedroom terraced house for sale in Trinity Place, Deal, Kent, CT14 — £240,000 • 3 bed • 1 bath • 781 ft²
4 bedroom terraced house for sale in Blenheim Road, Deal, Kent, CT14 — £375,000 • 4 bed • 2 bath • 1710 ft²
3 bedroom semi-detached house for sale in The Street, Sholden, Deal, Kent, CT14 — £350,000 • 3 bed • 2 bath • 1185 ft²






























































