Large rooms, modern kitchen, strong commuter links and renovation potential.
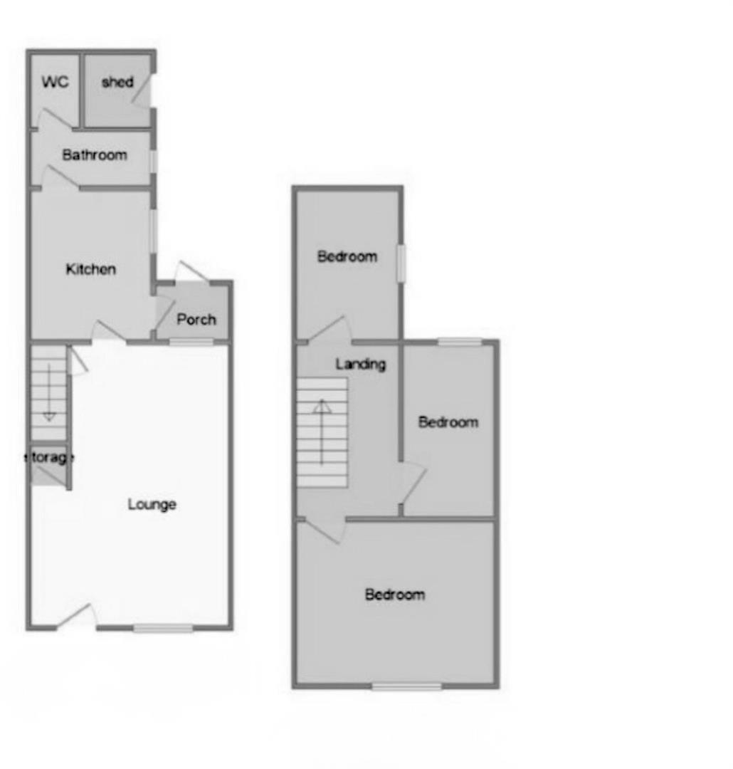
Chain-free three bedroom end terrace
A larger-than-average three-bedroom end terrace offered chain-free and ready for a new owner to personalise. High ceilings and a long lounge-diner create airy, flexible living space ideal for family life. The modern fitted kitchen and recently refitted downstairs shower room reduce immediate expense and make day-to-day living comfortable while renovations continue.
Practical benefits include side gated access, a small enclosed rear garden, and an outside brick store with power — useful for bikes, gardening tools or a workshop. The property sits within walking distance of shops, a butcher, primary schools and a park; Spalding train station is a short drive away, making commuting straightforward.
Material issues are stated plainly: the house requires some renovation work, including damp remedial work, and original solid-brick walls are likely uninsulated. Flood risk is medium in this postcode. These factors explain the realistic asking price and make the home suitable for buyers seeking value-add potential rather than a turnkey move-in. Freehold tenure and very low council tax are practical advantages for budget-conscious families.
2 bedroom terraced house for sale in Park Road, Spalding, PE11 — £135,000 • 2 bed • 1 bath • 904 ft²
3 bedroom terraced house for sale in Clay Lake, Spalding, PE11 — £100,000 • 3 bed • 1 bath • 582 ft²
3 bedroom end of terrace house for sale in London Road, Spalding, PE11 — £144,950 • 3 bed • 1 bath • 574 ft²
2 bedroom terraced house for sale in Winsover Road, Spalding, Lincolnshire, PE11 — £139,995 • 2 bed • 1 bath • 638 ft²
3 bedroom detached house for sale in Park Road, Spalding, PE11 — £210,000 • 3 bed • 1 bath • 1202 ft²
3 bedroom semi-detached house for sale in Balmoral Avenue, Spalding , Lincolnshire, PE11 — £169,995 • 3 bed • 1 bath • 782 ft²






































































