Two-bedroom terrace with rare large garden within walking distance of parks and culture.
Freehold Victorian mid-terrace with two double bedrooms
Generous rear garden — larger than typical for Canton terraces
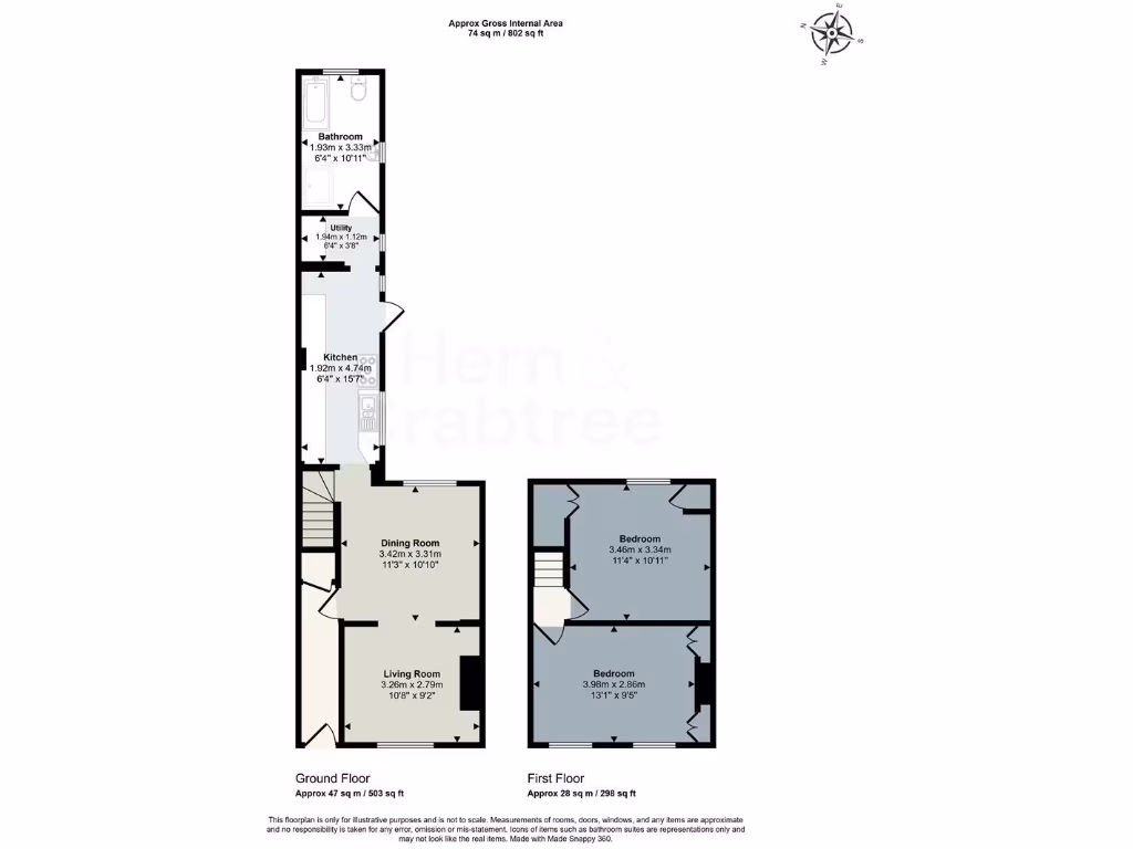
Through living/dining space with period features throughout
Approx. 802 sq ft; compact layout suited to couples or small families
EPC D and likely uninsulated solid stone walls — energy upgrades advised
Council Tax Band D; no flood risk and excellent mobile/broadband
Built 1900–1929; routine maintenance of render/roof likely needed
Located within walking distance of parks, Chapter Arts Centre and amenities
This Victorian mid-terrace offers a compact, well‑configured two-bedroom layout ideal for first-time buyers or a small family. The ground floor flows from a front living room through to a dining area and kitchen, with a generous rear garden that is larger than typical for the street — a rare outdoor asset in this part of Canton.
Period features such as coved ceilings, sash-style windows and a chimney breast give the house character, while later double glazing (installed after 2002) and a mains gas boiler with radiators provide practical comfort. The property is freehold, sits within easy walking distance of Victoria Park, Pontcanna Fields and Chapter Arts Centre, and benefits from excellent mobile signal and fast broadband — convenient for commuting or working from home.
Buyers should note the home is modest in overall size (about 802 sq ft) and sits in a very deprived area statistically, which can affect longer-term resale patterns. The EPC is rated D and the stone walls are likely uninsulated, so further energy-improvement work (wall insulation or upgrading heating) may be desirable. The house is largely well presented but, as with most terraces of this era, routine maintenance to external render, paintwork and roof details should be expected.
In short, this property combines period charm, a better‑than‑average private garden and a convenient city‑centre location. It offers a move‑in ready option for those prioritising location and outdoor space, with clear potential to add value through targeted energy and cosmetic improvements.
2 bedroom terraced house for sale in Clive Road, Canton, Cardiff, CF5 — £250,000 • 2 bed • 1 bath • 635 ft²
2 bedroom terraced house for sale in Clive Road, Canton, Cardiff, CF5 — £275,000 • 2 bed • 1 bath • 895 ft²
2 bedroom terraced house for sale in Tintern Street, Canton, Cardiff, CF5 — £200,000 • 2 bed • 1 bath • 687 ft²
2 bedroom house for sale in Glamorgan Street, Canton, Cardiff, CF5 — £325,000 • 2 bed • 1 bath • 810 ft²
2 bedroom house for sale in Glamorgan Street, Cardiff, CF5 — £350,000 • 2 bed • 1 bath • 830 ft²
3 bedroom terraced house for sale in Severn Road, Canton, Cardiff, CF11 — £475,000 • 3 bed • 1 bath • 1047 ft²


















































































































































