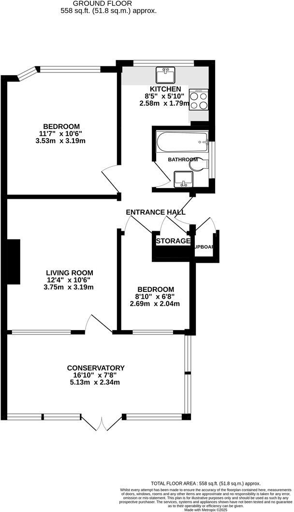
Two-bedroom ground-floor home near Whitton station and shops.
Two bedrooms with direct access to a private, enclosed rear garden
Large conservatory extends living and dining space
Modern kitchen and bathroom; double glazed windows
Gas central heating with boiler and radiators
Share of freehold with ~155 years remaining on lease
Compact overall size (~558 sq ft); limited internal space
Solid brick construction assumed to lack wall insulation
Short walk to Whitton High Street and Whitton station
A well-presented ground-floor maisonette offering two bedrooms and direct access to a private, well-enclosed rear garden. The bright living room opens into a large conservatory used as a dining area, extending usable living space and improving indoor‑outdoor flow — helpful for socialising or relaxing. The modern kitchen and bathroom, double glazing and gas central heating make the property move-in ready for a first home or downsizer.
Practical ownership benefits include a long lease (approx. 155 years) and share of freehold, plus an affordable council tax band. The property sits at the end of a quiet cul-de-sac close to Whitton High Street and the station, giving easy access to local shops, schools and frequent rail links into Twickenham, Richmond and London Waterloo.
Do note the maisonette is compact at around 558 sq ft, so space is best suited to couples, small families or buyers seeking manageable accommodation. The building is solid‑brick 1930s construction and is assumed to have no wall insulation; adding insulation could improve comfort and running costs. Overall this is a tidy, low-maintenance home with garden access and strong local commuter and community appeal.
2 bedroom maisonette for sale in Bramley Close, Whitton, TW2 — £335,000 • 2 bed • 1 bath • 519 ft²
2 bedroom maisonette for sale in Bramley Close, Twickenham, TW2 — £325,000 • 2 bed • 1 bath • 466 ft²
2 bedroom maisonette for sale in Bramley Close, Twickenham, TW2 — £325,000 • 2 bed • 1 bath • 454 ft²
2 bedroom flat for sale in Chertsey Road, Twickenham, TW2 — £430,000 • 2 bed • 1 bath • 768 ft²
2 bedroom maisonette for sale in Redfern Avenue, Whitton, Hounslow, TW4 — £350,000 • 2 bed • 1 bath • 547 ft²
2 bedroom apartment for sale in Hospital Bridge Road, Twickenham, TW2 — £390,000 • 2 bed • 1 bath • 711 ft²


















































