**Standout Features:**
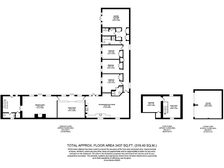
- **Generous Living Space:** Over 3,000 sq. ft. of well-designed interiors on mainly one level.
- **Family-Friendly Layout:** 5 spacious bedrooms (2 ensuites) and 3 reception rooms.
- **Modern Open-Plan Design:** Bright and contemporary kitchen/family room that connects to a beautiful garden.
- **Outdoor Sanctuary:** Large private garden set within nearly a third of an acre.
- **Quiet Rural Location:** Nestled in a picturesque countryside setting with excellent mobile signal and fast broadband.
- **Ample Parking:** Double garage and space for multiple vehicles.
**Potential Downsides:**
- **High Council Tax:** Should be taken into consideration by potential buyers.
- **Crime Rate Consideration:** The local area has a higher crime rate; buyers should assess personal comfort levels.
Perfectly suited for families, this stunning Georgian-style semi-detached home offers an escape into tranquility while still providing every modern convenience. With over 3,000 sq. ft. of space primarily laid out on one level, it boasts five generously sized bedrooms and two ensuites, making it an ideal choice for those seeking comfort and privacy. The open-plan kitchen and family room create an inviting atmosphere for gatherings, with large windows overlooking a beautifully landscaped garden—truly a country retreat.
Located in a serene rural setting, this property balances the best of nature and modern living, making it an exceptional find for the discerning buyer. Excellent local schools rated 'Good' by Ofsted make it ideal for families. With a double garage and ample parking, this home combines functionality with charm. Don't miss the chance to claim this slice of countryside paradise; viewing is highly encouraged!
5 bedroom detached house for sale in Wrotham, TN15 — £875,000 • 5 bed • 3 bath • 1915 ft²
5 bedroom detached house for sale in Cherry Orchard Cottage, Chartham, CT4 — £875,000 • 5 bed • 3 bath • 2500 ft²
3 bedroom semi-detached house for sale in Ford Lane, Wrotham Heath, Sevenoaks, TN15 — £675,000 • 3 bed • 1 bath • 1546 ft²
3 bedroom detached house for sale in London Road, West Kingsdown, Kent, TN15 — £1,500,000 • 3 bed • 3 bath • 2111 ft²
4 bedroom village house for sale in St Marys Road, Wrotham, Sevenoaks, TN15 — £1,400,000 • 4 bed • 3 bath • 2931 ft²
5 bedroom detached house for sale in Chapel Street, Ryarsh, West Malling, ME19 — £1,250,000 • 5 bed • 3 bath • 2664 ft²


























































































