Spacious plot, village amenities and direct rail links ideal for family life.
- Quiet cul-de-sac location with low local crime rate
- Ten-minute walk to Plumpton station (direct to London)
- Rear garden overlooking open fields, private and secluded
- Large double garage — possible conversion subject to permission
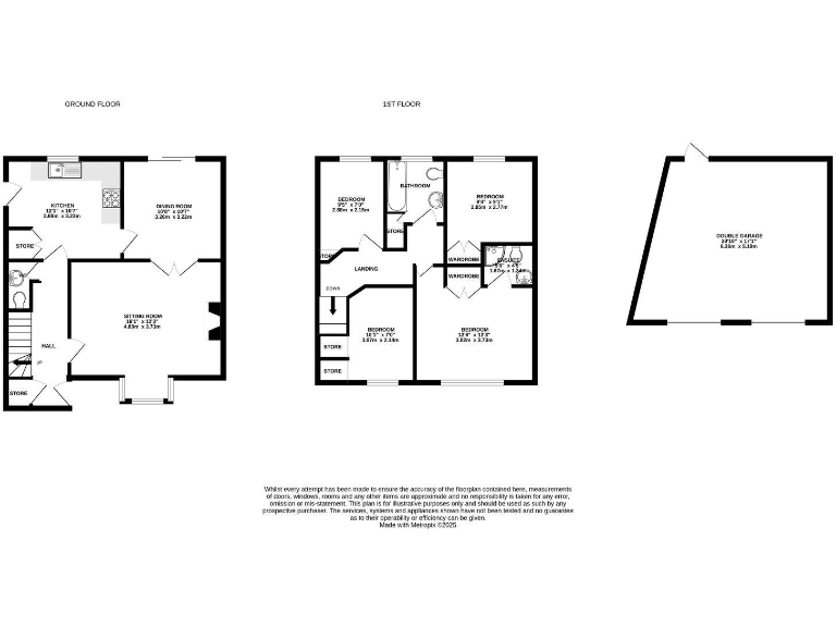
- Compact overall size: approx 849 sq ft for four bedrooms
- Oil-fired boiler and radiators; not on mains gas
- Council Tax Band F — expensive for running costs
- Broadband average; mobile signal excellent
Tucked at the end of a quiet cul-de-sac in sought-after Plumpton Green, this four-bedroom detached home is arranged for practical family living and village convenience. The sitting room with its wood-burning stove and glazed doors into the dining area creates a warm, connected ground-floor layout, while the dining room opens onto a deck and private rear garden that looks out across neighbouring fields.
Bedrooms are neatly arranged on the first floor, with the main bedroom now served by a newly installed en-suite. The property sits on a larger-than-average plot for the road, with a substantial double garage offering excellent storage — or potential to extend the living footprint subject to permissions. Off-street parking and a lawned front garden add everyday ease.
This home suits buyers who prioritise location and village life: a 10-minute walk to Plumpton station, a highly regarded primary school nearby, two local pubs and an active programme of community clubs. Practical considerations to note are the compact overall footprint (around 849 sq ft for four bedrooms), oil-fired central heating and a Band F council tax charge. Broadband speed is average, although mobile signal is excellent.
For families seeking countryside character and direct rail links to London, this property gives immediate lifestyle benefits and clear scope to add value through targeted improvements — for example, upgrading services, reworking the garage, or internal modernisation to better use the space.
4 bedroom detached house for sale in West Gate, Plumpton Green, Lewes, BN7 — £675,000 • 4 bed • 2 bath • 1055 ft²
5 bedroom detached bungalow for sale in East View Fields, Plumpton Green, Lewes, BN7 — £650,000 • 5 bed • 2 bath • 1794 ft²
4 bedroom detached bungalow for sale in East View Fields, Plumpton, BN7 3EE, BN7 — £550,000 • 4 bed • 2 bath • 1400 ft²
4 bedroom detached house for sale in Beresford Lane, Lewes, BN8 — £1,000,000 • 4 bed • 2 bath • 2781 ft²
5 bedroom detached house for sale in Station Road, Plumpton Green, BN7 — £850,000 • 5 bed • 2 bath • 2174 ft²
3 bedroom semi-detached house for sale in East View Fields, Plumpton Green, BN7 — £435,000 • 3 bed • 1 bath • 1002 ft²














































































































