**Standout Features:**
- Three-storey Georgian townhouse in South Kensington
- Bright open-plan living and kitchen area
- Three spacious double bedrooms with ensuite bathrooms
- High-quality fixtures in bathrooms
- Near cultural landmarks and good transport links
**Potential Concerns:**
- Located in an area classified with very high crime rates
- No outdoor space or garden
- Building retains typical urban layouts with limited extraordinary views
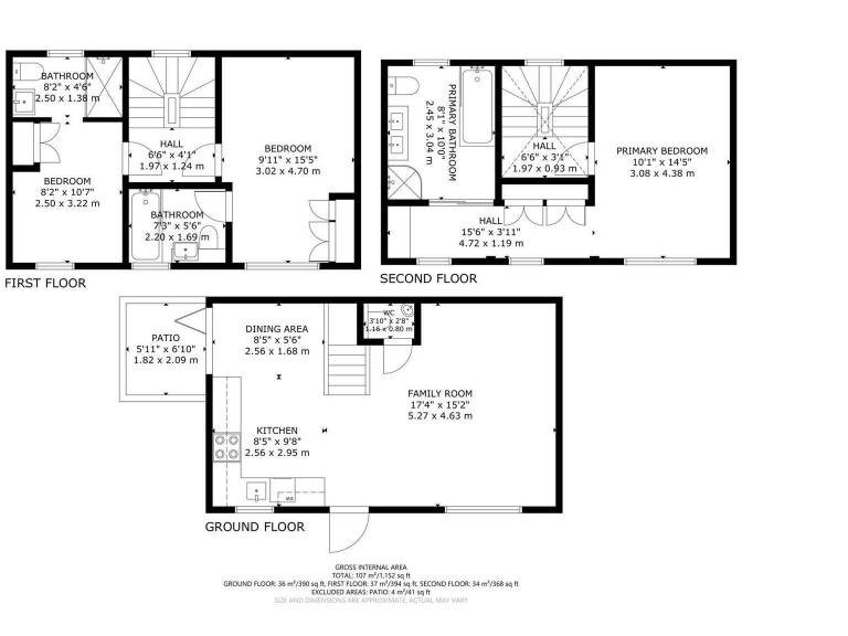
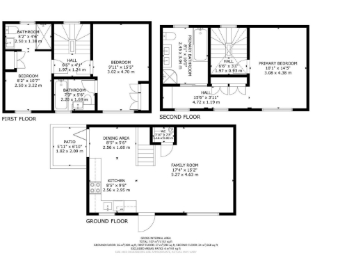
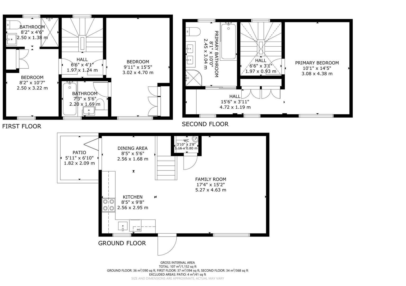
Experience urban living at its finest in this stunning freehold Georgian townhouse located in the heart of South Kensington. Spanning three well-designed floors, this delightful home offers ample natural light through its large windows and presents a contemporary open-plan living and kitchen area—perfect for both relaxation and entertaining. Each of the three generously sized double bedrooms features its own luxurious ensuite bathroom, equipped with modern showers and elegant bathtubs for a tranquil, spa-like feel.
Situated just off Old Brompton Road, residents can enjoy the vibrant atmosphere and convenience of nearby shops, cafés, and gourmet restaurants. Cultural landmarks such as the Natural History Museum and Hyde Park are just a leisurely stroll away, providing endless opportunities for exploration. Despite its prime location, it's worth noting that the area has a very high crime rate, so security considerations are paramount. With no garden space and typical urban views, this property suits families looking for a cosmopolitan lifestyle without outdoor maintenance headaches.
Don’t miss the chance to own this exceptional home in one of London’s most affluent districts—perfect for professionals, first-time buyers, or investment opportunities. Start living the South Kensington dream today!
3 bedroom house for sale in Kensington Court Place, London, W8 — £2,750,000 • 3 bed • 3 bath • 2051 ft²
3 bedroom house for sale in Edwardes Square, Kensington, London, W8, United Kingdom, W8 — £4,950,000 • 3 bed • 2 bath • 2555 ft²
2 bedroom terraced house for sale in Uxbridge Street, Kensington, London, W8 — £1,950,000 • 2 bed • 2 bath • 1234 ft²
3 bedroom terraced house for sale in Pelham Crescent, Chelsea, London, SW7 — £10,950,000 • 3 bed • 4 bath • 3561 ft²
4 bedroom terraced house for sale in Pitt Street, London, W8 — £5,500,000 • 4 bed • 4 bath • 2686 ft²
3 bedroom terraced house for sale in Clareville Street, South Kensington, SW7 — £2,000,000 • 3 bed • 3 bath • 1168 ft²






















































































































