Chain-free four-bedroom townhouse with garage, parking and a private low-maintenance garden..
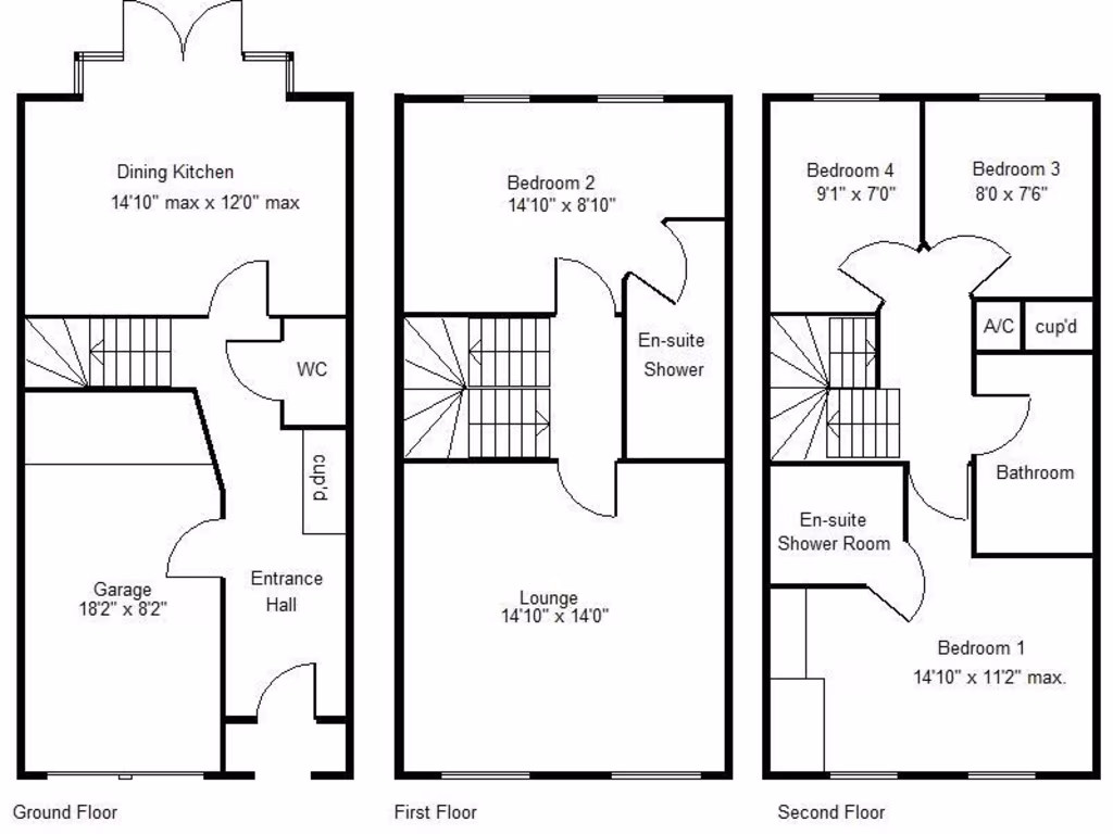
4 bedrooms, 3 bathrooms across three floors (ensuites to bedrooms 1 and 2)
Large dining kitchen with French doors to enclosed rear garden
First-floor lounge provides separate living zone
Integral garage plus two off-street parking spaces
Chain-free Freehold; built c.2003–2006, uPVC double glazing
Modest overall size (~955 sq ft) and small plot
Reported high local crime rate — consider security measures
Boiler age unconfirmed; recommend heating/service inspection
Light, practical family living over three floors: this modern four-bedroom mid-terrace offers flexible space for families needing separate living and sleeping areas. The large dining kitchen with French doors opens to an enclosed rear garden, while a generous first-floor lounge creates a quieter living zone away from the ground-floor activity. Two ensuite bedrooms and a separate family bathroom reduce morning congestion for busy households.
Built c.2003–2006 and offered chain-free on Freehold tenure, the house includes an integral garage plus two parking spaces and mains gas central heating with uPVC double glazing. Broadband is fast and the location sits within reach of local shops, a 24-hour Tesco and main road links—useful for commuting or running family errands.
Practical points to note: internal space is modest (about 955 ft²) and the plot is small, so outdoor space is low-maintenance rather than expansive. Crime levels in the immediate area are reported as high, which may affect some buyers’ sense of security. The vendor has not confirmed the boiler age; purchasers should verify the heating system and other services during the survey.
This home suits a growing family wanting clear, adaptable living zones and low-maintenance outside areas, or buyers seeking a straightforward, chain-free purchase with renovation potential to personalise fixtures, finishes and the small garden.
3 bedroom town house for sale in Wellingley Road, Balby, Doncaster, South Yorkshire, DN4 — £230,000 • 3 bed • 3 bath • 1235 ft²
3 bedroom town house for sale in Oak Court, Woodfield Plantation, Balby, Doncaster, DN4 — £185,000 • 3 bed • 3 bath • 1090 ft²
4 bedroom end of terrace house for sale in Cavalier Court, Woodfield Plantation, Doncaster, DN4 — £230,000 • 4 bed • 3 bath • 1314 ft²
3 bedroom town house for sale in Branchcroft Drive, Balby, Doncaster, South Yorkshire, DN4 — £210,000 • 3 bed • 2 bath • 994 ft²
4 bedroom detached house for sale in Aintree Drive, Woodfield Plantation, Doncaster, South Yorkshire, DN4 — £325,000 • 4 bed • 2 bath • 1405 ft²
4 bedroom detached house for sale in Atebanks Court, Doncaster, DN4 — £325,000 • 4 bed • 3 bath • 1622 ft²


















































































