- Large south-facing rear garden, private and versatile
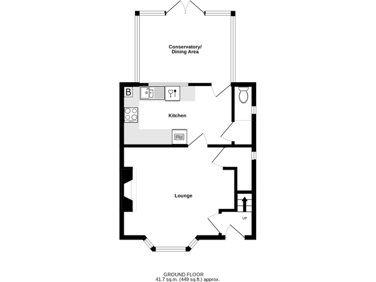
- Conservatory on strong footings; supports two-storey extension (STPP)
- Bay-fronted lounge providing good natural light
- Freehold, chain free for quicker completion
- Compact overall size: c.711 sq ft, three bedrooms
- Single bathroom only; may limit larger families
- Double glazing present; installation date unknown
- Close to shops, schools and Walmer/Deal station
This three-bedroom semi-detached house in Forelands Square offers practical family living with a large south-facing rear garden and convenient local amenities nearby. The ground floor features a bay-fronted lounge, kitchen, downstairs cloakroom and a conservatory/dining area that adds versatile living space.
The conservatory is built on strong footings designed to support a two-storey extension, giving genuine scope to extend subject to planning permission (STPP). The generous south-facing garden is a key asset — a private blank canvas ideal for childrens play, gardening or adding an outdoor entertaining area.
Upstairs are two double bedrooms, a single bedroom and a family bathroom, all within a compact overall footprint of approximately 711 sq ft. Practical benefits include mains gas central heating, filled cavity walls, double glazing (install date unknown), fast broadband and excellent mobile signal.
Offered freehold and with no onward chain, the property sits close to local shops, schools and Walmer/Deal station, making commutes and school runs straightforward. Note the home is a smaller-sized, traditional 1930s-built house with one bathroom; any extension or significant alteration would require planning consent. Council tax is low and the immediate area is described as comfortable and affluent.























































