Generous, renovated period cottage with south garden, gated parking and flexible living..
Chain-free three bedroom, three bathroom attached cottage with flexible layout
South-facing enclosed garden backing onto Beacon Hill; summer house/home office
Electrically gated driveway with parking for several cars
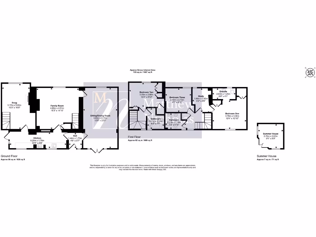
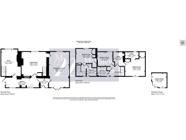
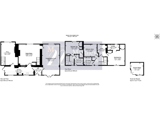
Large overall size ~1667 sq ft; ideal for multi-generational living
Retained character: exposed stone, timber, open fireplaces, discovered millstones
Mains gas boiler with radiators and two working fireplaces; PVCu double glazing
Constructed pre-1900 with sandstone/limestone walls; likely no wall insulation
Low ceiling heights in parts; may limit some modern layout choices
Set on the edge of the conservation area and backing onto Beacon Hill, this attached three-bedroom, three-bathroom cottage blends period character with practical upgrades. The layout, originally two cottages, now offers flexible living over two floors — ideal for multigenerational families or those seeking separate bedroom suites. The southerly garden, electrically gated driveway and summer house/home office add usable outdoor space and off-street parking for several cars.
The current owner has upgraded the property while retaining features such as open fireplaces, exposed stone and timber, and original millstones discovered during past works. Heating is mains gas with a boiler and radiators and there are two working fireplaces; PVCu double glazing improves comfort. The house is offered chain-free and presented in attractive order throughout, ready to move into for many buyers.
Buyers should note the cottage is of 19th-century construction with sandstone/limestone walls that are assumed uninsulated; further insulation or energy-efficiency works may be needed to reduce running costs. Ceiling heights are described as low in some rooms — typical of older cottages — which may affect some furniture layouts. Overall, the property provides generous living space (circa 1667 ft²) and a versatile plan, but anyone prioritising modern thermal performance should factor potential retrofit work into their plans.
Positioned in a very affluent, low-crime village with excellent mobile and fast broadband potential, the location benefits from good local schools and village amenities. The combination of character, flexible accommodation and a private south-facing garden gives this cottage broad family appeal, particularly for buyers wanting scope for sensitive upgrading rather than a full renovation.
4 bedroom cottage for sale in Church Way, Grendon, NN7 — £425,000 • 4 bed • 1 bath • 1274 ft²
3 bedroom cottage for sale in Olney Road, Lavendon, MK46 — £385,000 • 3 bed • 1 bath • 1039 ft²
4 bedroom cottage for sale in High Street, Wollaston, Wellingborough, NN29 — £350,000 • 4 bed • 2 bath • 1582 ft²
2 bedroom cottage for sale in Moorend Road, Yardley Gobion, NN12 7UF, NN12 — £300,000 • 2 bed • 1 bath • 753 ft²
2 bedroom end of terrace house for sale in High Street, Potterspury, NN12 — £365,000 • 2 bed • 1 bath • 721 ft²
3 bedroom cottage for sale in The Lane, Grafton Regis, Towcester, Northamptonshire, NN12 — £375,000 • 3 bed • 1 bath • 853 ft²






























































































































