Well-presented family home in a peaceful, well-connected suburb with excellent schools nearby.
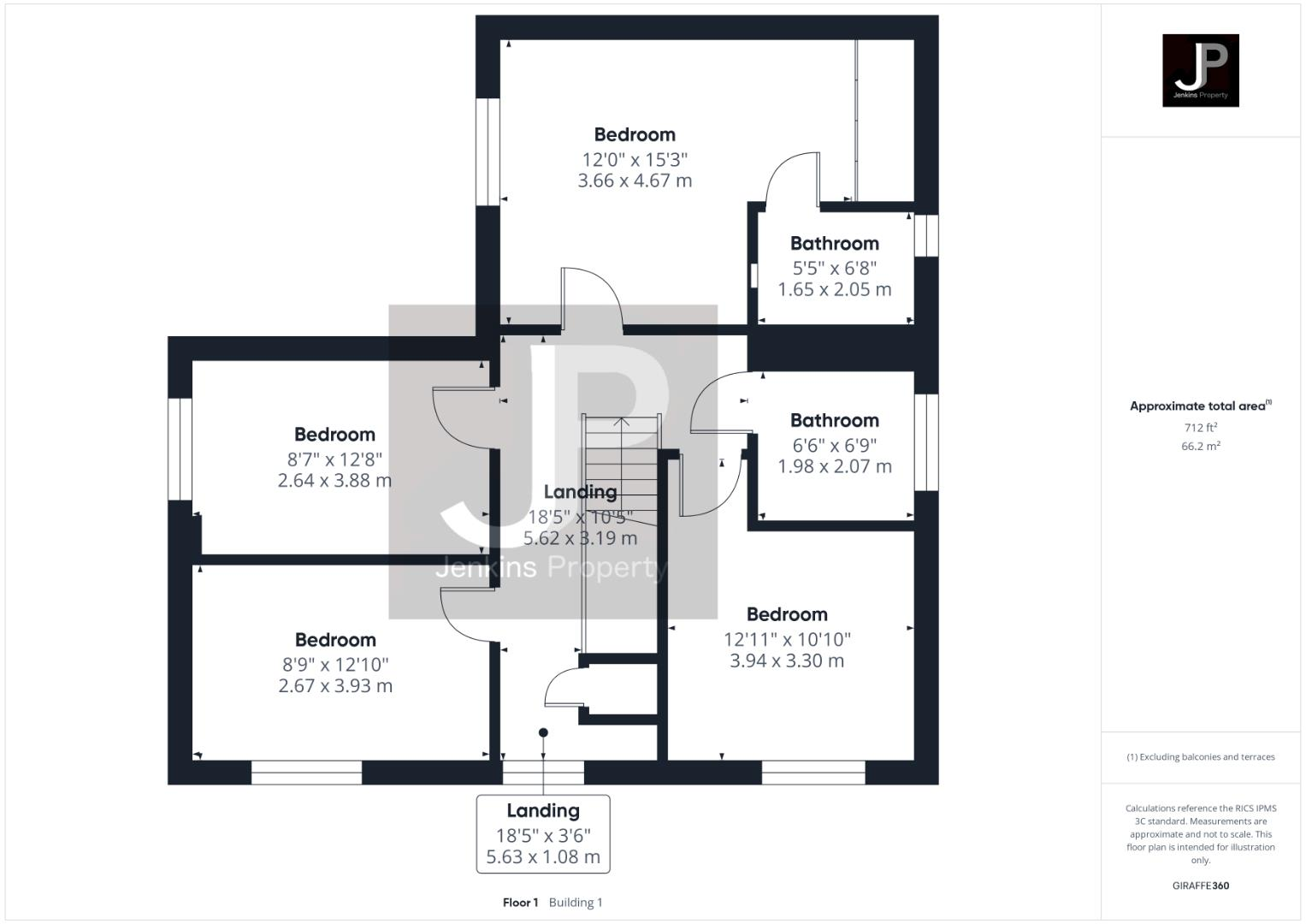
Four double bedrooms with master ensuite and walk-in wardrobe
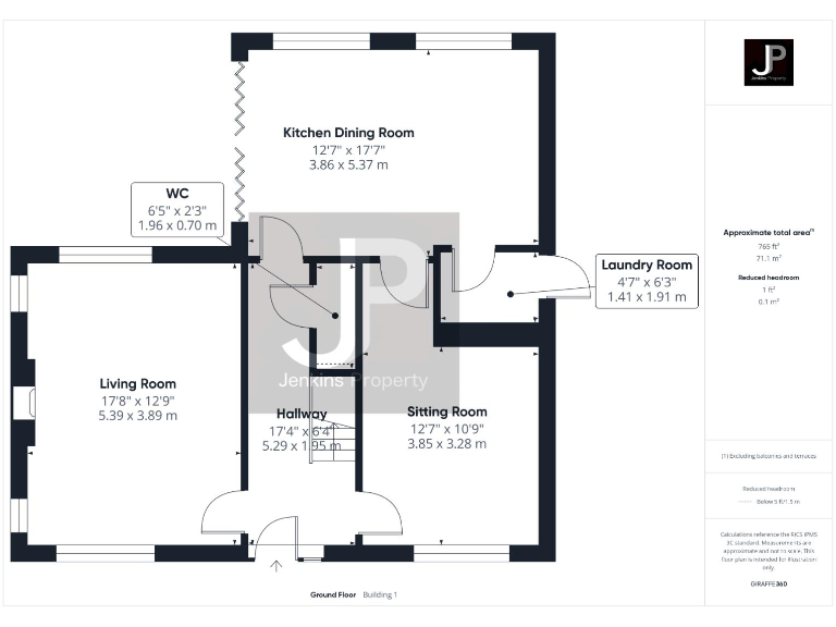
Three reception rooms plus large kitchen/dining area
Ground-source underfloor heating with Wi‑Fi thermostat
Landscaped rear garden with attached garage and driveway parking
Private development location with very low local crime
Laundry and cloakroom are compact; cloakroom very small
Freehold tenure; overall size circa 1,693 sq ft (average-sized rooms)
Traditional layout rather than a single open-plan living space
Set within a private development in Doddinghurst, this modern four-bedroom detached house offers comfortable family living with contemporary fixtures throughout. The ground-floor layout includes a generous kitchen/dining room, two separate reception areas and a practical laundry room, while the master bedroom benefits from a dressing area, walk-in wardrobe and ensuite. Ground-source underfloor heating with Wi‑Fi thermostat control is fitted throughout, giving efficient, even warmth and modern convenience.
Externally the property sits on a decent plot with a landscaped rear garden, attached garage and driveway parking. Windows are large and rooms are bright; the overall finish is very well presented and ready to move into. Broadband speeds are fast and the immediate area is very affluent with very low crime, making it suitable for families seeking a quiet village-edge location with good schools nearby.
Room sizes are generally average to spacious across the 1,693 sq ft footprint, but note the cloakroom and laundry are compact. The private-development setting limits exterior alterations and there is a traditional layout rather than an open-plan conversion throughout, which may be a consideration for buyers wanting a single, expansive living space.
This freehold home suits families wanting practical storage, multiple living rooms and low-running-cost heating; investors seeking a straightforward long-term let in a desirable suburb may also find the property attractive. Viewings will be most useful for purchasers who prioritise presented move-in condition, efficient heating and garden space over radical renovation potential.
4 bedroom detached house for sale in Outings Lane, Doddinghurst, Brentwood, CM15 — £800,000 • 4 bed • 2 bath • 1708 ft²
4 bedroom detached house for sale in Beehive Chase, Hook End, Brentwood, CM15 — £675,000 • 4 bed • 2 bath • 1860 ft²
5 bedroom detached house for sale in Doddinghurst Road, BRENTWOOD, Essex, CM15 — £900,000 • 5 bed • 2 bath • 2278 ft²
5 bedroom detached house for sale in Peartree Close, Doddinghurst, CM15 — £800,000 • 5 bed • 3 bath • 2223 ft²
4 bedroom detached house for sale in Hay Green Lane, Hook End, Brentwood, CM15 — £1,195,000 • 4 bed • 2 bath • 2320 ft²
4 bedroom detached house for sale in Marlen, Chelmsford Road, CM4 — £775,000 • 4 bed • 3 bath • 1300 ft²










































































































