**Standout Features:**
- Vacant 1-bedroom flat in Millom
- Freehold tenure
- Best suited for serious investors and developers
- Commercial area with significant investment potential
- Good condition with original Victorian features
- Located close to local amenities
**Concerns:**
- No parking available
- No garden space
- Average crime rate and area deprivation levels
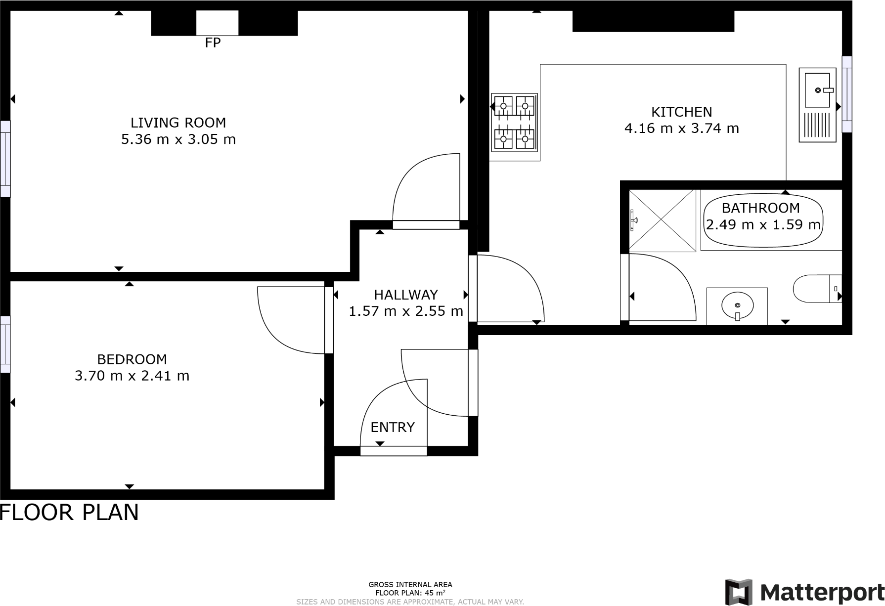
This 1-bedroom flat in Millom presents a unique investment opportunity for serious investors and developers. With 484 square feet of space, the property boasts a large kitchen, a comfortable lounge featuring a Victorian fireplace, and a bathroom—all in good condition. Although the flat lacks private parking and garden space, its appealing original features and easy access to local amenities can attract potential renters or future renovations.
Situated in a vibrant, commercial area, this flat is poised to benefit from the rising demand for housing in the town. It's an appealing option for first-time buyers looking for a property with character or those interested in capitalizing on the lucrative rental market. However, potential buyers should be aware of the average crime rates and area deprivation. Secure this flat today; opportunities like this in Millom are rare and don’t last long!
Hairdressers or barber shop for sale in Market Square, Millom, LA18 — £50,000 • 1 bed • 1 bath • 1195 ft²
Shop for sale in Market Square, Millom, LA18 — £40,000 • 1 bed • 1 bath • 827 ft²
Leisure facility for sale in Market Square, Millom, LA18 — £60,000 • 1 bed • 2 bath • 4306 ft²
1 bedroom flat for sale in Flat 1 Yarfield Hall, Millom, LA18 — £65,000 • 1 bed • 1 bath • 618 ft²
1 bedroom flat for sale in Flat 7 Yarfield Hall, Millom, LA18 — £60,000 • 1 bed • 1 bath • 468 ft²
Restaurant for sale in Market Square, Millom, LA18 — £50,000 • 1 bed • 4 bath • 2357 ft²


















































