SE22 8JF - 2 bedroom flat for sale in Lordship Lane, East Dulwich, Lon…
View on Property Piper
2 bedroom flat for sale in Lordship Lane, East Dulwich, London, SE22
Property Details
- Price: £550000
- Bedrooms: 2
- Bathrooms: 1
- Property Type: undefined
- Property SubType: undefined
Brochure Descriptions
- Bright top-floor/loft-style apartment on Lordship Lane with open-plan living and dining area. The space features two large rooflights/skylights in a sloped ceiling, recessed downlighting and hardwood flooring throughout. Layout suggests a well-proportioned reception/dining space suitable for flexible living, with built-in low storage cupboards beneath the eaves. Contemporary neutral finish, good natural light and attractive floorboards indicate a well-presented turn-key unit. Room sizes: living/dining — medium/above-average for an apartment; overall property footprint consistent with a small-to-medium sized flat rather than a house. No external views other than roofscape/skylights visible; garden or private outdoor space not shown. Overall condition appears good and likely to appeal to professionals or couples seeking a characterful, light-filled central SE22 apartment.
Image Descriptions
- attic conversion living room contemporary
- residential terrace houses Victorian
Floorplan Description
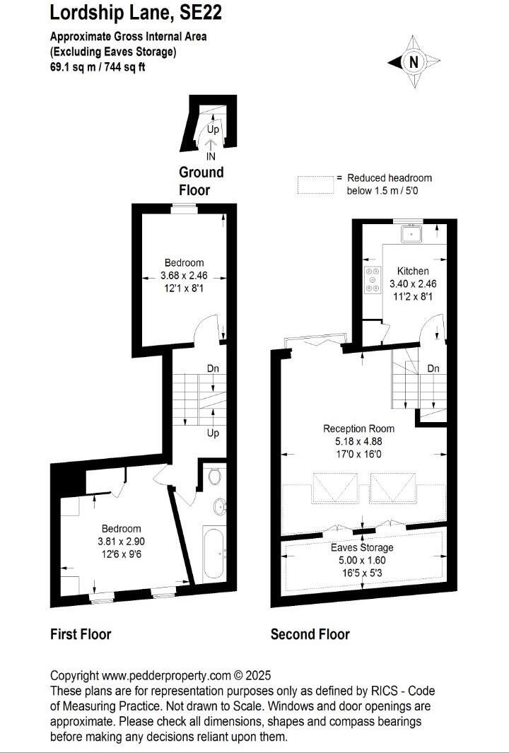
- Three-floor property with bedrooms, reception room, kitchen and eaves storage.
Rooms
- Bedroom:
- Bedroom:
- Reception Room:
- Kitchen:
- Eaves Storage:
Textual Property Features
Detected Visual Features
- attic conversion
- skylight windows
- contemporary design
- wooden flooring
- open plan
- modern lighting
- Victorian
- terraced
- brick
- bay windows
- period property
- residential
- London
- urban
EPC Details
- Fully double glazed
- Solid brick, as built, no insulation (assumed)
- Boiler and radiators, mains gas
- Low energy lighting in 54% of fixed outlets
- (another dwelling below)
Nearby Schools
- Horniman Primary School
- Dulwich Hamlet Junior School
- Harris Primary Academy East Dulwich
- St John's and St Clement's Church of England Primary School
- Dog Kennel Hill School
- The Belham Primary School
- St Mary Magdalene Church of England Primary School
- Lyndhurst Primary School
- Dulwich Village Church of England Infants' School
- Heber Primary School
- Judith Kerr Primary School
- Alleyn's School
- Harris Boys' Academy East Dulwich
- Bessemer Grange Primary School
- St James the Great Roman Catholic Primary School
- Oliver Goldsmith Primary School
- Dulwich College
- Oakfield Preparatory School
- Goodrich Community Primary School
- The Charter School East Dulwich
- Rye Oak Primary School
- The Villa
- James Allen's Girls' School
- The Charter School North Dulwich
- Goose Green Primary and Nursery School
- Bellenden Primary School
- Harris Academy Peckham
Nearest Religious buildings
- Id: 61886787
- Tags:
- Addr:
- Housenumber: 2
- Street: Shawbury Road
- Amenity: place_of_worship
- Name: Gurdwara Baba Buddha Sahib Ji
- Religion: sikh
- TagsNormalized:
- place of worship
- gurdwara
- sikh
- Lat: 51.4569685
- Lon: -0.0750376
- FullGeoHash: gcpuwr3qe6pv
- PartitionGeoHash: gcpu
- Images:
- FoodStandards: null
- Distance: 377.3
,- Id: 95232036
- Tags:
- Addr:
- Amenity: place_of_worship
- Denomination: seventh_day_adventist
- Name: Church of God (7th Day) Sabbath Keeping Temple
- Religion: christian
- TagsNormalized:
- place of worship
- adventist
- seventh day adventist
- church
- temple
- christian
- Lat: 51.456928
- Lon: -0.0766824
- FullGeoHash: gcpuwr2nm4t7
- PartitionGeoHash: gcpu
- Images:
- FoodStandards: null
- Distance: 341.9
,- Id: 27549828
- Tags:
- Amenity: place_of_worship
- Denomination: baptist
- Name: Lordship Lane Baptist Church
- Religion: christian
- TagsNormalized:
- place of worship
- baptist
- church
- christian
- Lat: 51.4522346
- Lon: -0.0765196
- FullGeoHash: gcpuwq86bzwy
- PartitionGeoHash: gcpu
- Images:
- FoodStandards: null
- Distance: 189.9
}
Nearest Medical buildings
- Id: 95223741
- Tags:
- Addr:
- Housenumber: 102
- Street: Lordship Lane
- Amenity: pharmacy
- Building: yes
- Dispensing: yes
- Healthcare: pharmacy
- Name: Sogim pharmacy
- Source: Bing;OS StreetView
- TagsNormalized:
- Lat: 51.4573546
- Lon: -0.0757978
- FullGeoHash: gcpuwr8bcf1h
- PartitionGeoHash: gcpu
- Images:
- FoodStandards: null
- Distance: 400.2
,- Id: 1096352322
- Tags:
- Addr:
- City: London
- Housenumber: 1
- Street: Townley Road
- Amenity: dentist
- Building: yes
- Healthcare: dentist
- Name: Dental Beauty
- Website: https://dentalbeautydulwich.co.uk/
- TagsNormalized:
- dentist
- health
- healthcare
- beauty
- dental
- Lat: 51.4532658
- Lon: -0.077616
- FullGeoHash: gcpuwnz2zrvm
- PartitionGeoHash: gcpu
- Images:
- FoodStandards: null
- Distance: 71.8
,- Id: 99473883
- Tags:
- Amenity: doctors
- Building: yes
- Name: Townley Road Health Clinic
- Source: Bing;OS StreetView
- TagsNormalized:
- doctor
- doctors
- clinic
- health
- Lat: 51.4536605
- Lon: -0.077979
- FullGeoHash: gcpuwnz5qcw8
- PartitionGeoHash: gcpu
- Images:
- FoodStandards: null
- Distance: 54.1
,- Id: 283598474
- Tags:
- TagsNormalized:
- Lat: 51.4535827
- Lon: -0.0778028
- FullGeoHash: gcpuwnz6g540
- PartitionGeoHash: gcpu
- Images:
- FoodStandards: null
- Distance: 48.8
}
Nearest Airports
- Id: 260720166
- Tags:
- Aerodrome: international
- Aeroway: aerodrome
- Alt_name: Gatwick Airport
- Ele: 62
- Iata: LGW
- Icao: EGKK
- Internet_access: wlan
- Internet_access:fee: no
- Internet_access:ssid: Gatwick FREE Wi-Fi
- Name: London Gatwick Airport
- Operator: Gatwick Airport Limited
- Ref: LGW
- Website: https://www.gatwickairport.com/
- Wikidata: Q8703
- Wikipedia: en:Gatwick Airport
- TagsNormalized:
- airport
- international airport
- Lat: 51.1540917
- Lon: -0.1883773
- FullGeoHash: gcpg58qf4mzd
- PartitionGeoHash: gcpg
- Images:
- FoodStandards: null
- Distance: 34217.5
,- Id: 121158889
- Tags:
- Aerodrome: continental
- Aeroway: aerodrome
- Fhrs:
- Authority: City of London Corporation
- Iata: LCY
- Icao: EGLC
- Name: London City Airport
- Operator: London City Airport Limited
- Ref: LCY
- Website: https://www.londoncityairport.com/
- Wikidata: Q8982
- Wikipedia: en:London City Airport
- TagsNormalized:
- airport
- continental airport
- Lat: 51.5042658
- Lon: 0.0539987
- FullGeoHash: u10j10p64702
- PartitionGeoHash: u10j
- Images:
- FoodStandards: null
- Distance: 10679.2
,- Id: 14001268
- Tags:
- Access: yes
- Aerodrome: international
- Aerodrome:type: public
- Aeroway: aerodrome
- Alt_name: London Heathrow
- Alt_name_2: London Heathrow Airport
- Ele: 25
- Iata: LHR
- Icao: EGLL
- Int_name: Heathrow Airport
- Name: London Heathrow Airport
- Note: area still approx
- Old_name: London Airport
- Operator: Heathrow Airport Limited
- Rank_aci:
- Ref: LHR
- Short_name: Heathrow
- Type: multipolygon
- Website: https://www.heathrow.com/
- Wikidata: Q8691
- Wikipedia: en:Heathrow Airport
- TagsNormalized:
- airport
- international airport
- Lat: 51.4677522
- Lon: -0.4547736
- FullGeoHash: gcpsv9kv7h2h
- PartitionGeoHash: gcps
- Images:
- FoodStandards: null
- Distance: 26198.3
}
Nearest Leisure Facilities
- Id: 284333833
- Tags:
- Leisure: pitch
- Lit: no
- Sport: soccer
- Surface: grass
- TagsNormalized:
- Lat: 51.4553772
- Lon: -0.0797886
- FullGeoHash: gcpuwpjvkc92
- PartitionGeoHash: gcpu
- Images:
- FoodStandards: null
- Distance: 241.1
,- Id: 190894444
- Tags:
- Capacity: 3
- Leisure: pitch
- Sport: tennis
- Surface: paved
- TagsNormalized:
- Lat: 51.4540036
- Lon: -0.0799402
- FullGeoHash: gcpuwnvv332r
- PartitionGeoHash: gcpu
- Images:
- FoodStandards: null
- Distance: 185
,- Id: 360775731
- Tags:
- Leisure: pitch
- Lit: no
- Sport: cricket_nets
- Surface: artificial_turf
- TagsNormalized:
- pitch
- leisure
- cricket
- cricket nets
- sports
- Lat: 51.4551226
- Lon: -0.079025
- FullGeoHash: gcpuwpn7yd4d
- PartitionGeoHash: gcpu
- Images:
- FoodStandards: null
- Distance: 184
,- Id: 284333832
- Tags:
- Leisure: pitch
- Lit: no
- Sport: soccer
- Surface: grass
- TagsNormalized:
- Lat: 51.4546213
- Lon: -0.0795871
- FullGeoHash: gcpuwpn0ckxe
- PartitionGeoHash: gcpu
- Images:
- FoodStandards: null
- Distance: 180.2
,- Id: 360732288
- Tags:
- Leisure: pitch
- Lit: no
- Sport: soccer
- Surface: grass
- TagsNormalized:
- Lat: 51.4540637
- Lon: -0.0786769
- FullGeoHash: gcpuwnytwswm
- PartitionGeoHash: gcpu
- Images:
- FoodStandards: null
- Distance: 99.1
}
Nearest Tourist attractions
- Id: 71378224
- Tags:
- Addr:
- Housenumber: 44
- Street: East Dulwich Road
- Building: yes
- Name: Thames Gallery
- Source: Bing;OS StreetView
- Tourism: gallery
- TagsNormalized:
- Lat: 51.4619778
- Lon: -0.0699516
- FullGeoHash: gcpuy2m5dpbr
- PartitionGeoHash: gcpu
- Images:
- FoodStandards: null
- Distance: 1034.1
,- Id: 433225933
- Tags:
- Description: Tarmac area with benches.
- Tourism: picnic_site
- TagsNormalized:
- Lat: 51.4621519
- Lon: -0.0815863
- FullGeoHash: gcpuy0ksfbkv
- PartitionGeoHash: gcpu
- Images:
- FoodStandards: null
- Distance: 967.4
,- Id: 62222849
- Tags:
- Addr:
- Housenumber: 45
- Street: Melbourne Grove
- Building: house
- Name: The House of Dreams
- Source: Bing;OS StreetView
- Tourism: gallery
- Website: http://stephenwrightartist.com/index.php
- Wikidata: Q21062368
- Wikipedia: en:House of Dreams (museum)
- TagsNormalized:
- Lat: 51.459918
- Lon: -0.0793057
- FullGeoHash: gcpuwpyr8pcr
- PartitionGeoHash: gcpu
- Images:
- FoodStandards: null
- Distance: 686.4
}
Nearest Hotels
- Id: 151485586
- Tags:
- Addr:
- Housenumber: 2
- Postcode: SE15 2PT
- Street: Queen's Road
- Building: yes
- Name: Marbella Hotel
- Source: Bing;survey
- Tourism: hotel
- Wikidata: Q26665560
- TagsNormalized:
- Lat: 51.4737206
- Lon: -0.0636912
- FullGeoHash: gcpuyd985uur
- PartitionGeoHash: gcpu
- Images:
- FoodStandards: null
- Distance: 2399
,- Id: 274258849
- Tags:
- Addr:
- City: London
- Country: GB
- Housenumber: 51
- Postcode: SE5 8TR
- Street: Camberwell Church Street
- Building: yes
- Name: Oyo New Dome Hotel
- Tourism: hotel
- TagsNormalized:
- Lat: 51.4739441
- Lon: -0.0890971
- FullGeoHash: gcpuvfx17ysk
- PartitionGeoHash: gcpu
- Images:
- FoodStandards: null
- Distance: 2376.9
,- Id: 74910194
- Tags:
- Addr:
- City: London
- Housenumber: 110
- Street: Peckham Road
- Brand: Best Western
- Building: hotel
- Internet_access: wlan
- Internet_access:fee: no
- Name: Best Western London Peckham Hotel
- Source: Bing;OS StreetView
- Stars: 3
- Tourism: hotel
- TagsNormalized:
- Lat: 51.4738926
- Lon: -0.0754604
- FullGeoHash: gcpuy6911th9
- PartitionGeoHash: gcpu
- Images:
- FoodStandards: null
- Distance: 2229.3
}
Tags
- attic conversion
- skylight windows
- contemporary design
- wooden flooring
- open plan
- modern lighting
- Victorian
- terraced
- brick
- bay windows
- period property
- residential
- London
- urban
Local Market Stats
- Average Price/sqft: £769
- Avg Income: £70000
- Rental Yield: 4%
- Social Housing: 18%
- Planning Success Rate: 91%
AirBnB Data
- 1km average: £138/night
- Listings in 1km: 13
Similar Properties
2 bedroom apartment for sale in Lordship Lane, East Dulwich, London, SE22 — £550,000 • 2 bed • 1 bath • 965 ft²
2 bedroom flat for sale in Landcroft Road, East Dulwich, London, SE22 — £480,000 • 2 bed • 1 bath • 756 ft²
3 bedroom flat for sale in Glengarry Road, East Dulwich, SE22 — £800,000 • 3 bed • 2 bath • 995 ft²
2 bedroom flat for sale in East Dulwich Grove, East Dulwich, SE22 — £495,000 • 2 bed • 1 bath • 586 ft²
2 bedroom apartment for sale in Beauval Road, East Dulwich, London, SE22 — £850,000 • 2 bed • 1 bath • 963 ft²
1 bedroom flat for sale in Lordship Lane, East Dulwich, SE22 — £360,000 • 1 bed • 1 bath • 517 ft²
Meta
- {
"@context": "https://schema.org",
"@type": "Residence",
"name": "2 bedroom flat for sale in Lordship Lane, East Dulwich, Lon…",
"description": "",
"url": "https://propertypiper.co.uk/property/f90b817b-3e7a-4ff3-a730-452eb4687bf6",
"image": "https://image-a.propertypiper.co.uk/dfe7e958-20ae-4d31-b3e3-359245bdfc89-1024.jpeg",
"address": {
"@type": "PostalAddress",
"streetAddress": "Flat B, 235 Lordship Lane",
"postalCode": "SE22 8JF",
"addressLocality": "Southwark",
"addressRegion": "Dulwich and West Norwood",
"addressCountry": "England"
},
"geo": {
"@type": "GeoCoordinates",
"latitude": 51.45387598731315,
"longitude": -0.07727845693071123
},
"numberOfRooms": 2,
"numberOfBathroomsTotal": 1,
"floorSize": {
"@type": "QuantitativeValue",
"value": 740,
"unitCode": "FTK"
},
"offers": {
"@type": "Offer",
"price": 550000,
"priceCurrency": "GBP",
"availability": "https://schema.org/InStock"
},
"additionalProperty": [
{
"@type": "PropertyValue",
"name": "Feature",
"value": "attic conversion"
},
{
"@type": "PropertyValue",
"name": "Feature",
"value": "skylight windows"
},
{
"@type": "PropertyValue",
"name": "Feature",
"value": "contemporary design"
},
{
"@type": "PropertyValue",
"name": "Feature",
"value": "wooden flooring"
},
{
"@type": "PropertyValue",
"name": "Feature",
"value": "open plan"
},
{
"@type": "PropertyValue",
"name": "Feature",
"value": "modern lighting"
},
{
"@type": "PropertyValue",
"name": "Feature",
"value": "Victorian"
},
{
"@type": "PropertyValue",
"name": "Feature",
"value": "terraced"
},
{
"@type": "PropertyValue",
"name": "Feature",
"value": "brick"
},
{
"@type": "PropertyValue",
"name": "Feature",
"value": "bay windows"
},
{
"@type": "PropertyValue",
"name": "Feature",
"value": "period property"
},
{
"@type": "PropertyValue",
"name": "Feature",
"value": "residential"
},
{
"@type": "PropertyValue",
"name": "Feature",
"value": "London"
},
{
"@type": "PropertyValue",
"name": "Feature",
"value": "urban"
}
]
}
High Res Floorplan Images
Compatible Floorplan Images
FloorplanImages Thumbnail