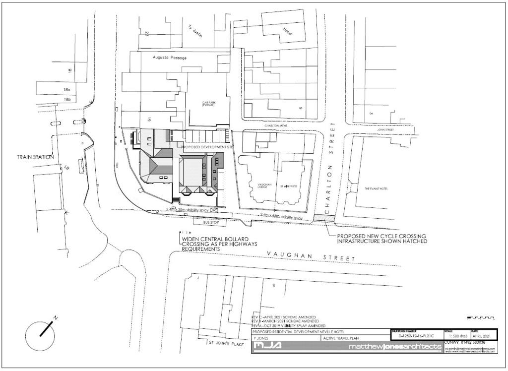
Station-front site with parking and granted consent for a residential scheme.
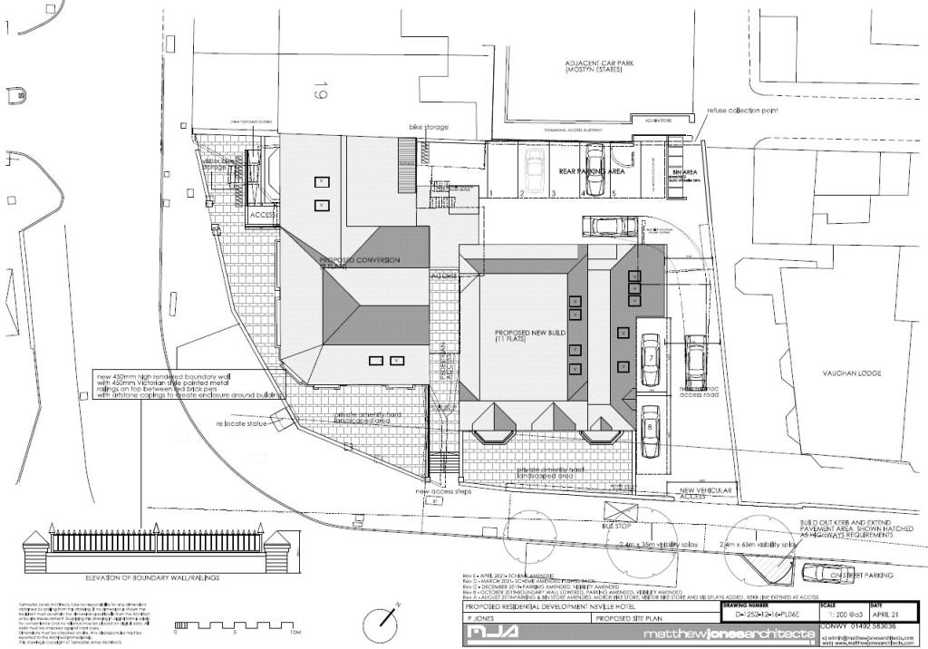
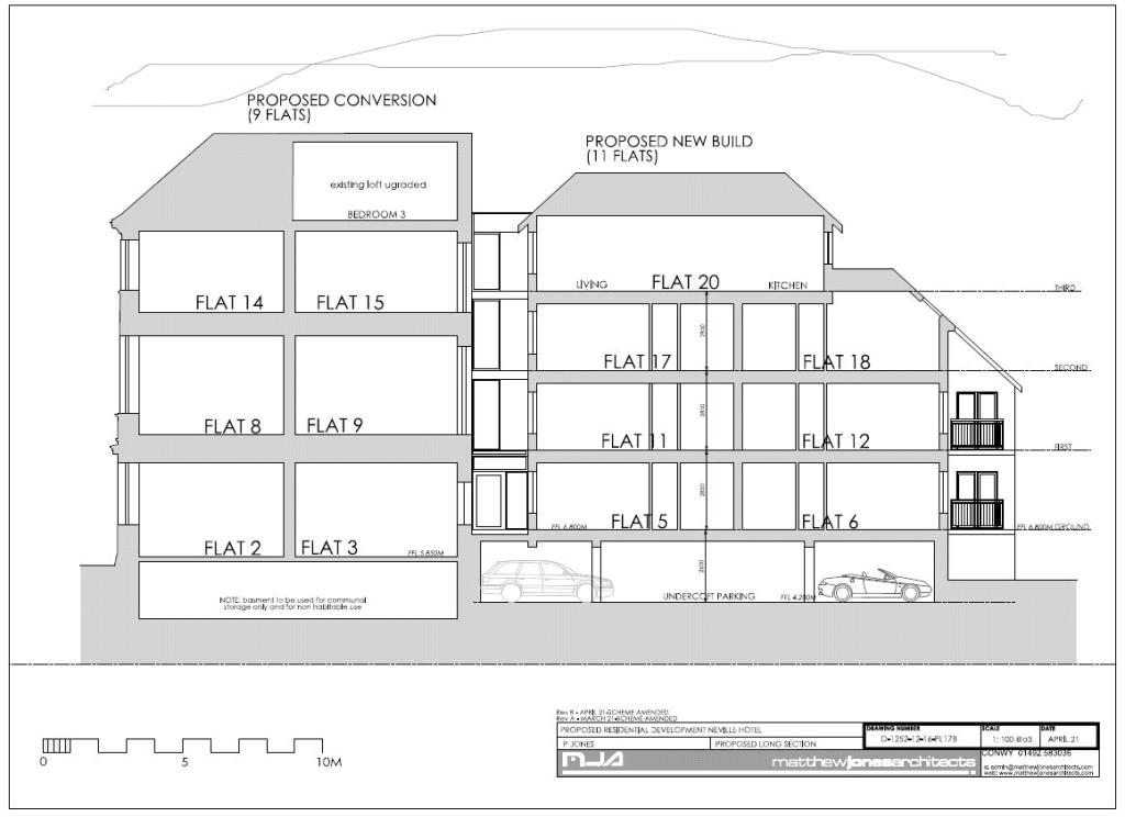
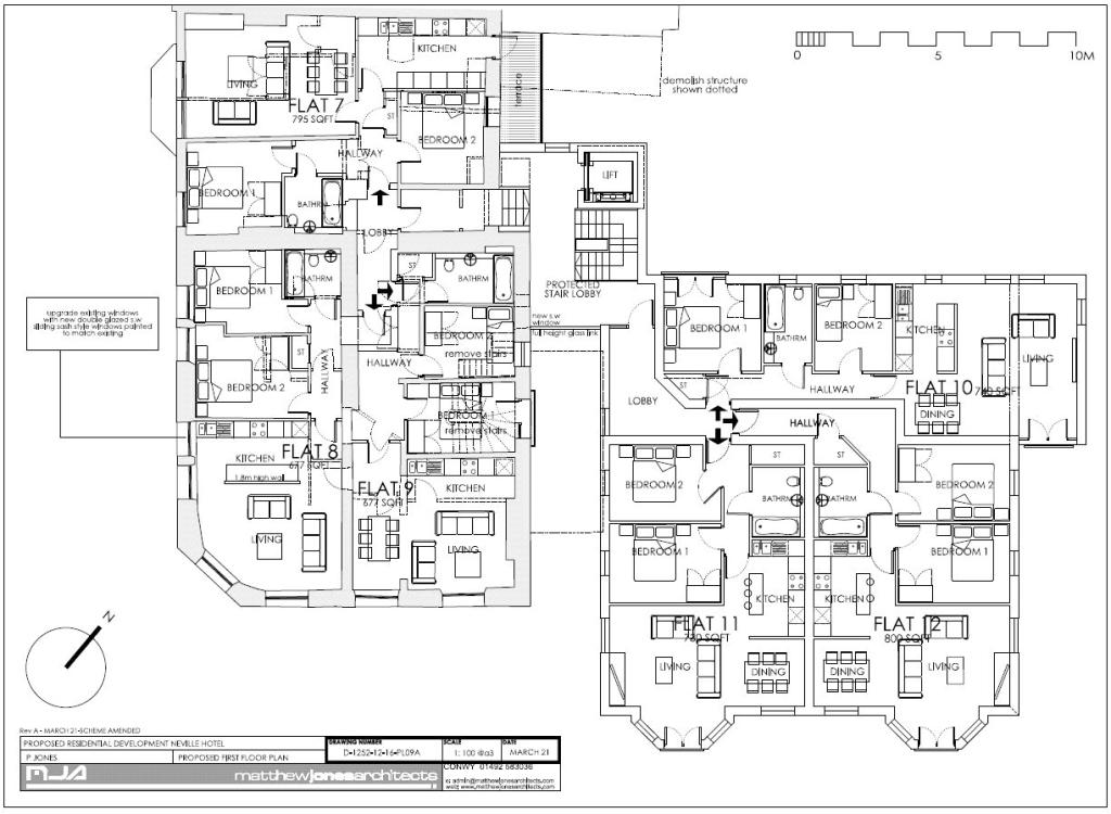
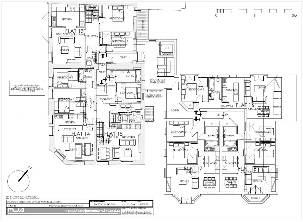
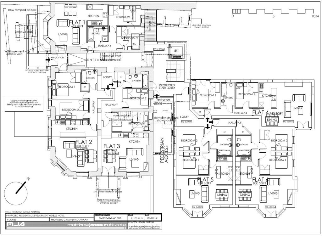
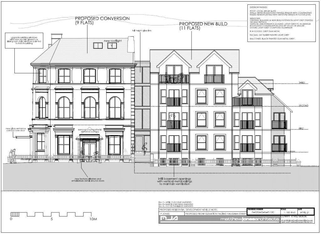
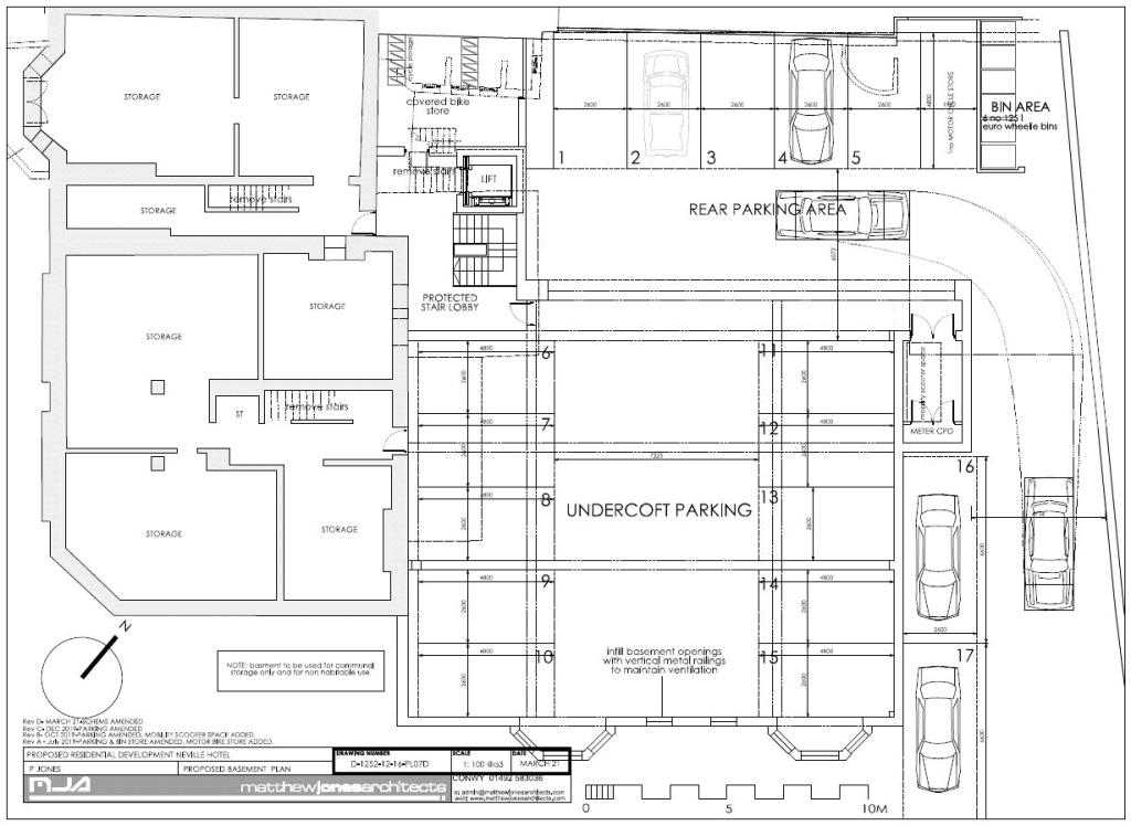
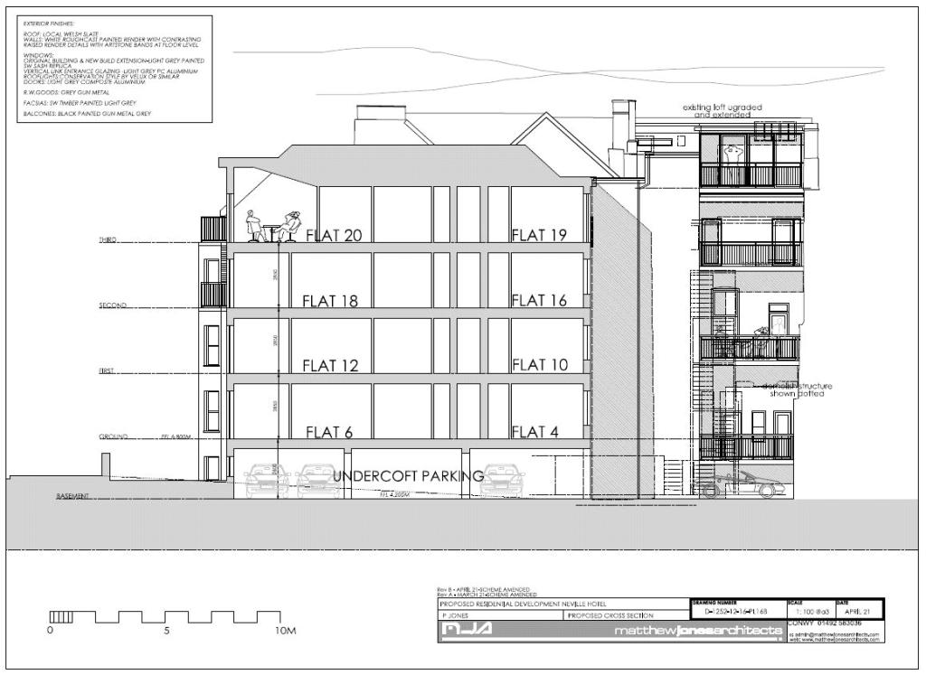
Planning permission granted for 20 apartments (App No. 0/45869)
A landmark Victorian corner building in central Llandudno with planning permission to create 20 apartments and private parking. The Nevill already benefits from its prominent position opposite the train station, easy walking distance to the seafront promenade and town centre amenities, and a spacious adjacent plot providing ample off-street parking.
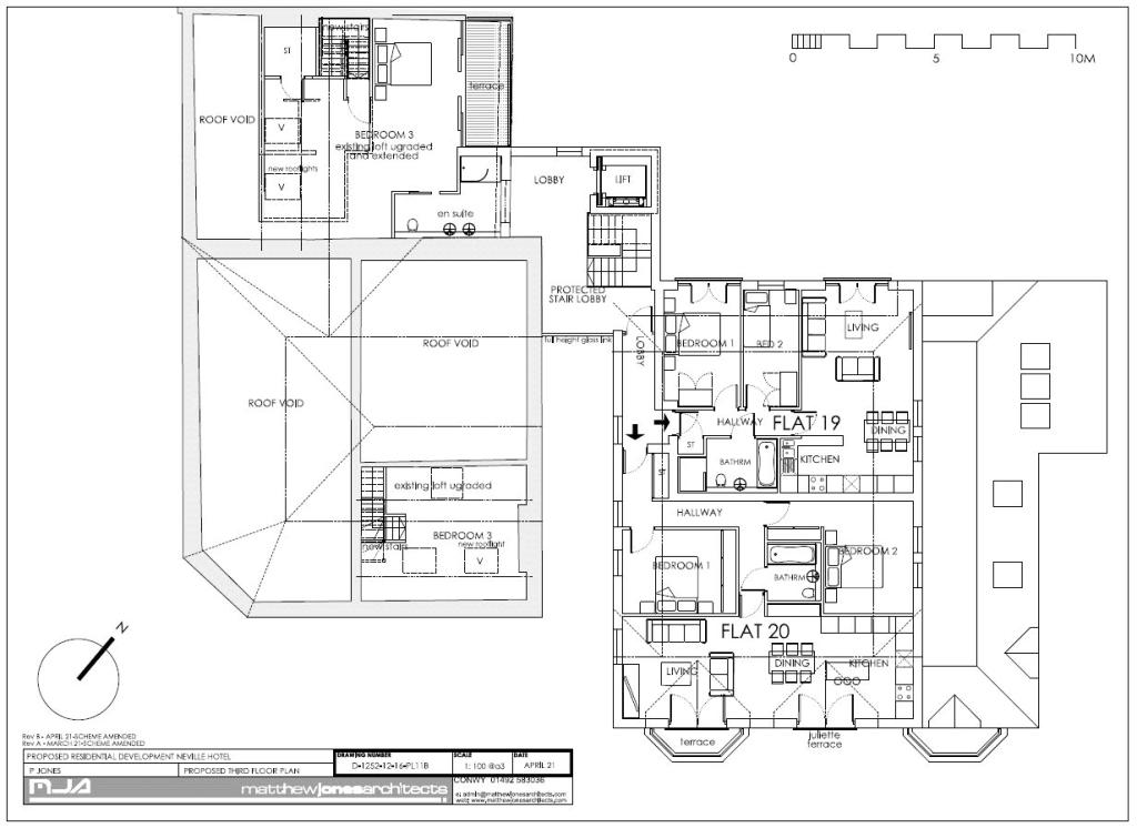
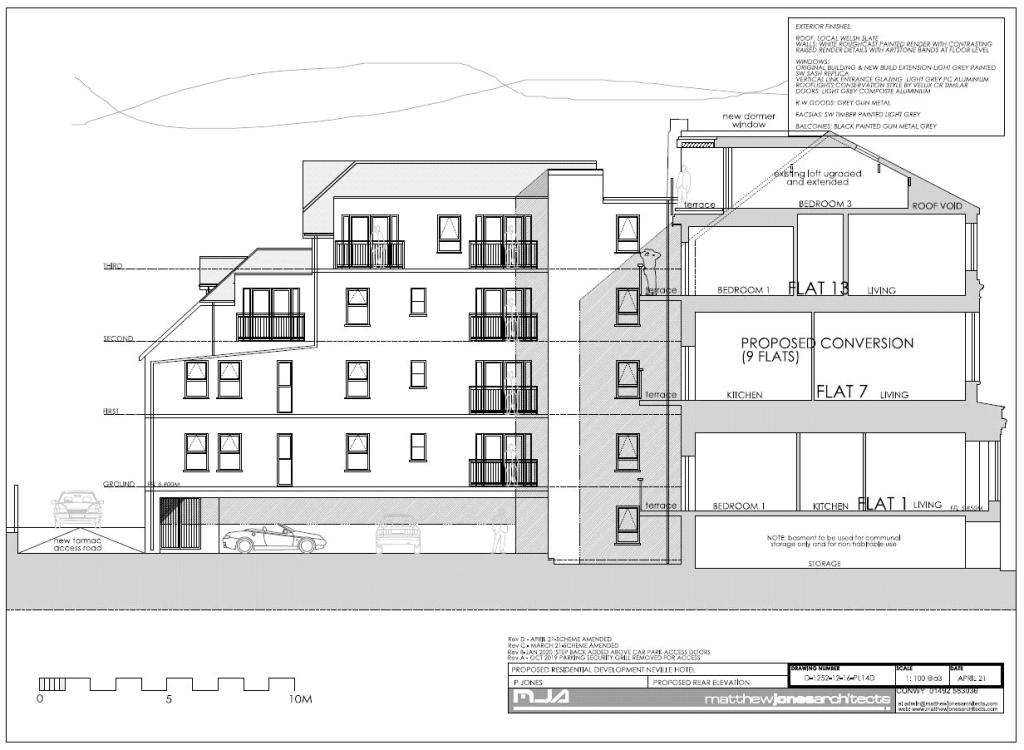
The existing three-storey public house includes twin bars, a games room, commercial kitchen, cellar, attic rooms and three upper-floor apartments that will need renovation. Characterful features — high ceilings, large arched windows and ornate cornices — provide strong appeal for residential conversion and help maximise natural light and apartment layouts.
Planning permission (Application No. 0/45869) is granted for conversion and an additional building to form 20 apartments, offering a clear development route. However, the property is leasehold and the upper accommodation requires refurbishment; conversion and fit-out costs will be material. The site sits in an area classified as very deprived with a very high crime rate, factors that will affect rental demand, management needs and valuation assumptions.
This is a planning-led development opportunity for investors or developers seeking seaside apartments with station-front access and existing parking. The scheme’s success will depend on careful cost planning, security and management strategies, and sensitivity to local market conditions.
Land for sale in Vaughan Street, Llandudno, Conwy, LL30 — £1,500,000 • 1 bed • 1 bath • 5780 ft²
Pub for sale in Vaughan Street, Llandudno, Conwy (County of), LL30 — £1,250,000 • 11 bed • 1 bath • 5780 ft²
Commercial property for sale in Augusta Street, Llandudno, Conwy, LL30 — £360,000 • 1 bed • 1 bath • 2747 ft²
Shop for sale in Lloyd Street, Llandudno, Conwy, LL30 — £290,000 • 1 bed • 1 bath • 3753 ft²
Mixed use property for sale in Clifton Road, Llandudno, Conwy, LL30 — £175,000 • 1 bed • 1 bath • 2328 ft²
8 bedroom end of terrace house for sale in Mostyn Avenue, Craig Y Don, LL30 — £495,000 • 8 bed • 3 bath • 3418 ft²










































































































