**Standout Features:**
- Prime retail units occupied by national retailers BETFRED and PEACOCKS
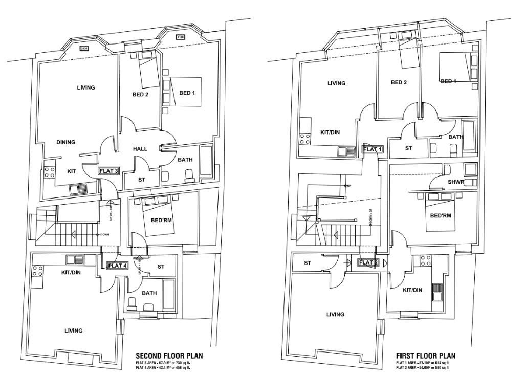
- Planning permission granted for 4 residential apartments (2 one-bedroom and 2 two-bedroom)
- Current income of £75,770 per annum with potential for capital value appreciation
- Total space: 12,770 sq. ft. with a Victorian façade
- Excellent visibility and foot traffic in a bustling city-center location
- Garage parking included
**Summary:**
Located in the heart of Pontefract at 15-17 Beastfair, this sizable commercial investment features two well-established retail units generating an annual income of £75,770, a solid return for potential investors. The property also presents a remarkable redevelopment opportunity, as planning permission is granted for four residential apartments atop the commercial spaces, enhancing its appeal in a community poised for growth.
Spanning an impressive 12,770 square feet, this Victorian-style building sits close to national retailers such as B&M, M&S, and Boots, ensuring high foot traffic and visibility. While the surrounding area has a high crime rate and shows signs of economic challenges, the property benefits from excellent mobile connectivity and good rail links to nearby cities including Leeds and Doncaster, making it attractive to a diverse array of tenants. Additionally, with the upper floors vacant and ready for conversion, there is considerable potential for increasing rental income or developing desirable living spaces that cater to local demand.
Don't miss this exclusive investment opportunity—properties like this, with dual commercial and residential potential, are scarce and highly sought after.
Commercial property for sale in Carlton Street, Castleford, WF10 — £179,950 • 1 bed • 1 bath • 651 ft²
High street retail property for sale in Pontefract Road, Featherstone, Pontefract, West Yorkshire, WF7 — £125,000 • 1 bed • 1 bath • 1093 ft²
High street retail property for sale in 55 Carlton Street, Castleford, West Yorkshire, WF10 — £295,000 • 1 bed • 1 bath • 3624 ft²
Shop for sale in 17 Barnsley Road, South Elmsall, Pontefract, WF9 — £155,000 • 1 bed • 1 bath • 1676 ft²
Office for sale in The Springs, Wakefield, West Yorkshire, WF1 — £175,000 • 1 bed • 1 bath • 1471 ft²
Commercial property for sale in Printing Office Street, Doncaster, DN1 1TJ, DN1 — £725,000 • 1 bed • 1 bath • 5241 ft²














































