Five acres, stables and careful refurbishment ideal for rural family living.
Grade II listed cottage with strong period features
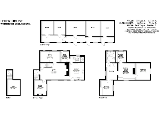
Leper House is a sympathetically refurbished, Grade II listed country cottage set within approximately five acres of paddocks, lawns and mature trees. The house retains strong period character — exposed timbers, flagstone and oak floors, and two inglenook fireplaces — while recent works include high-quality kitchen and bathroom fittings and replacement timber-framed double glazing.
The grounds are a principal asset: extensive fenced paddocks, a rebuilt stable range (circa 2019) with electric lighting, and generous off-street parking and courtyard space. The plot provides genuine equestrian potential, privacy and open rural views, yet is within easy reach of Codsall village, local schools and rail links to Birmingham.
Practical points to note: the property is Grade II listed, which restricts alterations and may complicate future expansion. Heating is oil-fired and drainage is via a septic tank. Broadband speeds are reported as very slow despite excellent mobile signal. Council tax sits in an upper band and will be a significant ongoing cost.
Overall, this is a character-rich home for buyers seeking spacious grounds, equestrian facilities and period detail. It will suit families or equestrian owners who value rural privacy and are comfortable with the responsibilities of a listed property and its site services.
4 bedroom cottage for sale in Off Christchurch Lane, Lichfield, WS13 — £1,250,000 • 4 bed • 2 bath • 3507 ft²
5 bedroom farm house for sale in High House Farm, Dodds Lane, Chorley, WS13 — £995,000 • 5 bed • 2 bath • 2000 ft²
4 bedroom detached house for sale in Summer Leys, Strawmoor Lane, Oaken, Wolverhampton, WV8 2HY, WV8 — £899,950 • 4 bed • 2 bath • 2437 ft²
4 bedroom detached house for sale in Orchard View, Paradise Lane, Slade Heath, Wolverhampton, WV10 7NZ, WV10 — £875,000 • 4 bed • 3 bath • 2735 ft²
6 bedroom detached house for sale in The Cottage, Bennetts Lane, Pattingham, Wolverhampton, WV6 7EY, WV6 — £1,650,000 • 6 bed • 6 bath • 4982 ft²
4 bedroom cottage for sale in Greystoke Cottage, Kiddemore Green, Brewood, ST19 — £590,000 • 4 bed • 3 bath • 1998 ft²


















































































