Spacious two-bedroom home with south garden, attic room and updated kitchen.
Victorian end-terrace with period features and modern fixtures throughout
Deceptively spacious: flexible layout could provide a small third room
South-facing, low-maintenance rear garden ideal for summer use
Modern kitchen with quartz worktops and integrated appliances
Two bathrooms plus utility room; practical family accommodation
Leasehold tenure — buyers must verify lease terms and charges
Stone walls likely uninsulated; building fabric age c.1900–1929
Located in a very deprived area with higher local crime statistics
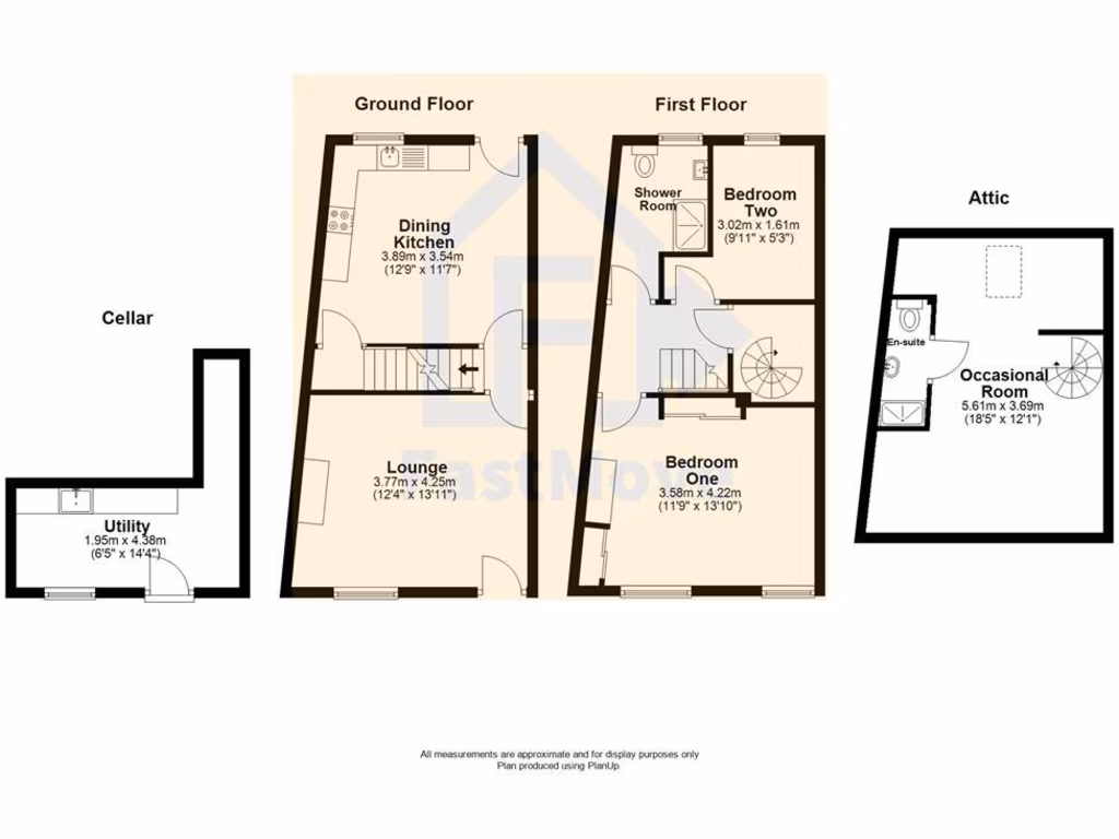
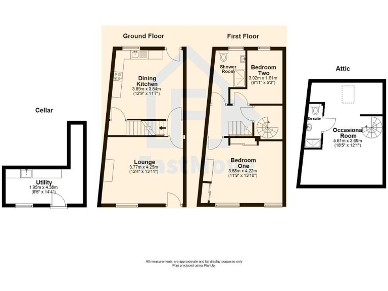
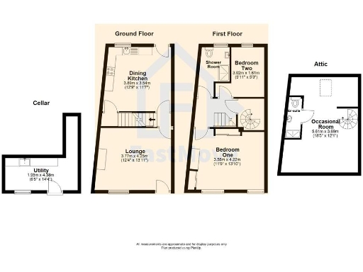
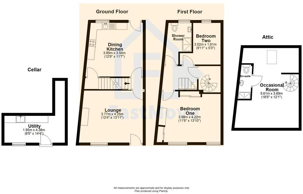
An attractive Victorian end-terrace offering deceptively spacious living across multiple levels, well suited to families seeking character with modern conveniences. The property blends period features — sash windows, stone brickwork and an ornate fireplace — with an updated kitchen, bathrooms and practical utility room. The occasional third room, reached via a further staircase, provides flexible space for a teenager, guest room or home office.
Practical strengths include a south-facing, low-maintenance rear garden, double glazing, mains gas central heating and integrated kitchen appliances. The layout provides a generous main bedroom with fitted wardrobes and a large reception room with engineered oak flooring, making day-to-day living comfortable. A virtual tour is available to appreciate room proportions and finishes.
Notable considerations: the property is leasehold, constructed c.1900–1929 with assumed uninsulated stone walls, and sits in an area with higher crime and very deprived indices locally. Buyers should verify lease details, service arrangements and any past renovations. The occasional room is smaller and reached by a secondary staircase, so it may not suit all buyers as a full third bedroom.
Overall this home offers a rare mix of period character and recent updates, providing immediate move-in comfort with sensible scope for personalisation. It will particularly suit families seeking good local schools and quick motorway access, while buyers sensitive to tenure or area indices should investigate further before committing.
2 bedroom semi-detached house for sale in Moor Hill Road, Salendine Nook, Huddersfield, West Yorkshire, HD3 — £199,950 • 2 bed • 1 bath • 463 ft²
2 bedroom terraced house for sale in Greenhill Bank Road, New Mill, HD9 — £130,000 • 2 bed • 1 bath • 510 ft²
4 bedroom detached house for sale in Victoria Close, Liversedge, West Yorkshire, WF15 — £475,000 • 4 bed • 2 bath • 1565 ft²
3 bedroom semi-detached house for sale in Coule Royd, Huddersfield, West Yorkshire, HD5 — £150,000 • 3 bed • 1 bath • 743 ft²
4 bedroom detached house for sale in Blenheim Chase, Scissett, HD8 — £399,950 • 4 bed • 3 bath • 778 ft²
3 bedroom terraced house for sale in Barcroft Road, Huddersfield, West Yorkshire, HD4 — £159,950 • 3 bed • 2 bath • 600 ft²










































































