**Standout Features:**
- Prime commercial unit in historic Devon Square, Newton Abbot
- Grade II listed with architectural charm
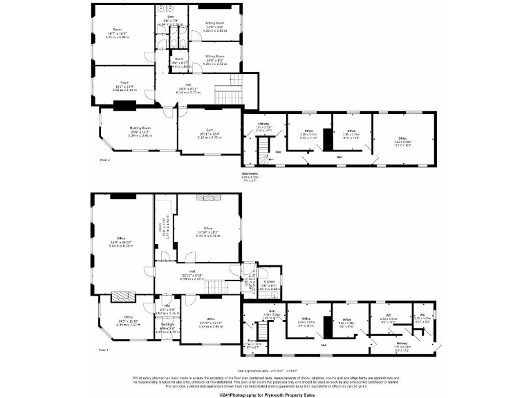
- 3380 square feet of versatile space currently serving as office units
- Planning consent for the addition of three residential units, including a detached cottage
- Off-road parking available
- Close proximity to local amenities and high foot traffic area
**Potential Concerns:**
- Listed status may complicate renovations or alterations
- Located in a high crime area
Nestled in the vibrant heart of Newton Abbot, this Grade II listed commercial unit presents a unique investment opportunity steeped in historic elegance. Spanning 3380 square feet, the property boasts a versatile layout that is currently divided into office spaces, but with planning consent to expand into three additional dwellings, including a charming detached cottage. This creates immense potential for rental income or owner occupancy, ideal for those seeking both historical allure and modern functionality.
The building's striking Georgian facade and period features add to its kerb appeal, while off-road parking enhances its convenience. Positioned in a bustling area with amenities just steps away, this property enjoys excellent visibility and accessibility, crucial for attracting clientele. However, it's important to note its listed status may pose challenges for extensive renovations. With a guide price of £650,000, this remarkable property is not expected to remain on the market long, making it a must-see for savvy investors looking to capitalize on a piece of Newton Abbot's heritage with promising future potential. Don’t miss the chance to secure your stake in this dynamic community hub!
5 bedroom property for sale in Queen Street, Newton Abbot, TQ12 — £399,950 • 5 bed • 4 bath • 3355 ft²
Commercial property for sale in Newton Abbot, TQ12 — £315,000 • 1 bed • 1 bath • 1830 ft²
Residential development for sale in Totnes, TQ9 — £235,000 • 1 bed • 1 bath • 1023 ft²
Mixed use property for sale in 60 Queen Street Newton Abbot, Devon, TQ12 2EW, TQ12 — £195,000 • 1 bed • 1 bath • 1114 ft²
Cafe for sale in A Unique Opportunity to Acquire a Landmark Property in the Heart of a Thriving Market Town, 58 Queen Street, Devon, TQ12 — £210,000 • 1 bed • 1 bath
2 bedroom mixed use property for sale in Fore Street, Kingsbridge, TQ7 — £260,000 • 2 bed • 1 bath • 1451 ft²






















































































