Low-maintenance garden, private parking and conservatory close to schools and shops.
Three bedrooms with a good-sized master and two further bedrooms
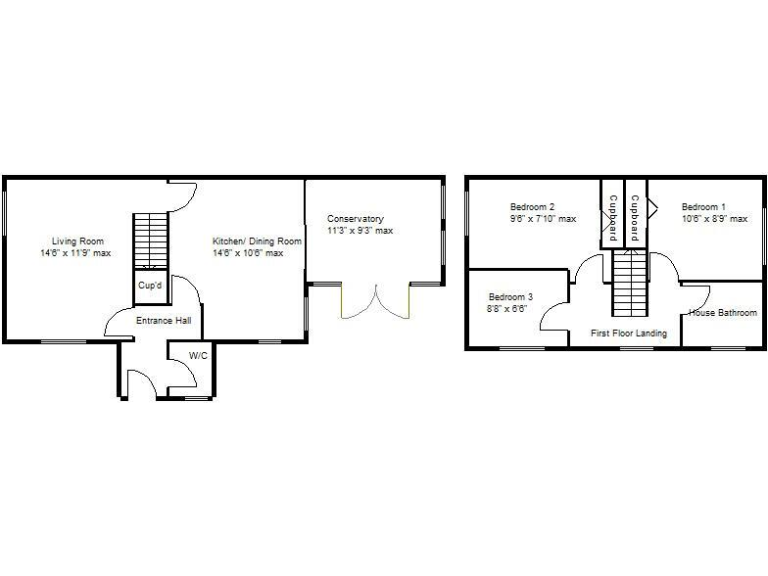
This modern three-bedroom semi-detached house on Far Field Close offers a compact, low-maintenance home ideal for a first-time buyer or small family. The ground floor includes a square lounge, open-plan dining kitchen with integrated hob and space for laundry appliances, and a large conservatory that brings extra living space and direct access to the courtyard-style rear garden. Outside there is a long driveway and a detached brick garage, providing useful private parking in addition to the small front garden.
Practical features include gas central heating, PVC double glazing and mains services. The rear garden is hard-landscaped with composite decking and paving, designed for easy upkeep and entertaining rather than extensive gardening. Local amenities are within easy reach: supermarkets, shops, and several well-rated primary and secondary schools; motorway links and fast broadband make commuting and remote working straightforward.
Buyers should note the property’s modest footprint (approximately 656 sq ft) and single family bathroom, which limit space for larger households. The conservatory has a pitched polycarbonate roof (not full-glazed), and the age of the boiler and double-glazing units is not specified. Measurements are approximate and the property will suit those seeking a practical, move-in-ready home rather than a large long-term family house.
Overall this is a well-presented, contemporary suburban home with good parking and low-maintenance outdoor space. It represents sensible value for buyers prioritising convenience, low upkeep and proximity to local services, but those needing more interior space or multiple bathrooms should consider the size constraints before viewing.
3 bedroom semi-detached house for sale in Fountains Close, Kirk Sandall, Doncaster, DN3 — £220,000 • 3 bed • 2 bath • 770 ft²
3 bedroom semi-detached house for sale in Far Field Close, Edenthorpe, DONCASTER, DN3 — £230,000 • 3 bed • 2 bath • 817 ft²
3 bedroom semi-detached house for sale in Ancient Drive, Woodlands, Doncaster, DN6 — £210,000 • 3 bed • 2 bath • 785 ft²
3 bedroom detached house for sale in Thorpe Hall Road, Kirk Sandall, DONCASTER, DN3 — £225,000 • 3 bed • 1 bath • 732 ft²
4 bedroom detached house for sale in Westminster Drive, Dunsville, Doncaster, DN7 — £290,000 • 4 bed • 2 bath • 679 ft²
3 bedroom end of terrace house for sale in Malvern Road, Doncaster, DN2 — £160,000 • 3 bed • 2 bath • 1214 ft²






































































