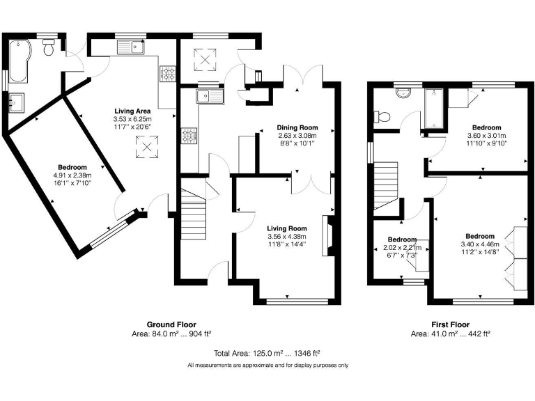
**Standout Features:**
- Four-bedroom semi-detached home in a quiet Bengeo cul-de-sac.
- Self-contained annex with kitchen, bathroom, and private access.
- Spacious living and dining rooms, plus a utility room.
- Generous rear garden backing onto woodland for added privacy.
- Driveway offering off-street parking.
- Close to local green spaces, including Sacombe Park.
**Property Summary:**
Discover the ideal family retreat in this spacious four-bedroom semi-detached home nestled in a tranquil cul-de-sac in desirable Bengeo. This property showcases a self-contained annex perfect for multi-generational living or a home office, featuring its own kitchen, bathroom, and living area. The main house boasts bright living and dining rooms, a modern family bathroom with a walk-in shower, and three upstairs bedrooms, including two generous double rooms.
The expansive rear garden, wider than average, offers a serene woodland view, creating a private oasis for gatherings or quiet afternoons in nature. Enjoy the convenience of a driveway for off-street parking and easy access to nearby parks and schools, including the esteemed Bengeo Primary School. With attractive living spaces and opportunities for future customization, this home is a rare find in a sought-after location. Don’t miss the chance to make it your own!
4 bedroom semi-detached house for sale in The Avenue, Bengeo, SG14 — £700,000 • 4 bed • 2 bath • 1195 ft²
4 bedroom semi-detached house for sale in The Wick, Hertford, SG14 — £685,000 • 4 bed • 2 bath • 1448 ft²
3 bedroom semi-detached house for sale in Glebe Road, Bengeo, SG14 — £575,000 • 3 bed • 1 bath • 1200 ft²
4 bedroom detached house for sale in The Avenue, Bengeo, SG14 — £900,000 • 4 bed • 2 bath • 1513 ft²
4 bedroom end of terrace house for sale in Bartletts Mead, Hertford, SG14 — £575,000 • 4 bed • 2 bath • 903 ft²
3 bedroom terraced house for sale in Lys Hill Gardens, Bengeo, SG14 — £550,000 • 3 bed • 1 bath • 1090 ft²










































































































































