**Standout Features:**
- Prime location in the heart of Bishop’s Stortford
- Close proximity to shops, amenities, and mainline railway station
- Comfortable split-level layout with two bedrooms and an ensuite
- Bright and spacious sitting/dining room
- Tandem garage for convenient parking
- Leasehold property with 114 years remaining
**Concerns:**
- Service charge of approximately £1296 per annum
- Ground rent of £250 per annum
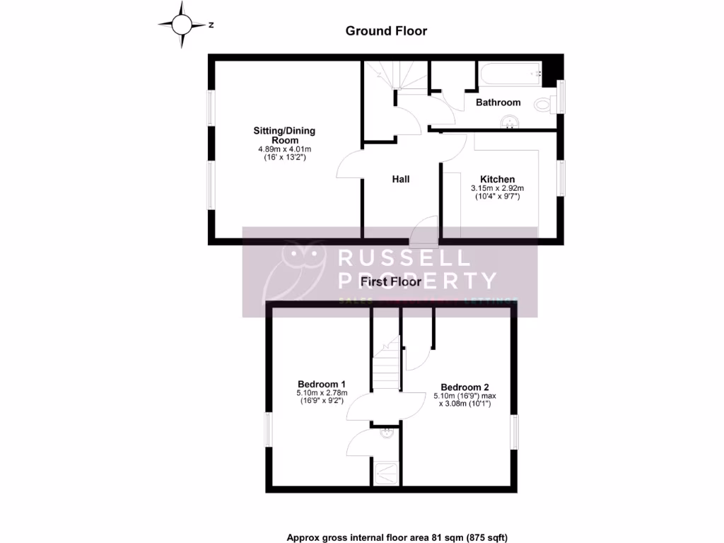
This well-appointed two-bedroom split-level maisonette offers a prime opportunity for buyers seeking both comfort and convenience in the heart of Bishop’s Stortford. Spanning approximately 875 square feet, the bright and airy layout features a generous sitting/dining room, a modern kitchen, a full bathroom, and an ensuite shower room in the principal bedroom. The property is situated within walking distance of shops, restaurants, and the mainline station, making it ideal for commuters and families alike.
While enjoying the benefits of a tandem garage, the maisonette also provides security and a sense of community in a bustling city setting. Potential buyers should note the annual service charge and ground rent; however, with nearly 114 years remaining on the lease, this property offers long-term stability. All in all, this maisonette blends modern living with future possibilities; don’t miss your chance to make it your own!
3 bedroom maisonette for sale in Regency Way, Riverside, Bishop's Stortford, Hertfordshire, CM23 — £260,000 • 3 bed • 1 bath • 762 ft²
2 bedroom maisonette for sale in Bryan Road, Bishop's Stortford, Hertfordshire, CM23 — £240,000 • 2 bed • 1 bath • 831 ft²
2 bedroom maisonette for sale in Kingfisher Way, Bishop's Stortford, Hertfordshire, CM23 — £225,000 • 2 bed • 1 bath • 626 ft²
2 bedroom maisonette for sale in Dimsdale Crescent, Bishop's Stortford, Hertfordshire, CM23 — £240,000 • 2 bed • 1 bath • 811 ft²
2 bedroom apartment for sale in Hadham Road, Bishop's Stortford, Hertfordshire, CM23 — £260,000 • 2 bed • 2 bath • 625 ft²
2 bedroom retirement property for sale in Oak Street, Bishop's Stortford, Hertfordshire, CM23 — £140,000 • 2 bed • 1 bath • 600 ft²


















































