Compact commuter-friendly home with parking and leisure facilities.
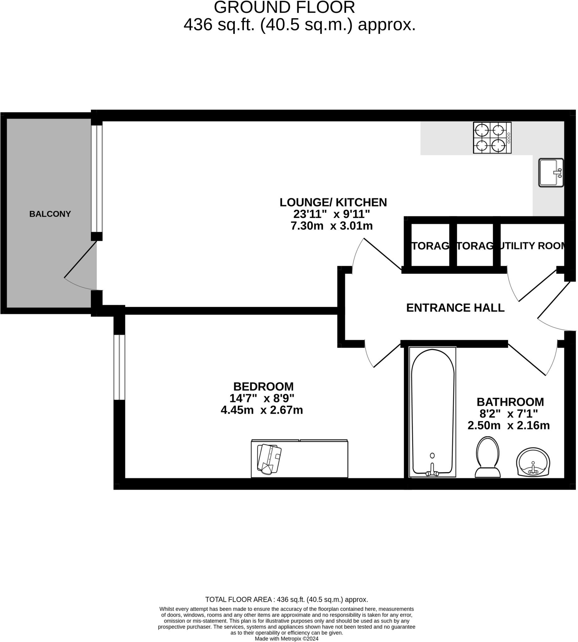
Upper-floor one-bed apartment, approximately 436 sq ft
A compact one-bedroom apartment on an upper floor, this modern flat offers efficient open-plan living with a private east-facing balcony and off-street parking. Fitted in 2007–2011 style, the home includes energy-saving LED lighting, a smart meter and thermostat, and a high-spec fitted kitchen with well-known appliance brands. Residents have access to onsite leisure facilities — gym, pool and health club — plus easy walking access to Hayes & Harlington Station and local shops.
The property suits a first-time buyer or commuter seeking low-maintenance modern living and good transport links to Central London via the nearby station and motorways. The apartment is small (approximately 436 sq ft) and arranged as two main rooms; it will feel compact but practical for single occupancy or a couple. The building uses a community heating scheme supplied by mains gas.
Practical considerations: this is a leasehold flat with a ground rent of £175 (small) and a long lease term stated. The surrounding area is classified as deprived with average crime levels and mixed local socioeconomic indicators. Broadband and mobile signal are strong, and nearby schools have Good Ofsted ratings.
Overall, the flat offers strong connectivity, onsite amenities and modern fixtures for buyers prioritising convenience and low upkeep. Buyers wanting more living space or a central neighbourhood character may find the size and local area profile limiting.
1 bedroom apartment for sale in Cardinal Building, Station Approach, Hayes, UB3 — £235,000 • 1 bed • 1 bath • 394 ft²
1 bedroom flat for sale in Station Approach, Hayes, UB3 — £220,000 • 1 bed • 1 bath • 485 ft²
1 bedroom apartment for sale in Clayton Road, Hayes, UB3 — £270,000 • 1 bed • 1 bath • 478 ft²
1 bedroom apartment for sale in Thurbin House, Hayes End Road, Hayes End, UB4 — £285,000 • 1 bed • 1 bath • 537 ft²
1 bedroom apartment for sale in Hayes Village, Nestles Avenue, Hayes, UB3 — £350,000 • 1 bed • 1 bath • 550 ft²
1 bedroom apartment for sale in Navigation Building, Station Approach, Hayes, UB3 4FF, UB3 — £235,000 • 1 bed • 1 bath • 560 ft²














































