Character-filled Victorian terrace — tenanted investment or renovation family home in Clarendon Park..
- Bay-fronted Victorian terrace with period cornices and high ceilings
- Currently let with Article 4 compliance until June 2026 (tenanted)
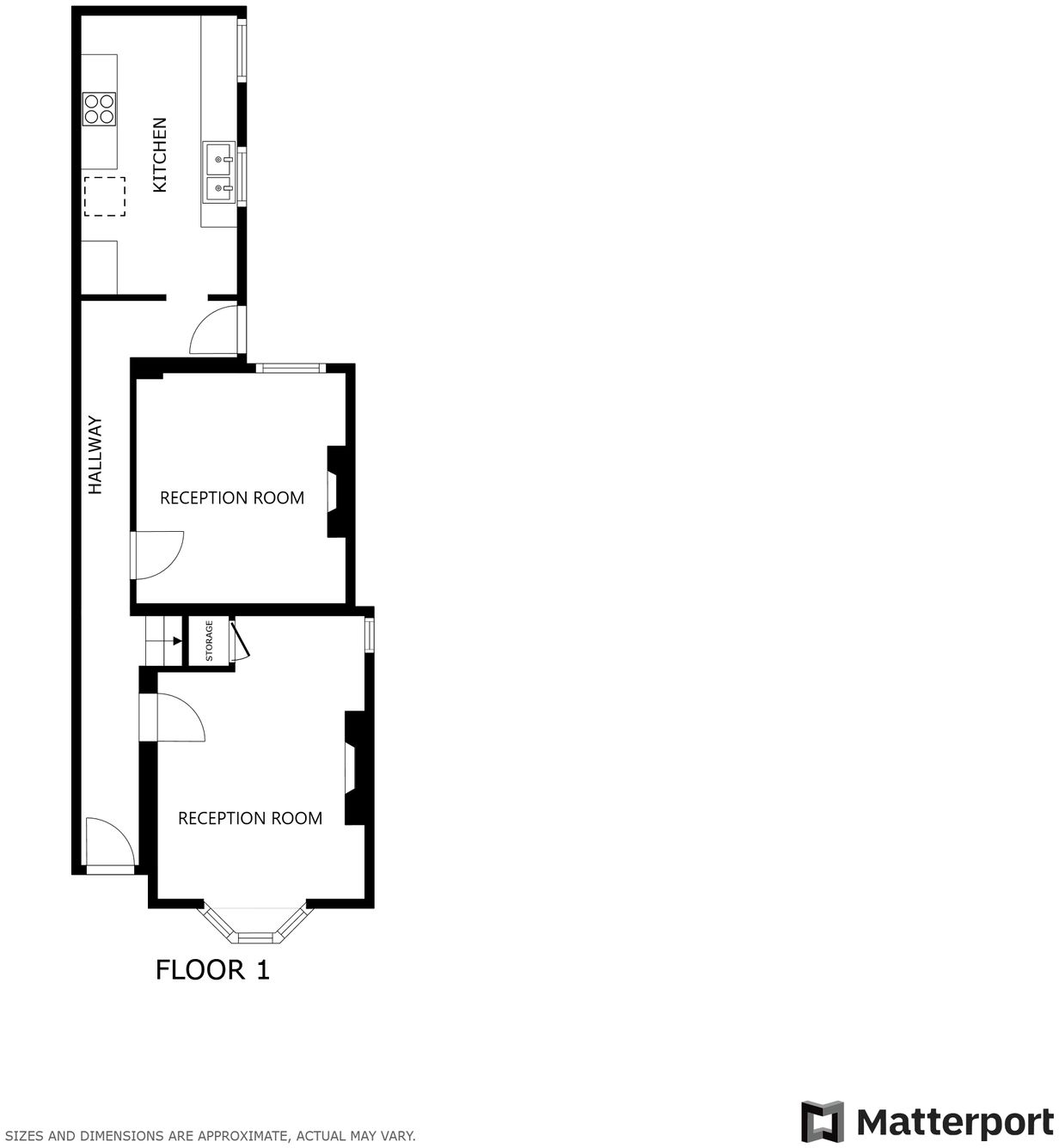
- Three double bedrooms plus two reception rooms (one used as fourth bedroom)
- Mains gas central heating and double glazing (post-2002)
- Rear courtyard garden; small plot, no off-street parking
- EPC rating D; solid walls likely uninsulated, energy upgrades needed
- Some areas dated and showing mould risk; requires modernisation
- Freehold in Clarendon Park, close to university, hospitals and shops
A bay-fronted Victorian terrace with high ceilings, original cornices and large rooms, this freehold house suits investors or buyers seeking period character. The property currently generates rental income and is let under Article 4 compliance until June 2026, providing immediate cashflow but restricting vacant possession and certain change-of-use options until that date.
Internally there are two reception rooms (one currently used as a fourth bedroom), a kitchen/breakfast room, first-floor galleried landing, three double bedrooms and a single bathroom. The house benefits from mains gas central heating, double glazing (installed post-2002) and a compact rear courtyard garden — practical for city living but modest in size.
Notable negatives are clear and should be considered: the EPC is a D, the property retains solid brick walls likely without insulation, and some rooms show dated fittings and areas at risk of damp/mould that will need modernisation. On-street permit parking only; no off-street parking. These points mean there is scope and cost for energy upgrades and internal refurbishment to improve comfort and value.
For investors the current let and central Clarendon Park location (close to University, hospitals, Victoria Park and local shops) make this straightforward to re-let to students or professionals. For owner-occupiers the house offers attractive period detail and generous room proportions but requires renovation work and energy improvements to create a comfortable long-term family home.
4 bedroom terraced house for sale in Hartopp Road, Clarendon Park, Leicester, LE2 — £300,000 • 4 bed • 1 bath • 1152 ft²
2 bedroom terraced house for sale in Clarendon Park Road, Clarendon Park, Leicester, LE2 — £245,000 • 2 bed • 1 bath • 786 ft²
3 bedroom terraced house for sale in College Avenue, Off London Road, Leicester, LE2 — £245,000 • 3 bed • 1 bath • 1055 ft²
3 bedroom end of terrace house for sale in Lorne Road, Clarendon Park, Leicester, LE2 — £270,000 • 3 bed • 1 bath • 947 ft²
3 bedroom terraced house for sale in College Avenue, Off London Road, Leicester, LE2 — £250,000 • 3 bed • 1 bath • 1098 ft²
3 bedroom end of terrace house for sale in Lytton Road, Leicester, LE2 — £250,000 • 3 bed • 1 bath • 861 ft²


















































































