**Standout Features:**
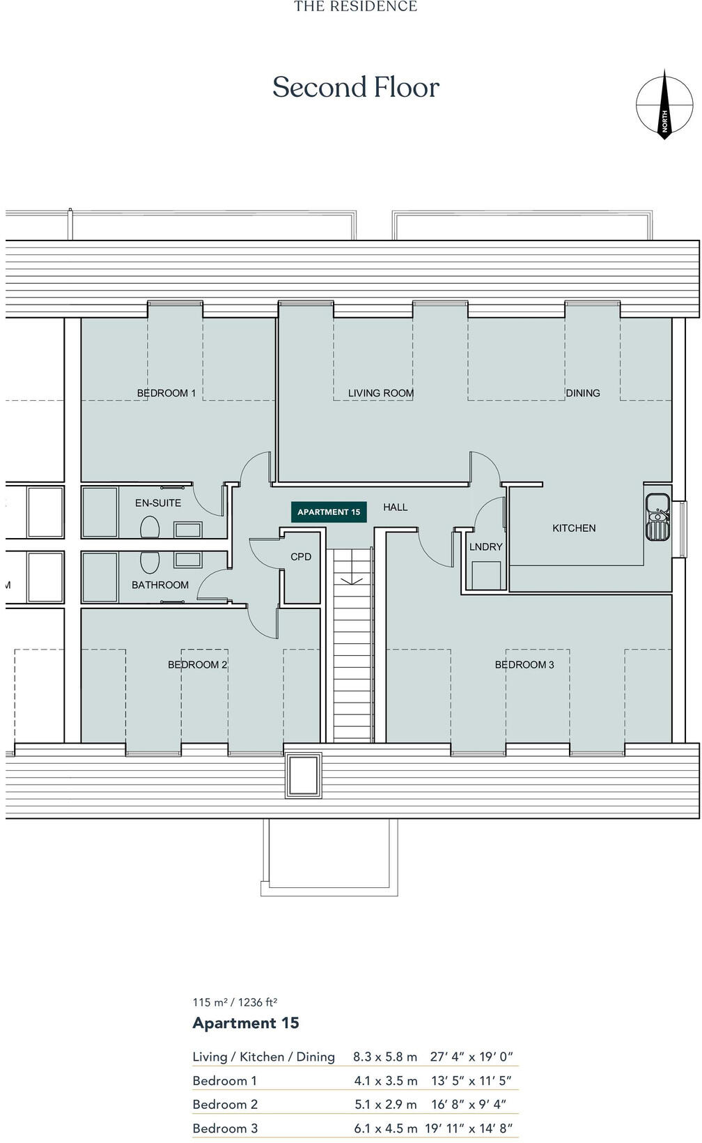
- Stylish three-bedroom penthouse with modern design.
- En-suite shower room and separate bathroom.
- Allocated off-street parking.
- Breathtaking views over South Road recreation field and Hythe Town.
- Located just a stone’s throw from pristine beach.
- SHARE OF FREEHOLD with exclusive landscaped courtyard for residents.
- Excellent mobile signal; average crime rate.
**Concise Listing Summary:**
Discover coastal living at its finest in this stunning new-build penthouse apartment in Hythe, priced at just £575,000. Spanning an impressive 1,236 square feet, this modern residence features an expansive open-plan living, kitchen, and dining area, perfect for both entertaining and family comfort. With three spacious bedrooms, including a master suite with en-suite shower, this home is beautifully designed for relaxation and convenience.
Enjoy picturesque views over South Road recreation field, allowing you to unwind in the serene coastal backdrop that Hythe offers. Just steps away from the beach, you’ll have the best of seaside living at your doorstep, enriched by local history and charm. Benefit from private parking and a landscaped communal courtyard that elevates your urban lifestyle.
Tastefully presented, this penthouse is not only an excellent investment but also a perfect setting for families seeking quality education; numerous “Good” rated schools are in the vicinity, including The Harvey Grammar School, recognized as outstanding.
Seize the opportunity to own this exclusive property that embodies coastal elegance—not just a home, but a lifestyle. Schedule your private viewing today, as demand for such unique offerings is high!
3 bedroom penthouse for sale in The Residence, South Road, Hythe, CT21 — £575,000 • 3 bed • 2 bath • 1236 ft²
3 bedroom penthouse for sale in South Road, Hythe, Kent, CT21 — £575,000 • 3 bed • 2 bath
3 bedroom penthouse for sale in Seabrook Road, Hythe, Kent, CT21 — £995,000 • 3 bed • 2 bath • 1600 ft²
3 bedroom penthouse for sale in Apartment 14, Cautley House, Hythe, Kent, CT21 — £925,000 • 3 bed • 2 bath • 1963 ft²
2 bedroom apartment for sale in 19 The Residence, South Road, Hythe, Kent, CT21 — £390,000 • 2 bed • 2 bath • 714 ft²
3 bedroom flat for sale in West Parade, Hythe, Kent, CT21 — £1,150,000 • 3 bed • 2 bath • 940 ft²






















































