Affordable renovation project with countryside views for value-focused buyers.
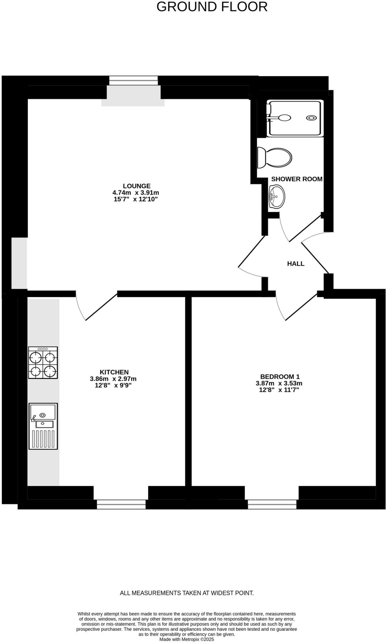
Ground-floor 1-bedroom flat in period stone building
A ground-floor 1-bedroom flat in a traditional stone building, this property offers clear scope to add value. The apartment has a spacious lounge, fitted kitchen and double bedroom with open countryside views to the rear. The interior is a blank canvas: cosmetically dated and in need of renovation, but structurally functional for a straightforward refurbishment.
This is a practical purchase for investors, first-time buyers or downsizers looking for an affordable project in a quiet residential location. On-street parking and a shared rear garden provide basic outdoor space; the flat is freehold and has a modest EPC rating of D. Broadband speeds are reported fast and mobile signal average.
Buyers should note material drawbacks: the property requires modernisation throughout (cosmetic works and possible ceiling repairs), and it sits in a very deprived local area which may affect demand and rental prospects. The price and low council tax make it an entry-level opportunity with realistic potential for capital improvement if upgraded sympathetically.
1 bedroom flat for sale in 78 Paterson Street, Ayr, KA8 9HD, KA8 — £70,000 • 1 bed • 1 bath • 700 ft²
1 bedroom flat for sale in Bryants Close, Maybole, Ayrshire, KA19 — £28,500 • 1 bed • 1 bath • 527 ft²
1 bedroom flat for sale in Welltrees Street, South Ayrshire, Maybole, KA19 — £35,000 • 1 bed • 1 bath • 398 ft²
1 bedroom flat for sale in 7c Glenmuir Road, Ayr, KA8 9RD, KA8 — £55,000 • 1 bed • 1 bath • 527 ft²
1 bedroom flat for sale in 11, Castle Street, 1C, Maybole, KA197DD, KA19 — £27,000 • 1 bed • 1 bath
1 bedroom ground floor flat for sale in 1A Philip Square, Ayr, KA8 8EL, KA8 — £39,999 • 1 bed • 1 bath • 473 ft²














































































