Light-filled open plan living with garage and easy commuter access.
Four bedrooms including large master with built-in wardrobes
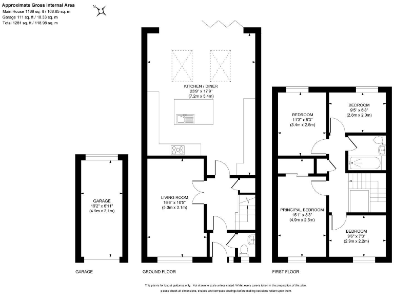
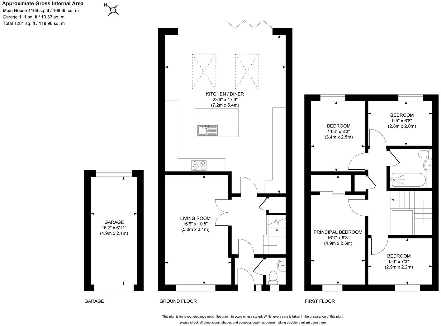
This recently renovated four-bedroom detached house sits at the end of a quiet cul-de-sac and is arranged for practical family living. The heart of the home is a bright, open-plan kitchen/dining space with a vaulted roof, Velux windows and bi-fold doors that open onto a well-maintained rear garden of approximately 35ft.
Upstairs offers four bedrooms, including a large master with built-in wardrobes, and a contemporary family bathroom. A separate lounge, handy downstairs cloakroom, integral garage and driveway parking add everyday convenience for a commuting household. Brookwood mainline station and Bisley CofE Primary School are both within easy reach.
Buyers should note a few material points: the property has one bathroom for four bedrooms, sits on a relatively small plot, and local area crime levels are reported as high. Council tax is above average. On the positive side the home is newly renovated, has double glazing, mains gas central heating and fast broadband, making it ready to occupy with low immediate maintenance needs.
Overall this is a comfortable, modernised suburban family home that will suit buyers prioritising light, open living and strong connections to local schools and transport. Early viewing is advisable to assess the layout and outdoor space in person.
4 bedroom detached house for sale in Snowdrop Way, Bisley, Woking, GU24 — £650,000 • 4 bed • 2 bath • 1662 ft²
4 bedroom detached house for sale in Arethusa Way, Woking, GU24 — £625,000 • 4 bed • 2 bath • 1886 ft²
5 bedroom detached house for sale in Bisley, GU24 — £1,150,000 • 5 bed • 2 bath • 2077 ft²
4 bedroom detached house for sale in Snowdrop Way, Bisley, Woking, Surrey, GU24 — £900,000 • 4 bed • 2 bath • 2400 ft²
4 bedroom detached house for sale in Guernsey Way, Knaphill, Woking, Surrey, GU21 — £800,000 • 4 bed • 3 bath • 1995 ft²
3 bedroom link detached house for sale in Elder Road, Bisley, Woking, Surrey, GU24 — £550,000 • 3 bed • 1 bath • 1100 ft²






































































































