Generous plot and flexible living close to good schools and amenities.
Large seven-bedroom detached home with versatile multi-room layout
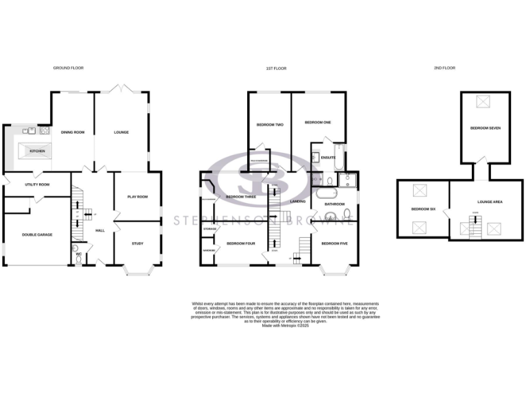
This substantial seven-bedroom detached home on Pikemere Road sits on a large plot and offers generous, flexible accommodation over three floors — ideal for growing families needing space for work, play and guests. The ground floor’s open-plan kitchen/diner and family room with French doors creates a bright central hub, complemented by separate lounge, study and playroom spaces. Modern fittings and recent refurbishments give the house a refreshed, contemporary feel throughout.
Sleeping accommodation includes a principal suite with a four-piece en-suite and fitted wardrobes, plus four further double bedrooms on the first floor and two attic-level bedrooms with a landing/lounge area on the second. Several wardrobe spaces are plumbed and laid out to be converted into en-suites, and the top-floor lounge offers scope (subject to permissions) to create an annexe or dedicated living space.
Outside, the property benefits from a shale driveway providing multiple off-street parking spaces and an integral double garage. The rear garden is private with a patio for entertaining and mainly lawned areas. Broadband speeds are fast, mobile signal is excellent and the location offers access to well-regarded local primary and secondary schools.
Notable practical points: there are only two main bathrooms serving seven bedrooms, which may require adaptation for larger households. The property is council tax band G, reflecting higher running costs. Any structural changes or annexe conversion will require the usual planning consents. Prospective buyers should confirm tenure and specific service details with their conveyancer.
4 bedroom detached house for sale in Crewe Road, Alsager, ST7 — £800,000 • 4 bed • 2 bath • 1721 ft²
4 bedroom detached house for sale in Blenheim Court, Alsager, ST7 — £335,000 • 4 bed • 2 bath • 1250 ft²
5 bedroom detached house for sale in Yew Tree Court, Alsager, ST7 — £625,000 • 5 bed • 2 bath • 2020 ft²
5 bedroom detached house for sale in Hall Drive, Alsager, ST7 — £450,000 • 5 bed • 2 bath • 1252 ft²
4 bedroom detached house for sale in Lawton Road, Alsager, ST7 — £350,000 • 4 bed • 1 bath • 1534 ft²
4 bedroom detached bungalow for sale in Brookfield Drive, Alsager, Cheshire, ST7 — £695,000 • 4 bed • 2 bath • 1795 ft²


































































































































































