Bright rooms, allocated parking and a long lease ideal for first-time buyers.
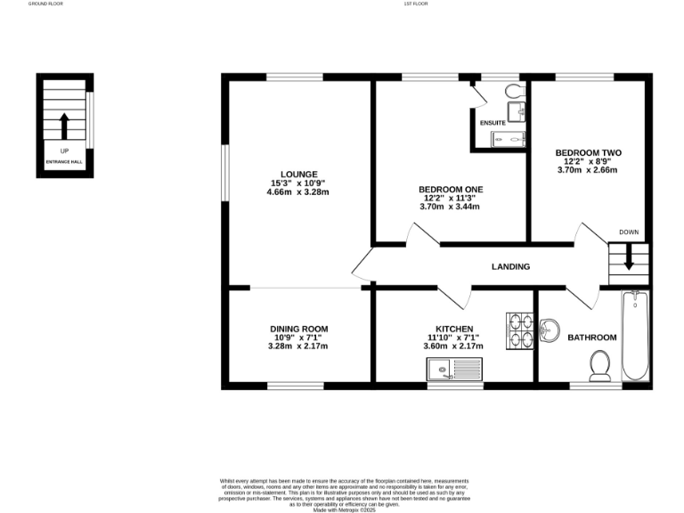
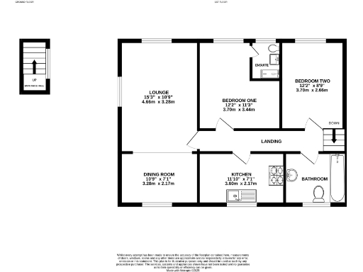
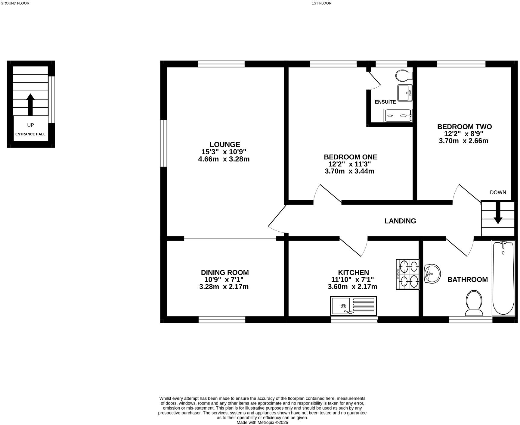
Top-floor two-bedroom, two-bathroom layout with en-suite to master
A bright top-floor two-bedroom maisonette in a popular Priory Field Drive development, suited to first-time buyers seeking ready-to-move-in accommodation with good transport links. The living room with open-plan dining space and large windows brings generous natural light; the separate modern kitchen keeps cooking and entertaining distinct. The master bedroom includes fitted wardrobes and an en-suite shower, with a second double bedroom and family bathroom completing the layout.
Practical day-to-day benefits include an allocated off-street parking space, easy visitor parking, communal gardens and two large storage cupboards — useful in a compact home. The long lease (149 years) and fast broadband, excellent mobile signal and very low local crime make this a sensible long-term choice for a starter household.
Be mindful this is a small overall property (567 sq ft) and being top-floor means access is via stairs only. Council tax is above average for the area. The tenure is leasehold; potential buyers should review service charges and ground rent information as part of due diligence.
Located near a mix of good state and independent schools and local places of worship, the maisonette sits in a very affluent, low-crime neighbourhood with reliable bus links. The straightforward layout and local amenities make this a practical, well-located option for those entering the property market.
2 bedroom maisonette for sale in Priory Field Drive, Edgware, HA8 — £415,000 • 2 bed • 2 bath • 819 ft²
2 bedroom maisonette for sale in Priory Field Drive, Edgware, HA8 — £320,000 • 2 bed • 2 bath • 819 ft²
2 bedroom maisonette for sale in Cumberland Road, Harrow, HA1 — £410,000 • 2 bed • 2 bath • 914 ft²
3 bedroom maisonette for sale in Charmille Avenue, NW9 — £550,000 • 3 bed • 2 bath • 796 ft²
2 bedroom maisonette for sale in Marlborough Drive, Bushey, WD23 — £475,000 • 2 bed • 1 bath • 797 ft²
2 bedroom maisonette for sale in Priory Field Drive, Edgware, HA8 — £325,000 • 2 bed • 2 bath • 879 ft²


































