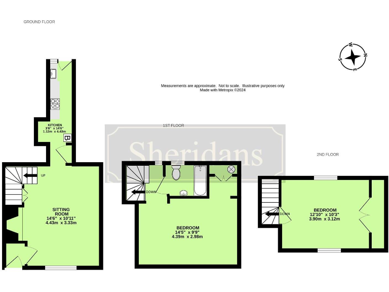
**Standout Features:**
- Charming 16th-century Grade II listed town house
- No onward chain, allowing for immediate possession
- Original features including exposed beams and period fireplace
- Two cozy bedrooms, spacious living area with Inglenook fireplace
- Prime location near Abbey Gardens and the town center
- Fast broadband available and low council tax rates
**Notable Concerns:**
- Small overall size, at 483 square feet
- Potential challenges due to its listed status
- Some dated repairs needed in rustic areas
**Property Summary:**
This delightful Grade II listed town house, built in 1500, is an enchanting blend of history and warmth, nestled just a stone's throw from Abbey Gardens and the vibrant town center of Bury St Edmunds. With charming original features such as exposed beams and a period fireplace, the property exudes character while offering a cozy home with two well-sized bedrooms and a functional kitchen. Although the house requires some updates, it presents a unique opportunity for those looking to infuse their personal touch into a promising fixer-upper.
Perfect for first-time buyers, couples, or small families, this home is chain-free and positioned in an affluent area known for its excellent schools and independent shops. The local amenities, including restaurants, cinemas, and parks, create a lifestyle that balances historical charm with modern conveniences. With low council tax and fast broadband options, this property offers a comfortable cost of living in a sought-after location. Act quickly to seize the chance to own a piece of history in this coveted neighborhood!
3 bedroom town house for sale in Crown Street, Bury St. Edmunds, IP33 — £395,000 • 3 bed • 1 bath • 1121 ft²
2 bedroom town house for sale in Westgate Street, Bury St Edmunds, IP33 — £275,000 • 2 bed • 1 bath • 630 ft²
2 bedroom terraced house for sale in College Street, Bury St. Edmunds, IP33 — £230,000 • 2 bed • 1 bath • 441 ft²
3 bedroom town house for sale in Bury St Edmunds, Suffolk, IP33 — £330,000 • 3 bed • 1 bath • 1256 ft²
2 bedroom town house for sale in Southgate Street, Bury St. Edmunds, IP33 — £400,000 • 2 bed • 1 bath • 1003 ft²
2 bedroom town house for sale in Bury St. Edmunds, Suffolk, IP33 — £240,000 • 2 bed • 1 bath • 815 ft²






















































