**Standout Features:**
- Four spacious bedrooms
- Contemporary kitchen diner
- Large garage with electric car charging
- Double driveway
- Well-presented private garden
- Quiet cul-de-sac location
- Freehold tenure with Chain-free status
- EPC rating of B, providing energy efficiency
- Ideal for families with nearby schools rated "Good" to "Outstanding"
**Potential Downsides:**
- Average-sized living space
- Limited views, primarily overlooking neighboring houses
- Located in a somewhat deprived area
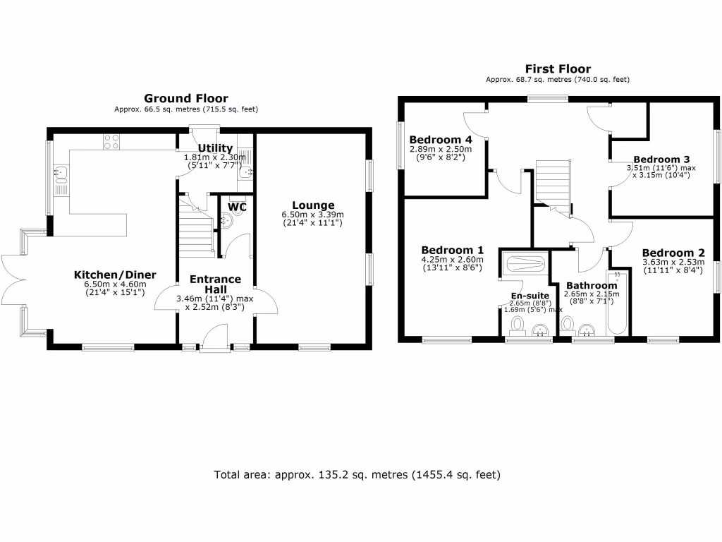
Welcome to Two Forester Gardens, a beautifully presented four-bedroom detached home nestled in a tranquil cul-de-sac in Retford. This modern property boasts a spacious layout, featuring a versatile lounge and a contemporary kitchen diner that seamlessly connects to a delightful garden, perfect for family gatherings and leisure activities. With two additional bathrooms and a utility room, this home is designed for modern living and convenience.
The exterior shines with an oversized garage equipped with electric car charging capability, complemented by a double driveway providing ample parking for family and guests. Enjoy the peace of a low-crime area while being just steps away from local green spaces and well-rated schools. Although the property offers an average-sized footprint and minimal views, its energy-efficient EPC rating of B and freehold status enhance its appeal.
Don’t miss the chance to secure this outstanding family home that balances comfort, style, and future potential. Schedule your viewing today and envision the possibilities!
4 bedroom detached house for sale in The Drive, Retford, DN22 — £550,000 • 4 bed • 2 bath • 1808 ft²
4 bedroom detached house for sale in Francis Way, Retford, DN22 — £365,000 • 4 bed • 2 bath • 565 ft²
4 bedroom detached house for sale in Redforde Park Road, Retford, DN22 — £330,000 • 4 bed • 2 bath • 1500 ft²
4 bedroom detached house for sale in Adrians Walk, Retford, DN22 — £320,000 • 4 bed • 2 bath • 1480 ft²
4 bedroom detached house for sale in Moorgate Park, RETFORD, DN22 — £355,000 • 4 bed • 2 bath • 1195 ft²
4 bedroom detached house for sale in Wollaton Rise, Retford, DN22 — £285,000 • 4 bed • 2 bath • 1381 ft²


























































































